Eladó jó állapotú iroda - Budapest VI. kerület
- INGYENES HIRDETÉS FELADÁS
Ingatlan adatai
- Eladó vagy kiadó:Eladó
- Település:Budapest VI. kerület
- Kategória:Iroda
- Alkategória:Irodaházban
- Alapterület:894 m2
- Csere is:Nem
- Hirdető:Cég
- Élő videón megtekinthető:Nem
- Állapot:Jó állapotú
- Hány szintes az ingatlan:nincs megadva
- Hányadik emeleti:nincs megadva
- Parkolási lehetőség:nincs megadva
- Őrzött parkoló:nincs megadva
- Bútorozottság:nincs megadva
- Fényviszony:nincs megadva
- Tájolás:nincs megadva
- Kilátás:nincs megadva
- Internet:nincs megadva
- Klíma:nincs megadva
- Akadálymentesített:nincs megadva
- Energiatanúsítvány:nincs megadva
- Kapcsolatfelvétel

Nagy Tibor
+36-(70)-716-9901
Mondd meg a hirdetőnek, hogy a megveszLAK-on találtad a hirdetést.
Hitel ajánlatok
Ingatlan hirdetés leírása
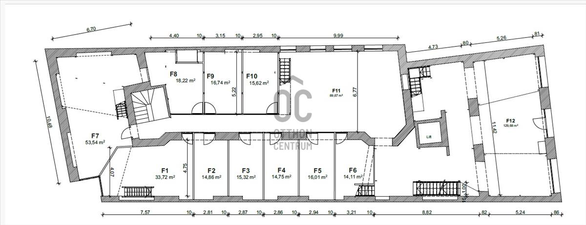
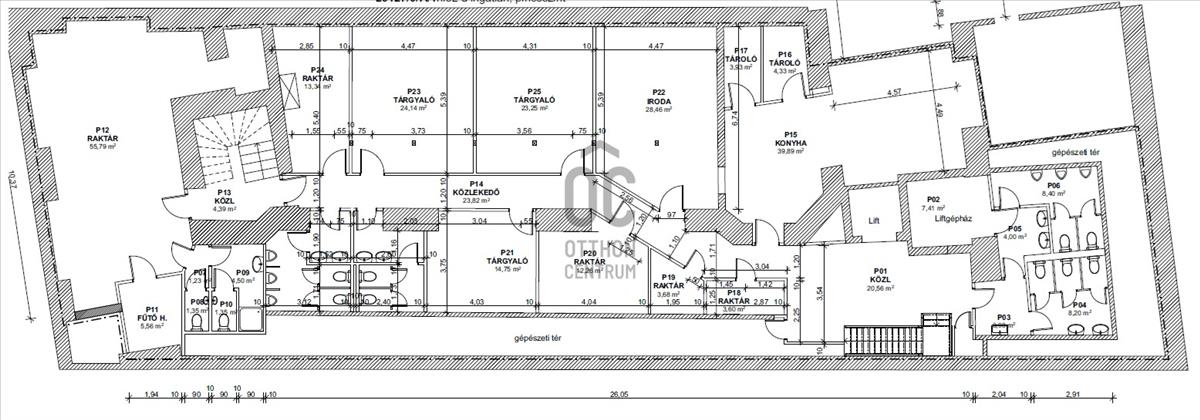
Az eladásra kínált ingatlan két helyrajzi szám alatt van nyilv...
Az eladásra kínált ingatlan két helyrajzi szám alatt van nyilvántartva egy 78 és egy 816 m2-es részből áll, melyek össze vannak nyitva és pince, földszint + galéria tagolásúak. Az összes bérbeadható terület 851 m2.
Egy az 1930-as években épült műemlék társasházban található, az épület külseje és homlokzata karbantartott és kiváló állapotú.
Az ingatlannak üvegportálos utcai bejárata van.
Az ingatlan jelenleg bérbe van adva, egy része kávézóként, másik része szolgáltatott irodaként van hasznosítva, az alábbi eloszlásban:
Kávézó: földszinten 129, 7 m2, galérián 94, 5 m2, pinceszinten 92, 3 m2.
Szolgáltatott irodák: földszinten 212, 9 m2, galérián 160, 5 m2, pinceszinten 180, 4 m2.
A területet a tulajdonos részleges érdekeltségi körébe tartozott szervezet bérli, 8500 eur/ hó bérleti díjon.
Az eladási ár nettó ár, további áfa terheli. Hitel.hu - Hasonlítsa össze a bankok lakáshitel ajánlatait
Tetszett ez az eladó Budapest VI. kerületi jó állapotú iroda? Hívd fel a hirdetőt most, és tudj meg mindent erről az eladó irodáról! Ha gondolod nézelődj tovább az eladó iroda Budapest VI. kerület oldal hirdetései között.
Az eladó irodák menüpontban további hirdetések között is böngészhetsz. Ha van kedved, akkor böngészhetsz a Nagy Tibor összes hirdetése között, vagy akár a/az Otthon Centrum Solutions Kft összes hirdetése között is.

