Eladó jó állapotú iroda - Budapest XI. kerület
- INGYENES HIRDETÉS FELADÁS
Ingatlan adatai
- Eladó vagy kiadó:Eladó
- Település:Budapest XI. kerület
- Kategória:Iroda
- Alkategória:Irodaházban
- Alapterület:400 m2
- Csere is:Nem
- Hirdető:Cég
- Élő videón megtekinthető:Nem
- Állapot:Jó állapotú
- Hány szintes az ingatlan:nincs megadva
- Hányadik emeleti:nincs megadva
- Parkolási lehetőség:nincs megadva
- Őrzött parkoló:nincs megadva
- Bútorozottság:nincs megadva
- Fényviszony:nincs megadva
- Tájolás:nincs megadva
- Kilátás:nincs megadva
- Internet:nincs megadva
- Klíma:nincs megadva
- Akadálymentesített:nincs megadva
- Energiatanúsítvány:nincs megadva
- Kapcsolatfelvétel

Kurai Kitti
+36-(70)-461-9246
Mondd meg a hirdetőnek, hogy a megveszLAK-on találtad a hirdetést.
Hitel ajánlatok
Ingatlan hirdetés leírása
ELADÓ 4 SZINTES EGÉSZ ÉPÜLET- 4 SZINTES IRODA- XI. KERÜLET- FI...
Eladó 4 szintes egész épület- 4 szintes iroda- XI. kerület- fix BÉRLŐVEL
ELADÓ egy belső 4 szintes épület netto 400 nm-en fix BÉRLŐVEL!
Irodákkal kialakítva, csendes mellékutcáról nyíló épület- XI. kerület- Kelenföld
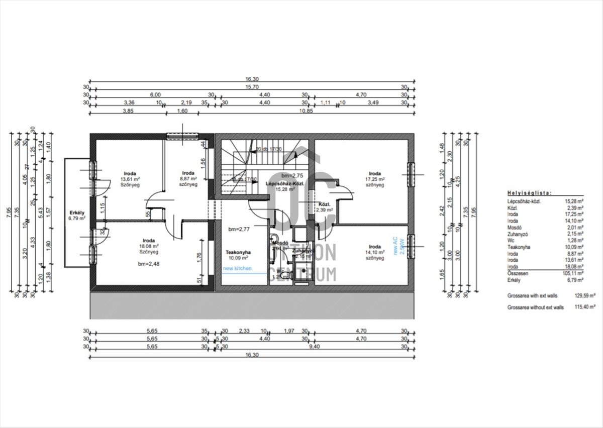
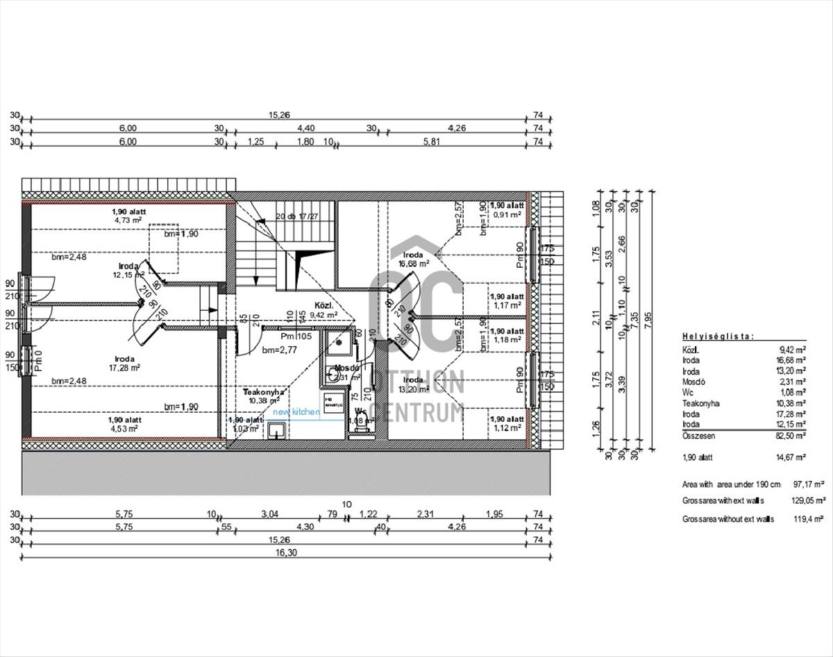
Az ingatlan adatlapjában szereplő fotók végig vezetnek a legfelső szinttől egészen a legalsó, alagsori szintig. Az egymást követő szintek a szintrajzok utáni képeken tekinthetők meg.
Az épületről:
- 1990-ben épült
- telek méret 580 nm, hasznos irodai alapterület 400 nm
- teljes körű felújításon átesett
- korszerűsített, szigetelt épület
- nyílászárók cseréje megtörtént
- új víz, áram és fűtés rendszer
- a hátsó udvaron 10 gépjárműnek parkolási lehetőség
Az irodákról:
- belső 4 szinten kialakított zárható irodák
- padlószőnyeggel és hideg burkolatokkal ellátott helyiségek
- alkalmas nagyobb cégeknek, magánoktatási intézménynek, magán óvodának, ügyvédi/ könyvelő irodának
- minden szinten mosdó helyiségek és két szinten zuhanyzó került kialakításra
- minden szinten teakonyha lesz kialakítva a komfortos munkanapok elérése érdekében
- légkondícionált helyiségek, minden iroda külön hűthető
- új fűtés rendszer került kialakításra, kombi kazán biztosítja a fűtést és a meleg víz előállítását
- kimondottan napos, világos irodák, K-i és Ny- fekvéssel
A környékről:
- XI. kerület - Kelenföld
- kiváló közlekedés, villamosmegálló 4 perces sétatávolságra
- gépjárművel könnyű megközelítés, parkolási lehetőség a belső nyitott udvarban
- csendes mellékutcai megközelítés
- zöld, csendes, a felső emeletről szép panoráma tárul elénk
Irányár: 490m+ ÁFA
Amennyiben érdekes lehet Önnek vagy cégének az ingatlan kérem keressen elérhetőségeim bármelyikén és szervezzük az megtekintést!
Hitelre történő vásárlás esetén bankfüggetlen pénzügyi szakértőnk segítségével megtalálhatja az Ön számára legkedvezőbb megoldást.
A tanácsadás ingyenes, keressen bizalommal! Hitel.hu - Hasonlítsa össze a bankok lakáshitel ajánlatait

