- >>
- eladó ingatlanok
- >>
- eladó iroda
- >>
- eladó iroda Budapest XIII. kerület
- >>
Eladó új építésű iroda - Budapest XIII. kerület
| | |||
| Kedvencnek jelölöm | Elküldöm emailben | Megosztás | Szavazás |
| Kedvezményes lakáshitel ajánlatok | |||
| 165 170 000 HUF | |||
Ingatlan adatai
- Eladó vagy kiadó:Eladó
- Település:Budapest XIII. kerület
- Kategória:Iroda
- Alkategória:Irodaházban
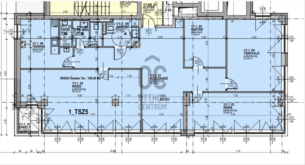
- Alapterület:159 m2
- Csere is:Nem
- Hirdető:Cég
- Élő videón megtekinthető:Nem
- Állapot:Új építésű
- Hány szintes az ingatlan:nincs megadva
- Hányadik emeleti:nincs megadva
- Parkolási lehetőség:nincs megadva
- Őrzött parkoló:nincs megadva
- Bútorozottság:nincs megadva
- Fényviszony:nincs megadva
- Tájolás:nincs megadva
- Kilátás:nincs megadva
- Internet:nincs megadva
- Akadálymentesített:nincs megadva
- Energiatanúsítvány:nincs megadva
- Üzenetküldés
- Hívás

Margitta Marietta
Mondd meg a hirdetőnek, hogy a megveszLAK-on találtad a hirdetést.

Ingatlan hirdetés leírása
A XIII. kerületben - Angyalföldön - 2024 év elején átadásra ke...
A XIII. kerületben - Angyalföldön - 2024 év elején átadásra kerülő társasház első emeletén eladó egy 165nm-es iroda besorolású ingatlan.Az ingatlanból akár két külön bejáratú iroda is kialakítható (egy hrsz-on).
Felszíni beálló vásárolható az irodához.
A vételárat áfa-fizetési kötelezettség terheli! (27%). Hitel.hu - Hasonlítsa össze a bankok lakáshitel ajánlatait


