Eladó iroda - Dunaharaszti
- INGYENES HIRDETÉS FELADÁS
Ingatlan adatai
- Eladó vagy kiadó:Eladó
- Település:Dunaharaszti
- Kategória:Iroda
- Alkategória:Irodaházban
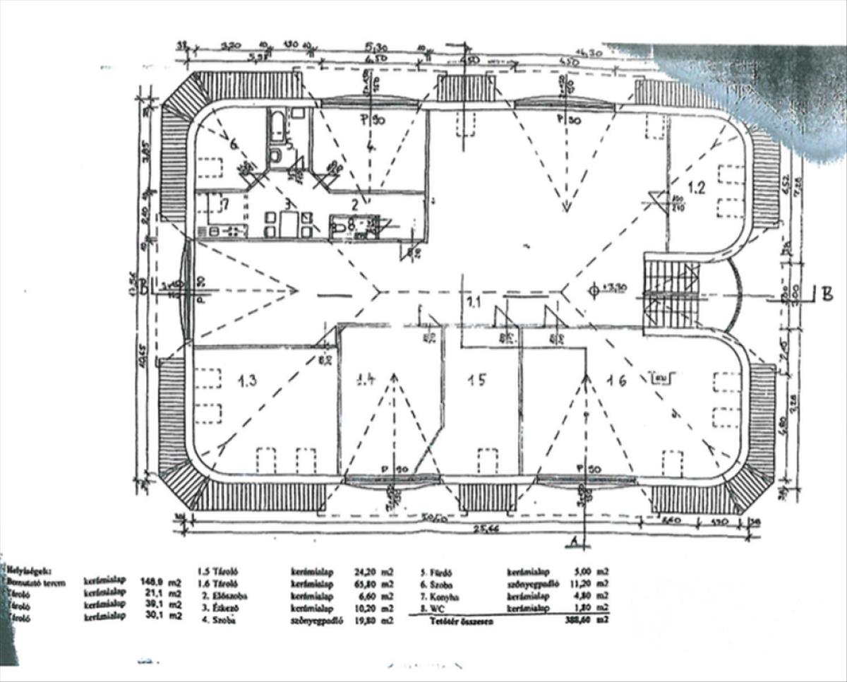
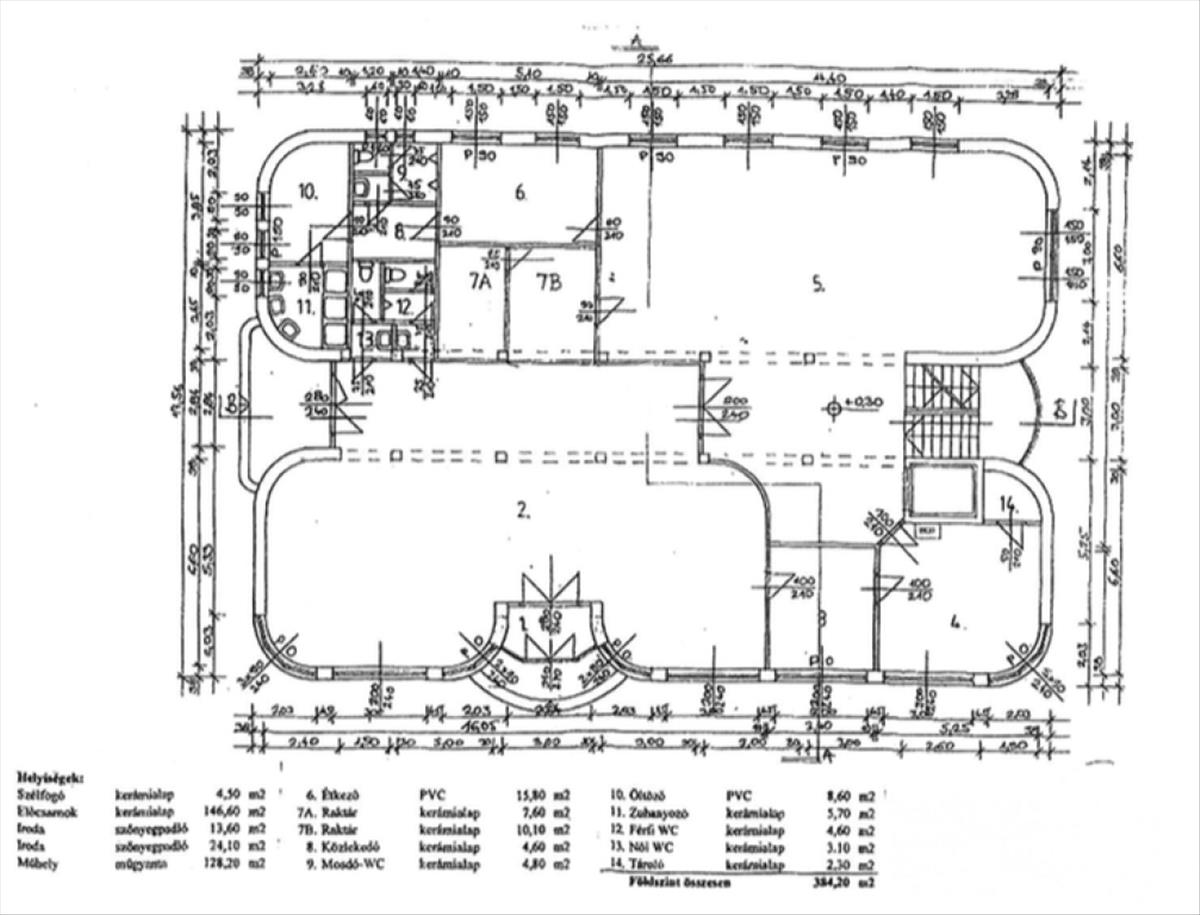
- Alapterület:1162 m2
- Csere is:Nem
- Hirdető:Cég
- Élő videón megtekinthető:Nem
- Állapot:nincs megadva
- Hány szintes az ingatlan:3 szintes
- Hányadik emeleti:2
- Parkolási lehetőség:Beállóban
- Őrzött parkoló:nincs megadva
- Bútorozottság:nincs megadva
- Fényviszony:nincs megadva
- Tájolás:nincs megadva
- Kilátás:nincs megadva
- Internet:nincs megadva
- Klíma:nincs megadva
- Akadálymentesített:nincs megadva
- Energiatanúsítvány:nincs megadva
- Kapcsolatfelvétel

Göbölyös Judit
+36-(70)-269-5029
Mondd meg a hirdetőnek, hogy a megveszLAK-on találtad a hirdetést.
Hitel ajánlatok
Ingatlan hirdetés leírása
Dunaharaszti frekventált iparterületén, irodaház Eladó! Az in...
Dunaharaszti frekventált iparterületén, irodaház Eladó!
Az ingatlan kiváló cégközpontnak és/vagy munkásszállónak is!
Kereskedelmi, szolgáltató gazdasági területen kínálom megvételre az 1995-ben épült, irodaházként funkcionáló háromszintes, néhány éve részben felújított ingatlant, mely 1162 m2, szintenként (3 X 380 m2) alapterületű.
A 6000 m2-es sík, teljes közművel ellátott telekterületen elhelyezkedő többfunkciós ingatlan telephely besorolású, kerítéssel határolt zöld terület, parkosított kerttel, több gépjármű részére biztosított parkolóval.
AZ irodaépület főbb JELLEMZŐI:
- 1162 m2 alapterületű, két szintes (+pince)
- Porotherm 38-as falazat, tetőborítása bitumenes zsindely héj,
- szintenként korszerű vizesblokk és irodai konyha,
- a legfelső emeleten kialakításra került egy kis lakás 60 nm ,
- saját hőközponttal rendelkezik az épület + klímák,
- tűz és riasztórendszer,
- kiépített LAN-kábel hálózat és telefonhálózat,
- kerítéssel határolt zöldterület,
- parkosított kert, több gépjármű részére biztosított parkoló.
AZ ingatlan elhelyezkedésének ELŐNYEI:
A Dunaharaszti ipari park nyújtotta lehetőségek számos előnyt kínálnak. Fejlett infrastruktúra.
A frekventált ipari park megközelítése aszfaltozott közúton és üzemi úton, m0 autóútról 51-es számú útra letérve, könnyen megközelíthető.
Kiváló tömegközlekedés.
Rendezett környezet.
Amivel segítjük az Ön ingatlanvásárlását:
- ingyenes hitelügyintézés,
- jogi háttér,
- földhivatali ügyintézés,
- energetikai tanúsítvány,
- a vevő számára az ingatlanközvetítés ingyenes.
Irodánk 30 éves szakmai tapasztalattal áll ügyfelei rendelkezésére!
Várom szíves megkeresését! Hitel.hu - Hasonlítsa össze a bankok lakáshitel ajánlatait
Tetszett ez az eladó Dunaharaszti iroda? Hívd fel a hirdetőt most, és tudj meg mindent erről az eladó irodáról! Ha gondolod nézelődj tovább az eladó iroda Dunaharaszti oldal hirdetései között.
Az eladó irodák menüpontban további hirdetések között is böngészhetsz. Ha van kedved, akkor böngészhetsz a Göbölyös Judit összes hirdetése között, vagy akár a/az GDN Ingatlanhálózat összes hirdetése között is.

