- >>
- eladó ingatlanok
- >>
- eladó iroda
- >>
- eladó iroda Győr
- >>
Eladó új építésű iroda - Győr
| | |||
| Kedvencnek jelölöm | Elküldöm emailben | Megosztás | Szavazás |
| Kedvezményes lakáshitel ajánlatok | |||
| 38 990 000 HUF | |||
Ingatlan adatai
- Eladó vagy kiadó:Eladó
- Település:Győr
- Kategória:Iroda
- Alkategória:Irodaházban
- Alapterület:42 m2
- Csere is:Nem
- Hirdető:Cég
- Élő videón megtekinthető:Nem
- Állapot:Új építésű
- Hány szintes az ingatlan:nincs megadva
- Hányadik emeleti:nincs megadva
- Parkolási lehetőség:nincs megadva
- Őrzött parkoló:nincs megadva
- Bútorozottság:nincs megadva
- Fényviszony:nincs megadva
- Tájolás:nincs megadva
- Kilátás:nincs megadva
- Internet:nincs megadva
- Akadálymentesített:nincs megadva
- Energiatanúsítvány:nincs megadva
- Üzenetküldés
- Hívás


Ingatlan hirdetés leírása
Eladó irodák Győrben
A lido home Győr eladásra kínál Győr-Szabadhegyen új építésű 22 lakásos társasházban aa+ energetikai besorolású lakásokat/ irodákat!BOMBA ár +ajándék Gk. Beálló 11. 30-Ig.
Az ár emelt szintű fűtés kész alapszerelt készültséget tartalmaz.
NETTÓ ár! ! ! + 27% Áfa jön hozzá.
Kulcsrakész befejezés igényelhető!
A fotók csak referenciák egy hasonló projektről ami már kész van!
Az irodákból is ki lehet alakitani lakásokat!
40 m2 -től 55 m2- ig lehet válogatni a lakások és az irodák között!
Az irodához tartozik, kötelezően megvásárolandó: 1db gépkocsibeálló
Parkoló ára: 2, 9millió forint/db, tároló ára: mérettől függően 2, 4 millió -4, 5 millió forint között választható.
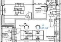
- 41, 07 m2 nettó alapterületű 1. emeleti iroda
- 4, 34 m2 erkély
- iroda teakonyhával, 1 tárgyaló, 1 irattár, wc, tágas előszoba
A lakások kültér felé eső határoló főfalai 30-40 cm vastagságú falazóelemekből készültek, 15cm vastag hőszigeteléssel.
A tető szigetelése 20-25cm vastag hőszigetelés
A fűtés hűtési rendszer lakásonként padló és fődém vagy mennyezet fűtési rendszerrel kerül kiépítésre.
A fűtési és hűtési vizet központi levegő-vizes hőszivattyú biztosítja.
Hőszivattyús padló / mennyezet hűtés / fűtés előnyei
-nincs szükség klímára a hűtésnél - jelentős megtakarítás
-a hőérzet sokkal jobb mint klíma esetén és egészségesebb is
-alacsonyabb az üzemeltetési költsége klímához kémest
-értékaló ingatlanok
-esztétikus épületek, klíma kültéri egységek nincsenek nem csúfítják a homlokzatot
-AA+energetika besorolás
-Most bevezető áron kötheti le ingatlanát
-Megbítható beruházó / kivitelező több mint 150 átadott lakás
-Értékálló prémium kategóriás ingatlanok elérhető áron
-Hőszivattyús padló / mennyezet hűtés / fűtés és melegvíz előállítás
-Kiváló tájolású napfényes ingatlanok kertkapcsolattal
Minden lakáshoz biztosítva egyéni hidegvíz óra és melegvízóra, továbbá villanymérő (órák az árban).
Minden közüzemi hozzájárulási költség az árban.
Minden lakáshoz biztosítva egyéni hidegvíz óra és melegvízóra, továbbá villanymérő (órák az árban).
Könnyen megközelíthető az ingatlan és minden fontos közintézmény is megtalálható a közelben!
További műszaki tartalomért keressen telefonon bizalommal!
Amennyiben a lido home által kínált győri lakás/ iroda vagy bármely a kínálatunkban található ingatlan felkeltette érdeklődését hívjon a megadott telefonszámon.
Vásárolna, de nincs rá keret? Kollégám díjmentes, bank semleges hitel ügyintézéssel áll rendelkezésére.
LIDO home - Ingatlanok egy életen át! Hitel.hu - Hasonlítsa össze a bankok lakáshitel ajánlatait


