Eladó újszerű állapotú iroda - Győr
- INGYENES HIRDETÉS FELADÁS
Ingatlan adatai
- Eladó vagy kiadó:Eladó
- Település:Győr
- Kategória:Iroda
- Alkategória:Irodaházban
- Alapterület:124 m2
- Csere is:Nem
- Hirdető:Cég
- Élő videón megtekinthető:Nem
- Állapot:Újszerű, kitűnő
- Hány szintes az ingatlan:nincs megadva
- Hányadik emeleti:2
- Parkolási lehetőség:nincs megadva
- Őrzött parkoló:nincs megadva
- Bútorozottság:nincs megadva
- Fényviszony:nincs megadva
- Tájolás:nincs megadva
- Kilátás:nincs megadva
- Internet:nincs megadva
- Klíma:nincs megadva
- Akadálymentesített:nincs megadva
- Energiatanúsítvány:nincs megadva
- Kapcsolatfelvétel

Tóth Bernadett
+36-(70)-389-9573
Mondd meg a hirdetőnek, hogy a megveszLAK-on találtad a hirdetést.
Hitel ajánlatok
Ingatlan hirdetés leírása
Vásároljon prémium kategóriás irodát megbízható bérlőkkel! Gy...
Vásároljon prémium kategóriás irodát megbízható bérlőkkel!
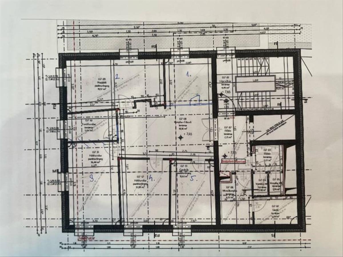
Győr-Belvárosban, frekventált helyen, 2019-ben épült, modern stílusú, 7 szintes, liftes irodaház 124 nm -es, komplett II. Szintje, igény esetén hosszútávú bérlőkkel együtt eladó.
Alapterület: 124 nm (tulajdoni lapon 99 nm iroda + 25 nm épületrész)
Besorolása: iroda.
A II. Szinten 5 db külön bejáratú irodahelyiség került kialakításra, közös használatú váróterem, teakonyha, mosókonyha, férfi-női mosdó áll a bérlők rendelkezésére.
Az épület fokozott hőszigeteléssel épült (Leier elemek, 30 cm hőszigetelés, kerámia burkolat a homlokzaton). a fűtésről és a hűtésről hőszivattyús rendszer gondoskodik, helyiségenként szabályozható fain-coil berendezésekkel. a mindig tiszta levegőt hővisszanyerős szellőztető rendszer biztosítja. a melegvíz ellátást egy Ariston típusú villanybojler adja. a minőségi, 3 rétegű üvegezésű nyílászárók kiváló hő- és hangszigeteléssel rendelkeznek, fix üvegfelületekkel. Az irodákból panorámás kilátás nyílik a városra. Minden helyiségbe magas minőségű kerámia burkolat került, a falak festettek és tapétásak. Az 5 helyiségből 3-ban mosdó található. 3 X 16 Amper kiépítésre került. Az épületben szintenként hőmennyiségmérő, vízóra és villanyóra méri a fogyasztást, mely a bérlők közt alapterület arányában kerül elszámolásra.
Az ingatlan alkalmas irodai, orvosi-egészségügyi tevékenységre egyaránt. a helyiségek közt áthallás nincs, a belső válaszfalak dupla gipszkartonból készültek, a beltéri ajtók hanggátló kivitelűek. Belső elrendezése könnyen alakítható. Kiváló befektetési lehetőség a jelenlegi bérlők megtartásával.
Az irodaház lifttel rendelkezik, mely a mélygarázsból indul. a II. Szinthez igény esetén 1 db mélygarázs kocsibeálló vásárolható. Utcai parkolás az irodaház közelében kék parkolóövezetben lehetséges.
Irányár: 115. 000. 000, - Ft (Áfa mentesen), + mélygarázs kocsibeálló 6. 000. 000, - Ft (Hiv. Szám: 5939. ) (Hiv. Szám: 5939) Hitel.hu - Hasonlítsa össze a bankok lakáshitel ajánlatait
Tetszett ez az eladó Győri újszerű állapotú iroda? Hívd fel a hirdetőt most, és tudj meg mindent erről az eladó irodáról! Ha gondolod nézelődj tovább az eladó iroda Győr oldal hirdetései között.
Az eladó irodák menüpontban további hirdetések között is böngészhetsz. Ha van kedved, akkor böngészhetsz a Tóth Bernadett összes hirdetése között, vagy akár a/az Panoráma ingatlan Győr összes hirdetése között is.

