Eladó iroda - Budapest X. kerület
- INGYENES HIRDETÉS FELADÁS
Ingatlan adatai
- Eladó vagy kiadó:Eladó
- Település:Budapest X. kerület
- Kategória:Iroda
- Alkategória:Lakásban
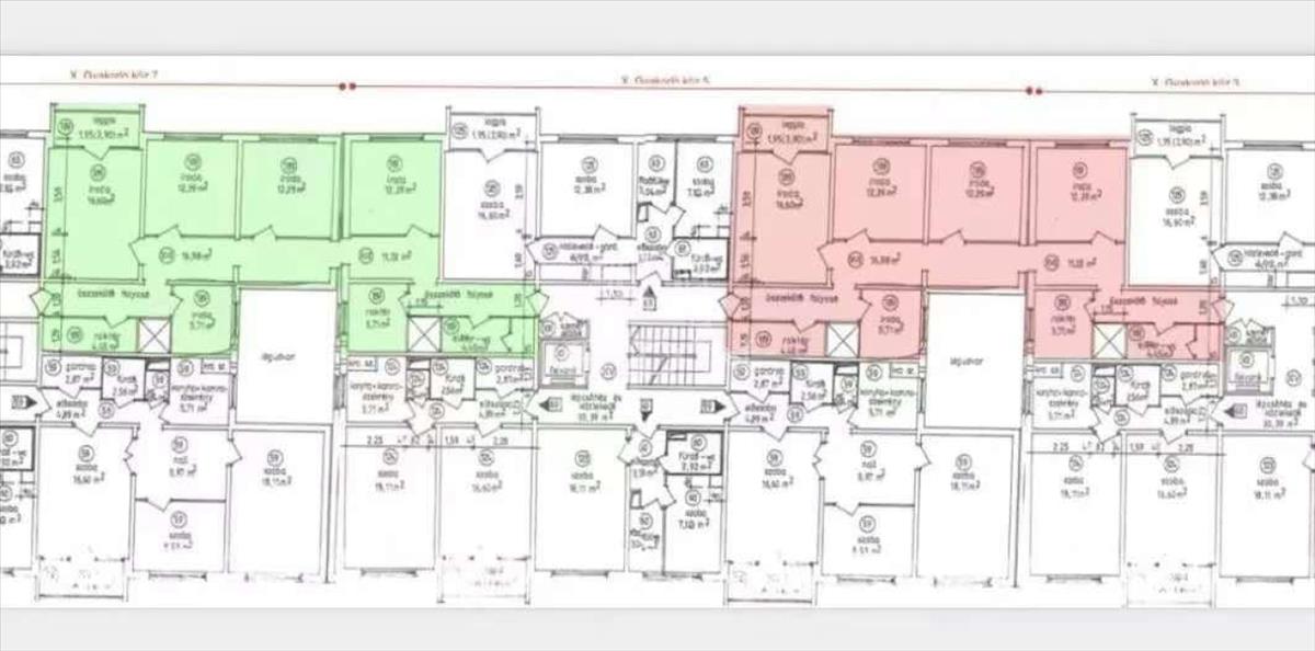
- Alapterület:151 m2
- Csere is:Nem
- Hirdető:Cég
- Élő videón megtekinthető:Nem
- Állapot:nincs megadva
- Hány szintes az ingatlan:10 szintes
- Hányadik emeleti:10
- Parkolási lehetőség:Utcán
- Őrzött parkoló:nincs megadva
- Bútorozottság:nincs megadva
- Fényviszony:nincs megadva
- Tájolás:nincs megadva
- Kilátás:nincs megadva
- Internet:nincs megadva
- Klíma:nincs megadva
- Akadálymentesített:nincs megadva
- Energiatanúsítvány:nincs megadva
- Kapcsolatfelvétel

Balogh Csaba
+36-(20)-310-4234
Mondd meg a hirdetőnek, hogy a megveszLAK-on találtad a hirdetést.
Hitel ajánlatok
Ingatlan hirdetés leírása
CÉG SZÉKHELYEKÉNT, KIADÁSRA, EGYÉB TEVÉKENYSÉGEK GYAKORLÁSÁRA!...
Cég székhelyeként, kiadásra, egyéb tevékenységek GYAKORLÁSÁRA! !
X. kerület központi részén, kivételes infrastruktúra mellett, az Árkád szomszédságában, kifizetett panelprogramos társasház 10. emeletén eladásra kínálok, egy 151 m2-es, két egységből álló, egységenként konyhával, erkéllyel, vizesblokkal, 5 szobával rendelkező, irodaként nyilvántartott, azonnal költözhető ingatlant.
A társasház legfelső lakószintjén elhelyezkedő, örök panorámás ingatlan közelmúltbéli felújítása során a nyílászárók, burkolatok cseréjére, vizesblokkok felújításra került sor.
Megtekinthető a hét bármely napján!
Várom a hívását, akár hétvégén is!
B. Cs. Hitel.hu - Hasonlítsa össze a bankok lakáshitel ajánlatait
Tetszett ez az eladó Budapest X. kerületi iroda? Hívd fel a hirdetőt most, és tudj meg mindent erről az eladó irodáról! Ha gondolod nézelődj tovább az eladó iroda Budapest X. kerület oldal hirdetései között.
Az eladó irodák menüpontban további hirdetések között is böngészhetsz. Ha van kedved, akkor böngészhetsz a Balogh Csaba összes hirdetése között, vagy akár a/az GDN Ingatlanhálózat összes hirdetése között is.

