- >>
- eladó ingatlanok
- >>
- eladó iroda
- >>
- eladó iroda Budapest VII. kerület
- >>
Eladó iroda - Budapest VII. kerület
| | |||
| Kedvencnek jelölöm | Elküldöm emailben | Megosztás | Szavazás |
| Kedvezményes lakáshitel ajánlatok | |||
| 980 000 000 HUF | |||
Ingatlan adatai
- Eladó vagy kiadó:Eladó
- Település:Budapest VII. kerület
- Kategória:Iroda
- Alkategória:Irodaház
- Alapterület:1100 m2
- Csere is:Nem
- Hirdető:Cég
- Élő videón megtekinthető:Nem
- Állapot:nincs megadva
- Hány szintes az ingatlan:nincs megadva
- Hányadik emeleti:nincs megadva
- Parkolási lehetőség:nincs megadva
- Őrzött parkoló:nincs megadva
- Bútorozottság:nincs megadva
- Fényviszony:nincs megadva
- Tájolás:nincs megadva
- Kilátás:nincs megadva
- Internet:nincs megadva
- Akadálymentesített:nincs megadva
- Energiatanúsítvány:nincs megadva
- Üzenetküldés
- Hívás


Hitel ajánlat
Ingatlan hirdetés leírása
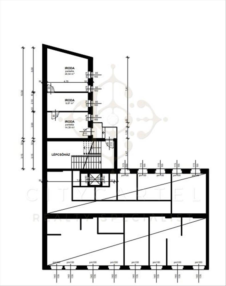
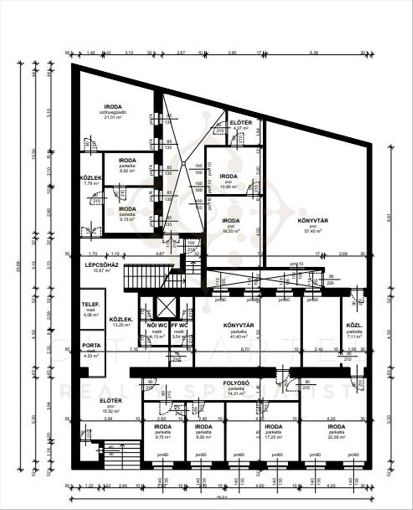
7. kerületben ELADÓ egy 1100 nm-es 4 szintes irodaház Az ir...
7. kerületben eladó egy 1100 nm-es 4 szintes irodaház Az irodák többsége bérbe van adva.- Telek mérete: 436 nm
- bruttó alapterület: 1100 nm
- szintek: pinceszint (kb. 200 Nm), földszint (kb. 302 Nm + kb. 25 Nm kerthelyiség), első emelet (kb. 244 Nm), másfél emelet (kb. 45 Nm), második emelet (kb. 233 Nm), két és feledik emelet (kb. 30 Nm).
Az irodaház jó állapotú, műanyag nyílászárókkal, valamint nagy részben légkondicionált irodákkal rendelkezik. Új kazán és kéményrendszer került beépítésre. Az irodaház per -és tehermentes!
Az eladási ár bruttó, nem tartalmaz Áfa-t!
Ár: 980 millió Ft Hitel.hu - Hasonlítsa össze a bankok lakáshitel ajánlatait

