Eladó iroda Tatabánya
| Kedvencbe | Megosztás | Árfigyelő |
| Kedvezményes lakáshitel ajánlatok | ||
| 194 000 000 HUF | ||
Ingatlan adatai
- Eladó vagy kiadó:Eladó
- Település:Tatabánya
- Kategória:Iroda
- Alkategória:Irodaház
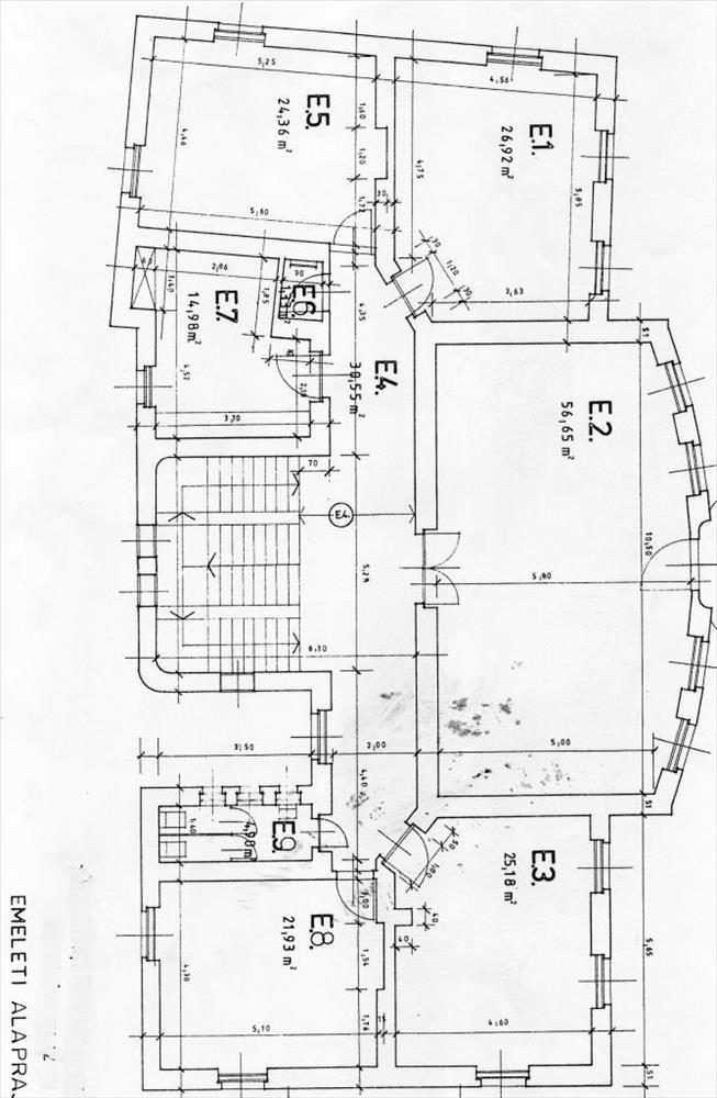
- Alapterület:516 m2
- Csere is:Nem
- Hirdető:Cég
- Élő videón megtekinthető:Nem
- Állapot:nincs megadva
- Hány szintes az ingatlan:nincs megadva
- Hányadik emeleti:nincs megadva
- Parkolási lehetőség:nincs megadva
- Őrzött parkoló:nincs megadva
- Bútorozottság:nincs megadva
- Fényviszony:nincs megadva
- Tájolás:nincs megadva
- Kilátás:Panorámás
- Internet:nincs megadva
- Akadálymentesített:nincs megadva
- Energiatanúsítvány:nincs megadva
- Üzenetküldés
- Hívás

Referencia szám: IN018349

Hitel ajánlat
Ingatlan hirdetés leírása
városrészközponti irodaház
Tatabánya Bánhida városrészében eladóvá vált egy felújítandó, hagyományos téglaépítésű irodaház. a közforgalomra tervezett és használt alápincézett, kétszintes épületben irodák, termek, szociális helyiségek és közlekedők vannak. Folyamatosan használták, használják. Jelenleg hőtevhnikailag nagyon jól felújított fütési rendszer, hőszigetelt ablakok, karbantartott szociális helyiségek, használható termek és irodák jellemzik. Igényesen kivitelezett külleme tetszetős, funkciója másképpen is elképzelhető. Kitűnő fejlesztési, befektetési lehetőség. Helyi hagyományőrzőknek óriási kincs lehet. Keress bizalommal!Forduljon hozzám bizalommal: Zovits Tamás ingatlanszakértő, értékbecslő és energetikai tanusító, 06-30-9476720
Referencia szám: in018349 Hitel.hu - Hasonlítsa össze a bankok lakáshitel ajánlatait

