Eladó telek Vácrátót
| Kedvencbe | Megosztás | Árfigyelő |
| Kedvezményes lakáshitel ajánlatok | ||
| 1 230 096 000 HUF | ||
Ingatlan adatai
- Eladó vagy kiadó:Eladó
- Település:Vácrátót
- Kategória:Telek
- Alkategória:Külterületi
- Alapterület:nincs megadva
- Telekterület:102508 m2
- Csere is:Nem
- Hirdető:Cég
- Élő videón megtekinthető:Nem
- Villany:Utcában
- Víz:Utcában
- Gáz:Utcában
- Csatorna:Utcában
- Üzenetküldés
- Hívás


Hitel ajánlat
Ingatlan hirdetés leírása
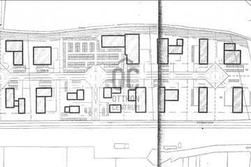
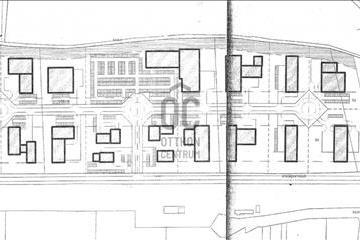
FEJLESZTÉSI TELEK VÁCRÁTÓTON ELADÓ! Jelenleg a közművesítés za...
Fejlesztési telek vácrátóton eladó! Jelenleg a közművesítés zajlik!Vácrátót község Pest megyében, a Váci járásban, az Alföld északi részén található Veresegyházi-medencében fekszik.
Övezeti besorolás: Gksz 1- kereskedelmi szolgáltató gazdasági terület
Beépítési mód: szabadonálló
Maximális beépíthetőség:30%
Minimális telekméret: 4000m2
Építménymagasság: 4-15 méter
AZ ár az éppen aktuálisan zajló közműfejlesztések függvényében VÁLTOZHAT!
1 Hektáros tömbönként szeretné eladni a tulajdonos
Új szabályozási terv elfogadása van folyamatban.
A jelenlegi szabályozás szerint belső feltáró út kialakítása szükséges amely lehetővé tenné a terület akár 25 telekre való felosztását.
Mindemellett az önkormányzat partner lenne abban is, hogy a feltáró út kikerüljön az építési szabályozásból és a terület egyben lenne hasznosítva, ily módon munkahelyteremtő beruházás valósulna meg. Hitel.hu - Hasonlítsa össze a bankok lakáshitel ajánlatait

