Eladó átlagos állapotú lakás Budapest II. kerület
| Kedvencbe | Megosztás | Árfigyelő |
| Kedvezményes lakáshitel ajánlatok | ||
| 159 000 000 HUF | ||
Ingatlan adatai
- Eladó vagy kiadó:Eladó
- Település:Budapest II. kerület
- Kategória:Lakás
- Alkategória:Egyéb
- Alapterület:84 m2
- Csere is:Nem
- Hirdető:Cég
- Élő videón megtekinthető:Nem
- Szobaszám:2 + 1 fél
- Állapot:Átlagos állapotú
- Hány szintes az ingatlan:nincs megadva
- Komfortosság:nincs megadva
- Kertkapcsolatos:Igen
- Hányadik emeleti:nincs megadva
- Erkély:Van
- Parkolási lehetőség:nincs megadva
- Fűtés:Házközponti
- Bútorozottság:nincs megadva
- Fényviszony:nincs megadva
- Tájolás:nincs megadva
- Kilátás:nincs megadva
- Internet:nincs megadva
- Akadálymentesített:nincs megadva
- Energiatanúsítvány:nincs megadva
- Villany:nincs megadva
- Víz:nincs megadva
- Gáz:nincs megadva
- Csatorna:nincs megadva
- Üzenetküldés
- Hívás


Hitel ajánlat
Ingatlan hirdetés leírása
Eladásra kínálunk egy patinás, Bauhaus jellegű társasház legfe...
Eladásra kínálunk egy patinás, Bauhaus jellegű társasház legfelső emeleti, kiemelkedő adottságú lakását a II. kerület frekventált, mégis nyugodt részén.Lokáció:
Néhány perc sétával elérhető a Margit híd, a Széll Kálmán tér, a Mammut Bevásárlóközpont, a Fény utcai piac, a Millenáris Park, valamint a Margit-sziget.
A Kút utca csendes, átmenő forgalomtól szinte mentes, miközben minden fontos szolgáltatás pár száz méteren belül megtalálható, ideális választás a városi életet kedvelők számára.
Az épület:
A kora 1940-es években épült, lapostetős, hőszigetelt, karbantartott, 12 lakásos társasház nagy, zöld belső kerttel és frissen felújított, világos lépcsőházzal rendelkezik. a ház 4 szintes (fsz + mfsz + 2 emelet), lift nincs.
A lakás főbb jellemzői:
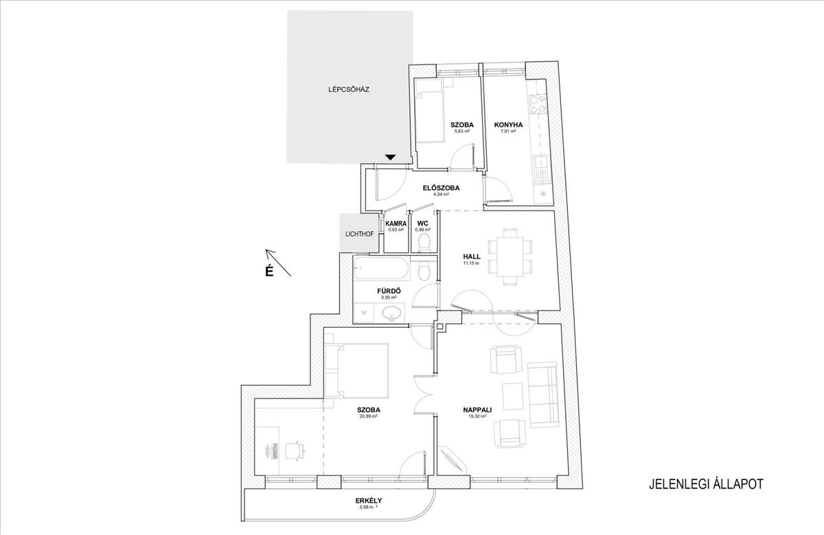
2. emeleti, 84 m² (tulajdoni lap szerint)
2 + ½ szoba + hall, erkély
Fürdőszoba és külön wc, ablakos kamra
2, 9 m belmagasság, tágas, világos terek
Két irányba tájolt:
konyha és félszoba: kelet–északkelet, kertre néz
szobák és erkély: dél–délnyugat, utcára és fás kertre néz
A lakás 20 éve átfogó felújításon esett át, jelenleg igény szerint felújítandó, tisztasági festés után akár azonnal költözhető.
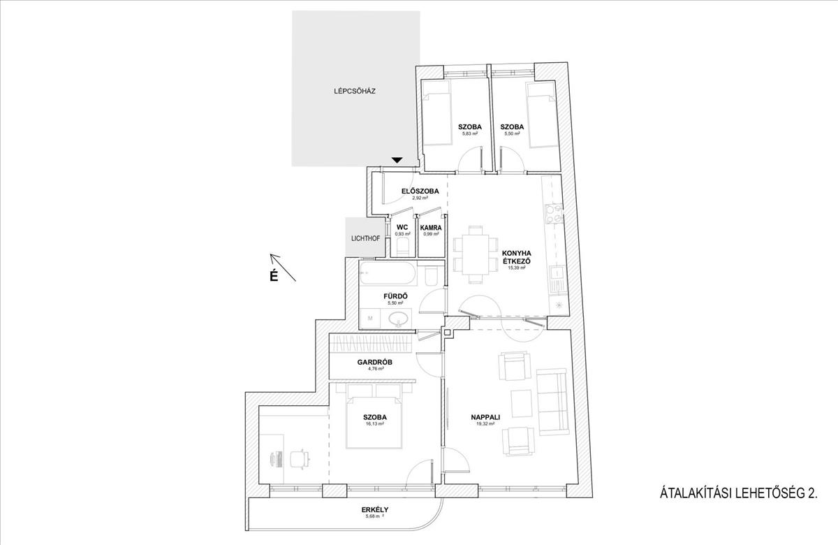
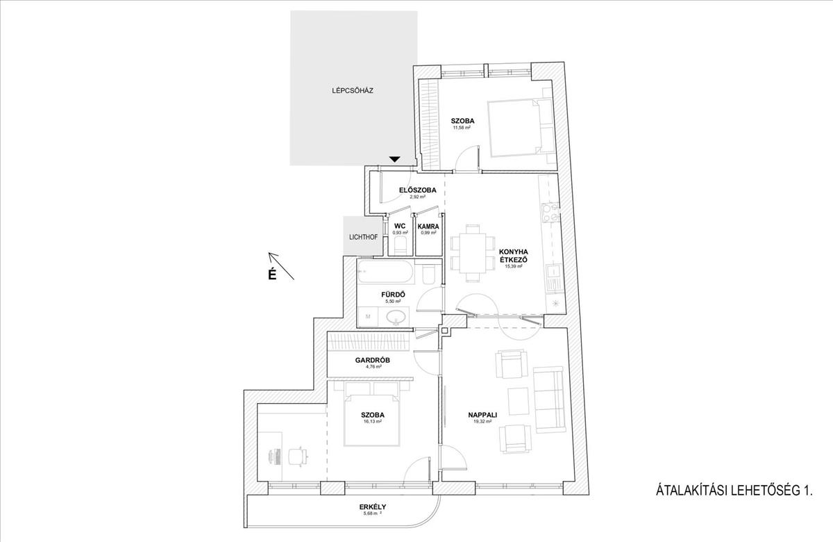
Átalakíthatóság:
A konyha az étkező részhez való helyezésével (amerikai konyha létrehozásával) a lakás 3 szobássá vagy 2 + 2 félszobássá alakítható, így nagyobb család számára is kiváló lehetőség.
Műszaki adatok és extrák:
Házközponti fűtés radiátorokkal
Melegvíz: villanybojler
Gáz bevezetve
Zárható közös kerékpártároló
6 m²-es saját pincerekesz
Költségek, parkolás:
Közös költség: 39 000 Ft/hó (fűtés és vízdíj benne)
Parkolás az utcán, fizetős övezetben
Amennyiben felkeltettem érdeklődését, kérem keressen!
+36 70 614 5282 Hitel.hu - Hasonlítsa össze a bankok lakáshitel ajánlatait

