- >>
- eladó ingatlanok
- >>
- eladó lakás
- >>
- eladó lakás Budapest VI. kerület
- >>
Eladó új építésű lakás - Budapest VI. kerület
| | |||
| Kedvencnek jelölöm | Elküldöm emailben | Megosztás | Szavazás |
| Kedvezményes lakáshitel ajánlatok | |||
| 84 000 000 HUF | |||
Ingatlan adatai
- Eladó vagy kiadó:Eladó
- Település:Budapest VI. kerület
- Kategória:Lakás
- Alkategória:Egyéb
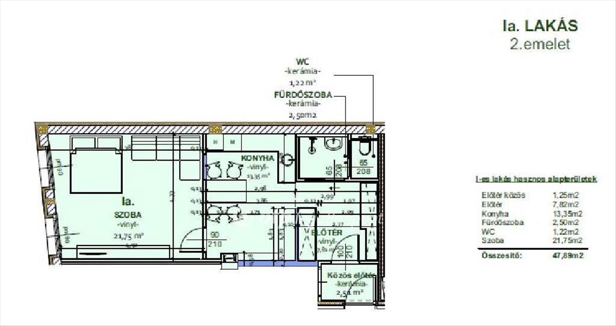
- Alapterület:48 m2
- Csere is:Nem
- Hirdető:Cég
- Élő videón megtekinthető:Nem
- Szobaszám:2
- Állapot:Új építésű
- Hány szintes az ingatlan:Földszintes
- Komfortosság:nincs megadva
- Hányadik emeleti:2
- Lift:Van
- Parkolási lehetőség:nincs megadva
- Fűtés:Hőszivattyús
- Bútorozottság:nincs megadva
- Fényviszony:Jó
- Tájolás:nincs megadva
- Kilátás:nincs megadva
- Internet:nincs megadva
- Klíma:Van
- Akadálymentesített:nincs megadva
- Energiatanúsítvány:A+
- Villany:Van
- Víz:Van
- Gáz:nincs megadva
- Csatorna:Van
- Üzenetküldés
- Hívás

Jowettné Komlósi Piroska
Mondd meg a hirdetőnek, hogy a megveszLAK-on találtad a hirdetést.
Referencia szám: M305415

Hitel ajánlat
Ingatlan hirdetés leírása
Eladó Lakás, Budapest 6. ker.
Új építésű lakások a Rózsa utcában! ! !A társasházban összesen 19 darab új építésű lakás kerül kialakításra, 1, 5, 2 és 3 szobás elrendezéssel, kétszintes ráépítéssel, valamint a tetőtér beépítésével. Az épület teljeskörű felújításon esik át, új homlokzatot is kap.
Eladó egy 48 nm-es, 1+1 félszobás, új építésű lakás a társasház második emeletén.
Főbb jellemzők:
motoros redőnnyel felszerelt nyílászárók.
Mennyezeti hűtés-fűtés rendszer és padlófűtés.
Alacsony fenntartási költségek.
Panorámalift biztosítja a kényelmet.
Várható átadás: 2025. Május vége.
Kiváló lokáció: néhány perc sétára található az Andrássy út, a Kodály Körönd metrómegállója, valamint a Városliget, az Oktogon és a Nyugati pályaudvar is könnyen elérhető gyalogosan.
A társasházban engedélyezett a rövid távú kiadás, így a lakás befektetési célra is ideális választás. Hitel.hu - Hasonlítsa össze a bankok lakáshitel ajánlatait

