Eladó felújított lakás - Budapest VIII. kerület
- INGYENES HIRDETÉS FELADÁS
Ingatlan adatai
- Eladó vagy kiadó:Eladó
- Település:Budapest VIII. kerület
- Kategória:Lakás
- Alkategória:Egyéb
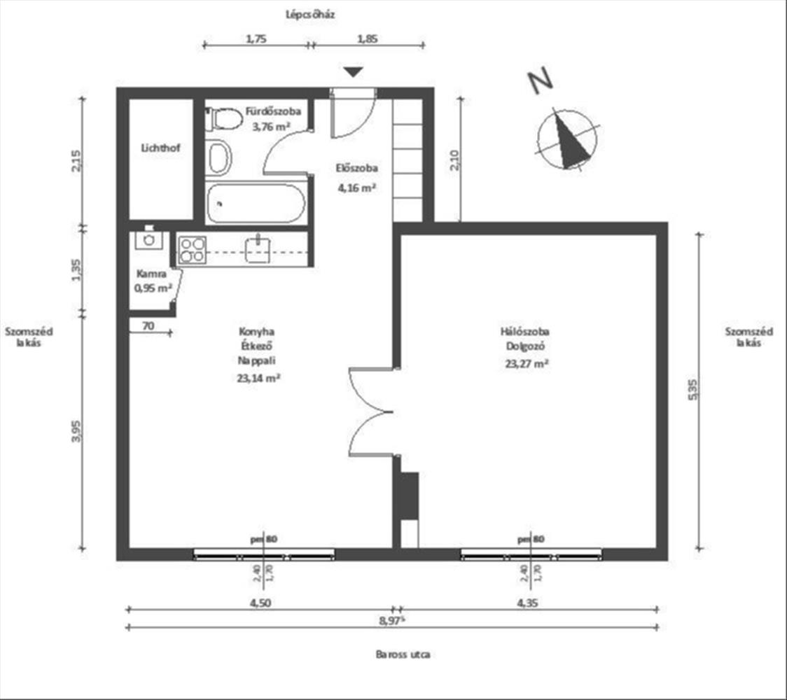
- Alapterület:56 m2
- Csere is:Nem
- Hirdető:Cég
- Élő videón megtekinthető:Nem
- Szobaszám:2
- Állapot:Felújított
- Hány szintes az ingatlan:nincs megadva
- Komfortosság:nincs megadva
- Hányadik emeleti:nincs megadva
- Erkély:nincs megadva
- Lift:Van
- Parkolási lehetőség:nincs megadva
- Fűtés:nincs megadva
- Bútorozottság:Bútorozott
- Fényviszony:nincs megadva
- Tájolás:nincs megadva
- Kilátás:nincs megadva
- Internet:nincs megadva
- Klíma:Van
- Akadálymentesített:nincs megadva
- Energiatanúsítvány:nincs megadva
- Villany:nincs megadva
- Víz:nincs megadva
- Gáz:nincs megadva
- Csatorna:nincs megadva
- Kapcsolatfelvétel

Popovics József
+36703133578
Mondd meg a hirdetőnek, hogy a megveszLAK-on találtad a hirdetést.
Hitel ajánlatok
Ingatlan hirdetés leírása
Stílusos otthon a Kálvin tér közelében! VIII. Palotanegyedben...
Stílusos otthon a Kálvin tér közelében!
VIII. Palotanegyedben, a Baross utca elején, közel a Kálvin térhez eladó egy Bauhaus stílusban épült, liftes társasház 1. emeletén egy teljeskörűen felújított, igazán otthonos, nagyon világos lakás.
A felújítás mindenre kiterjedt és egy igazán szép otthont sikerült megalkotni.
Modern burkolatok, stílusos konyha és fürdő, új vagy felújított nyílászárók, minden részletében friss, lendületes hangulatot áraszt. a két szoba ideális elrendezésű: amerikai konyhás nappali és tágas hálószoba biztosítja a kényelmet és a funkcionális elosztást.
A szobák utcai nézetűek, délnyugati a tájolásuk, mindkét ablak 3 rétegű hő- és hangszigetelt üvegezéssel készült, redőnnyel felszereltek, új a bejárati ajtó is.
A lakás fűtését gáz-cirkó kazán biztosítja, ezt egészíti egy hűtő-fűtő klíma, aminek a beltéri egysége a nappaliban található. Minden helyiségben van radiátor, így optimális a hőérzet.
Az előszobában található beépített szekrény, hatalmas tároló kapacitást rejt, a konyha mellett egy kamra van, itt található a kombi-cirkó készülék, ami a fűtést és a melegvíz ellátást biztosítja. a hálószoba is nagy méretű, helyet kapott benne egy dolgozósarok is.
Közös költség 23. 000 Ft, amely összeg tartalmazza a felújítási alapot.
Belmagasság: 305 cm.
A lokáció optimális, minden a közelben van, amire szükségünk lehet.
Több egyetem is sétatávolságon belül található.
Az m3 és m4 metrók és több villamos is 5 perc alatt gyalogosan elérhetőek. Hitel.hu - Hasonlítsa össze a bankok lakáshitel ajánlatait
Tetszett ez az eladó Budapest VIII. kerületi felújított 2 szobás lakás? Hívd fel a hirdetőt most, és tudj meg mindent erről az eladó lakásról! Ha gondolod nézelődj tovább az eladó lakás Budapest VIII. kerület oldal hirdetései között. Ennek az eladó lakásnak az ára 92900000 Ft és mivel az alapterülete 56 négyzetméter, ezért az átlagos négyzetméterára 1658929 HUF/m2.
Az eladó lakások menüpontban további hirdetések között is böngészhetsz. Az összes eladó budapesti lakás hirdetést tartalmazó oldalon tudsz böngészni. Ha van kedved, akkor böngészhetsz a Popovics József összes hirdetése között, vagy akár a/az Immo1 Erzsébetváros összes hirdetése között is.

