Eladó jó állapotú lakás - Budapest XIV. kerület
- INGYENES HIRDETÉS FELADÁS
Ingatlan adatai
- Eladó vagy kiadó:Eladó
- Település:Budapest XIV. kerület
- Kategória:Lakás
- Alkategória:Csúsztatott zsalus
- Alapterület:55 m2
- Csere is:Nem
- Hirdető:Cég
- Élő videón megtekinthető:Nem
- Szobaszám:2
- Állapot:Jó állapotú
- Hány szintes az ingatlan:nincs megadva
- Komfortosság:nincs megadva
- Hányadik emeleti:nincs megadva
- Erkély:Van
- Lift:nincs megadva
- Parkolási lehetőség:nincs megadva
- Fűtés:Gáz (konvektor)
- Bútorozottság:nincs megadva
- Fényviszony:nincs megadva
- Tájolás:DNY
- Kilátás:Kertre néző
- Internet:nincs megadva
- Klíma:nincs megadva
- Akadálymentesített:nincs megadva
- Energiatanúsítvány:nincs megadva
- Villany:Van
- Víz:Van
- Gáz:Van
- Csatorna:Van
- Közös költség:13 800 Ft
- Kapcsolatfelvétel

Tőke Zoltán
+36-(70)-716-9386
Mondd meg a hirdetőnek, hogy a megveszLAK-on találtad a hirdetést.
Hitel ajánlatok
Ingatlan hirdetés leírása
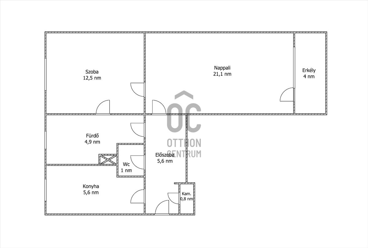
Eladó a 14.kerületben Nagyzuglóban a Nagy Lajos király útján e...
Eladó a 14. kerületben Nagyzuglóban a Nagy Lajos király útján egy zöldre néző erkéllyel, rendelkező 51 nm -es, 2 szobás jó állapotú társasházi lakás, egy kis lakásszámú rendezett, négy szintes társasház 3. emeletén. Beosztását nagy és erkélyes nappali, fürdőkapcsolatos háló, kádas fürdő, ablakos konyha, tágas előszoba, külön wc, és egy kis méretű kamra gazdagítja. a lakásban az utóbbi évek folyamán cserélve lettek a külső és belső nyílászárók, a hidegburkolatok, a melegvíz előállítása pedig modern gáz cirkó készülékről történik (a kazán igény esetén központi fűtés kiszolgálására is alkalmas). Fűtését jelenleg gáz konvektorok biztosítják, közös költsége 13800 Ft, a víz és gázfogyasztást egyedi mérő méri. Kitűnő közlekedés, zöldre néző erkély, jó állapot, jó lehetőség.
Az energetikai tanúsítvány készítése folyamatban van, amint rendelkezésre áll, úgy azzal a hirdetés frissítésre kerül.
Ha felkeltettem érdeklődését, várom hívását! FIX 3% lakáshitelre megvehető
Tetszett ez az eladó Budapest XIV. kerületi jó állapotú 2 szobás lakás? Hívd fel a hirdetőt most, és tudj meg mindent erről az eladó lakásról! Ha gondolod nézelődj tovább az eladó lakás Budapest XIV. kerület oldal hirdetései között. Ennek az eladó lakásnak az ára 69900000 Ft és mivel az alapterülete 55 négyzetméter, ezért az átlagos négyzetméterára 1270909 HUF/m2.
Az eladó lakások menüpontban további hirdetések között is böngészhetsz. Az összes eladó budapesti lakás hirdetést tartalmazó oldalon tudsz böngészni. Ha van kedved, akkor böngészhetsz a Tőke Zoltán összes hirdetése között, vagy akár a/az Otthon Centrum XIV. kerület - István Park - 1 összes hirdetése között is.

