Eladó jó állapotú lakás Budapest XXIII. kerület
| Kedvencbe | Megosztás | Árfigyelő |
| FIX 3% lakáshitelre megvehető | ||
| 99 900 000 HUF | ||
Ingatlan adatai
- Eladó vagy kiadó:Eladó
- Település:Budapest XXIII. kerület
- Kategória:Lakás
- Alkategória:Egyéb
- Alapterület:97 m2
- Csere is:Nem
- Hirdető:Cég
- Élő videón megtekinthető:Nem
- Szobaszám:2 + 2 fél
- Állapot:Jó állapotú
- Hány szintes az ingatlan:2 szintes
- Komfortosság:nincs megadva
- Kertkapcsolatos:Igen
- Hányadik emeleti:Földszint
- Lift:Nincs
- Parkolási lehetőség:Teremgarázsban
- Fűtés:Gáz (cirko)
- Bútorozottság:nincs megadva
- Fényviszony:Napfényes
- Tájolás:nincs megadva
- Kilátás:nincs megadva
- Internet:nincs megadva
- Klíma:Van
- Akadálymentesített:nincs megadva
- Energiatanúsítvány:D
- Villany:Van
- Víz:Van
- Gáz:nincs megadva
- Csatorna:Van
- Közös költség:1 Ft
- Üzenetküldés
- Hívás

Sasaran-Kereki Katalin
Mondd meg a hirdetőnek, hogy a megveszLAK-on találtad a hirdetést.
Referencia szám: M312220

Hitel ajánlat
Ingatlan hirdetés leírása
Eladó Lakás, Budapest 23. ker.
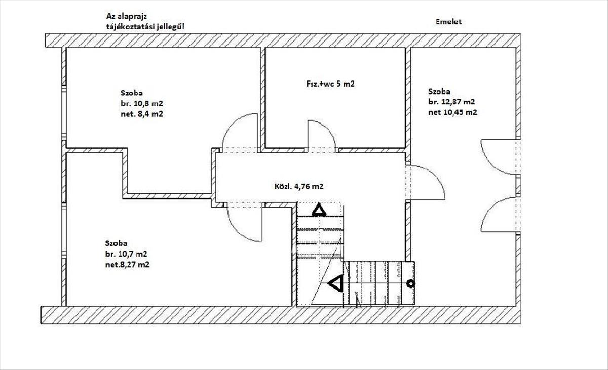
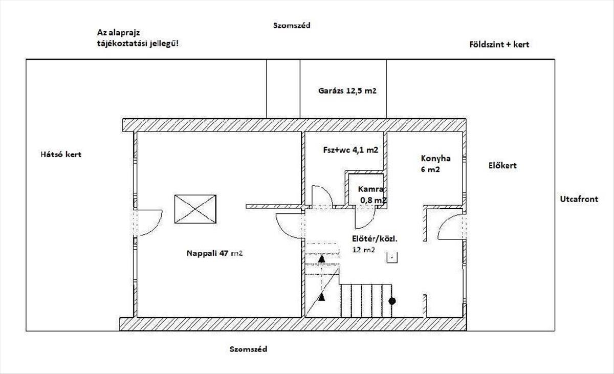
Árcsökkenés! Eladó sorház Budapest, XXIII. kerület közkedvelt részén!Budapest XXIII. kerületének egyik kedvelt utcájában kínálunk megvételre egy jó állapotú, belső kétszintes, könnyűszerkezetes sorházat, amely igazi otthonos hangulatot áraszt. Az ingatlan nettó 97, bruttó 110 négyzetméter alapterületű, kényelmes elosztású, 2+2 szobával és duplakomforttal rendelkezik. a ház különlegessége a közel 47 négyzetméteres, tágas és világos, kertkapcsolatos nappali, amelyet a korábbi terasz beépítésével alakítottak ki, így igazi központja lehet a családi életnek.
A saját, kizárólagos kerthasználat egy igazi kincs: bár nem nagy, éppen ideális arra, hogy a család kiüljön egy beszélgetésre, kávéra a barátokkal, nyári estéken gyertyafény mellett vacsorázzon, vagy egy kis zölddel vegye körül magát a rohanó hétköznapok után. a kerthez saját garázs is tartozik, az ingatlan minden közműve önálló mérőórával rendelkezik. a ház 1988-ban épült, majd 2001-ben szinte teljes körű felújításon esett át. a fűtésről gázcirkó és elektromos rendszer gondoskodik, a kellemes komfortérzetet a nappaliban központi klíma, és egy külön klíma biztosítja az emeleten.
Az elhelyezkedés szintén kiemelkedő: a ház nyugodt környezetben található, mégis kiváló közlekedési adottságokkal rendelkezik. a közeli buszjáratok (66, 66e, 123, 135, 166) gyors kapcsolatot biztosítanak a belváros és a környező kerületek felé, a H6-os HÉV-vel pedig szintén könnyedén elérhető a város. Átszállással az m3 metró is rövid idő alatt megközelíthető, autóval pedig néhány perc az M0-s autóút. a közelben minden megtalálható, ami a kényelmes mindennapokhoz szükséges: bevásárlási lehetőségek, iskola, óvoda, önkormányzat, gyógyszertár és orvosi rendelő, sportolási lehetőségek rövid időn belül elérhetőek.
Ez az ingatlan azok számára lehet ideális választás, akik szeretnék a kertvárosi nyugalmat élvezni, miközben tágas, világos terekkel rendelkező, jól karbantartott otthonban élnek, ahol a mindennapok kényelme és a városhoz való jó közlekedési kapcsolat egyaránt adott.
Ügyfeleink számára teljes körű ügyintézéssel állunk rendelkezésre. Kínálatunkból választott ingatlan finanszírozásához kedvezményes hitelmegoldásokat kínálunk, illetve az adásvételi szerződés megkötéséhez megbízható ügyvédi közreműködést is tudunk biztosítani!
Ha hirdetésünk felkeltette érdeklődését, kérem hívjon bizalommal a hét bármely napján!
99900000 Ft
Referencia szám: m312220 FIX 3% lakáshitelre megvehető

