- >>
- eladó ingatlanok
- >>
- eladó lakás
- >>
- eladó lakás Budapest XXIII. kerület
- >>
Eladó jó állapotú lakás - Budapest XXIII. kerület
| | |||
| Kedvencnek jelölöm | Elküldöm emailben | Megosztás | Szavazás |
| FIX 3% lakáshitelre megvehető | |||
| 99 900 000 HUF | |||
Ingatlan adatai
- Eladó vagy kiadó:Eladó
- Település:Budapest XXIII. kerület
- Kategória:Lakás
- Alkategória:Egyéb
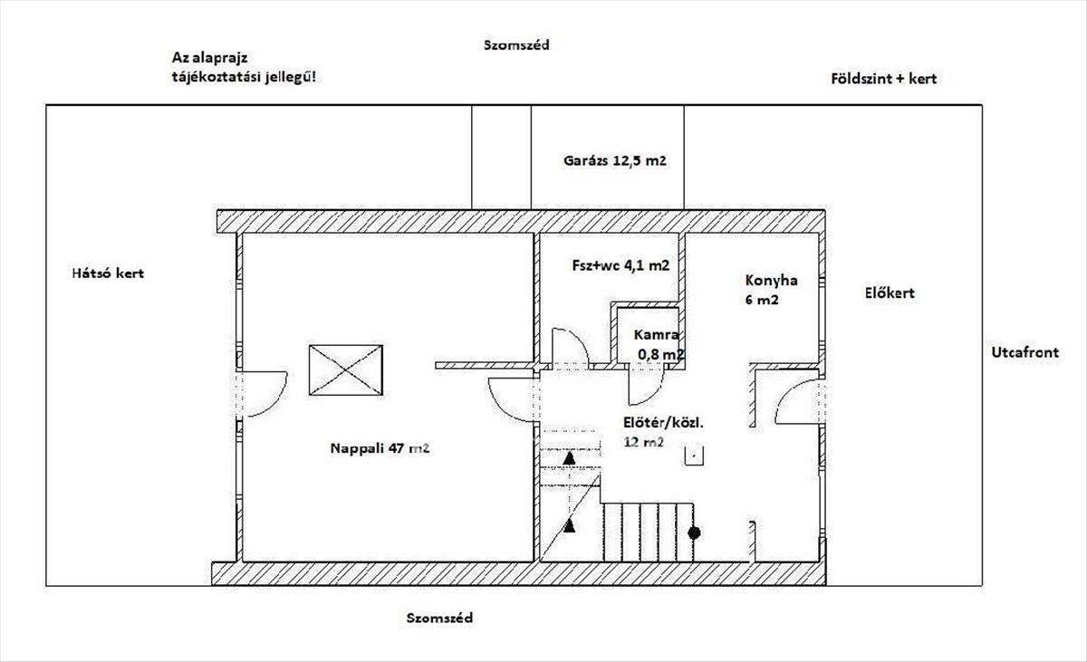
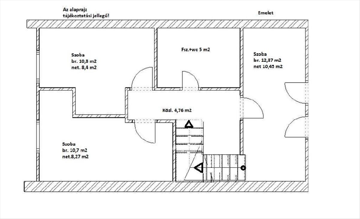
- Alapterület:97 m2
- Csere is:Nem
- Hirdető:Cég
- Élő videón megtekinthető:Nem
- Szobaszám:2 + 2 fél
- Állapot:Jó állapotú
- Hány szintes az ingatlan:2 szintes
- Komfortosság:nincs megadva
- Kertkapcsolatos:Igen
- Hányadik emeleti:Földszint
- Lift:Nincs
- Parkolási lehetőség:Teremgarázsban
- Fűtés:Gáz (cirko)
- Bútorozottság:nincs megadva
- Fényviszony:Napfényes
- Tájolás:DNY
- Kilátás:nincs megadva
- Internet:nincs megadva
- Klíma:Van
- Akadálymentesített:nincs megadva
- Energiatanúsítvány:B
- Villany:Van
- Víz:Van
- Gáz:nincs megadva
- Csatorna:Van
- Közös költség:1 Ft
- Üzenetküldés
- Hívás

Erdélyi Miklós István
Mondd meg a hirdetőnek, hogy a megveszLAK-on találtad a hirdetést.
Referencia szám: M312220

Hitel ajánlat
Ingatlan hirdetés leírása
Eladó Lakás, Budapest 23. ker.
***Eladó sorház Budapest, XXIII. kerület közkedvelt részén! *** Kizárólag Nálunk!Budapest, XXIII. kerületének egyik kedvelt utcájában kínálunk megvételre egy jó állapotú, belső kétszintes, könnyűszerkezetes sorházat, amely igazi otthonos hangulatot áraszt. Betonyp láncház. Az ingatlan nettó 97, bruttó 110 nm alapterületű, kényelmes elosztású, 2+2 szobával és duplakomforttal rendelkezik. a ház különlegessége a közel 47 nm-es, tágas és világos, kertkapcsolatos nappali, amelyet a korábbi terasz beépítésével alakítottak ki, így igazi központja lehet a családi életnek.
A saját, kizárólagos kerthasználat egy igazi kincs: bár nem nagy, éppen ideális arra, hogy a család kiüljön egy beszélgetésre, kávéra a barátokkal, nyári estéken gyertyafény mellett vacsorázzon, vagy egy kis zölddel vegye körül magát a rohanó hétköznapok után. a kerthez saját garázs is tartozik, az ingatlan minden közműve önálló mérőórával rendelkezik. a ház 1988-ban épült, majd 2001-ben szinte teljes körű felújításon esett át. a fűtésről gázcirkó és elektromos rendszer gondoskodik, a kellemes komfortérzetet a nappaliban központi klíma, és egy külön klíma biztosítja az emeleten.
Az elhelyezkedés szintén kiemelkedő: a ház nyugodt környezetben található, mégis kiváló közlekedési adottságokkal rendelkezik.
Ingatlanjogász ügyvédi iroda vagyunk.
Referencia szám: m312220-ml FIX 3% lakáshitelre megvehető

