Eladó új építésű lakás - Budapest XXIII. kerület
- INGYENES HIRDETÉS FELADÁS
Ingatlan adatai
- Eladó vagy kiadó:Eladó
- Település:Budapest XXIII. kerület
- Kategória:Lakás
- Alkategória:Egyéb
- Alapterület:40 m2
- Csere is:Nem
- Hirdető:Cég
- Élő videón megtekinthető:Nem
- Szobaszám:2
- Állapot:Új építésű
- Hány szintes az ingatlan:nincs megadva
- Komfortosság:nincs megadva
- Kertkapcsolatos:Igen
- Hányadik emeleti:nincs megadva
- Erkély:Van
- Lift:Van
- Parkolási lehetőség:nincs megadva
- Fűtés:nincs megadva
- Bútorozottság:Bútorozott
- Fényviszony:nincs megadva
- Tájolás:nincs megadva
- Kilátás:nincs megadva
- Internet:nincs megadva
- Klíma:nincs megadva
- Akadálymentesített:nincs megadva
- Energiatanúsítvány:nincs megadva
- Villany:nincs megadva
- Víz:nincs megadva
- Gáz:nincs megadva
- Csatorna:nincs megadva
- Kapcsolatfelvétel

Golobicza Roland
+36309455547
Mondd meg a hirdetőnek, hogy a megveszLAK-on találtad a hirdetést.
Ingatlan hirdetés leírása
✅Az első igazi otthonod Soroksár zöld szívében, fény, tér, nyu...
✅Az első igazi otthonod Soroksár zöld szívében, fény, tér, nyugalom – vadonatúj lakás a Fatimai közben!
ELADÓ ez a Napfényes, Délnyugati fekvésű 40 m2-es belső kétszintes lakás, nappali + hálószoba. 2024-Ben került átadásra, vadonatúj, Ön lehet az első lakója! a konyha felszerelt és gépesített. Ablakok elektromos redőnnyel szereltek! Azonnal KÖLTÖZHETŐ!
FÖBB jellemzők:
•AZONNAL költözhető!
•Napfényes, DNY-i fekvés
•Elektromos redőnnyel felszerelt
•4. emelet, belső kétszintes lakás
•Különálló garázs (19m2) megvehető, de nem kötelező
•Modern Geotermikus hűtés-fűtés
•Lakásban padló és mennyezet hűtés-fűtés
•Hővisszanyerős szellőztető rendszer
•6 kamrás nyílászárók 3 rétegű üvegezéssel, bukó nyíló kivitelben
•ÜVEGKORLÁTOS Erkély nagyobb mint 4 m2, jól használható
•Társasház 4 emeletes, liftes, 24 lakással
•Közös ktsg: 21. 000 Ft
•Soroksár Apartments első üteme.
Ha fontos Önnek a modern műszaki tartalom, az alacsony rezsi és a jól élhető elrendezés, ez a lakás ideális választás.
A délnyugati tájolás egész nap természetes fényt enged be, a 4 m² feletti üvegkorlátos erkély pedig tökéletes hely a reggeli kávéhoz vagy az esti lelassuláshoz. a modern, gépesített konyha készen vár, az elektromos redőnyök és a csendes környezet pedig valódi komfortot nyújtanak.
A 38 m² lakótér + erkély, nappali + hálószobás kialakítás belső kétszintes megoldással praktikus és jól szeparálható életteret biztosít. a felső szinten fürdő és gardrób is kialakítható.
A geotermikus fűtés-hűtés, a padló- és mennyezetfűtés, valamint a hővisszanyerős szellőztetés egész évben egyenletes komfortot és kiszámítható üzemeltetést ad. a lakás minden helyisége külön termosztáttal szabályozható.
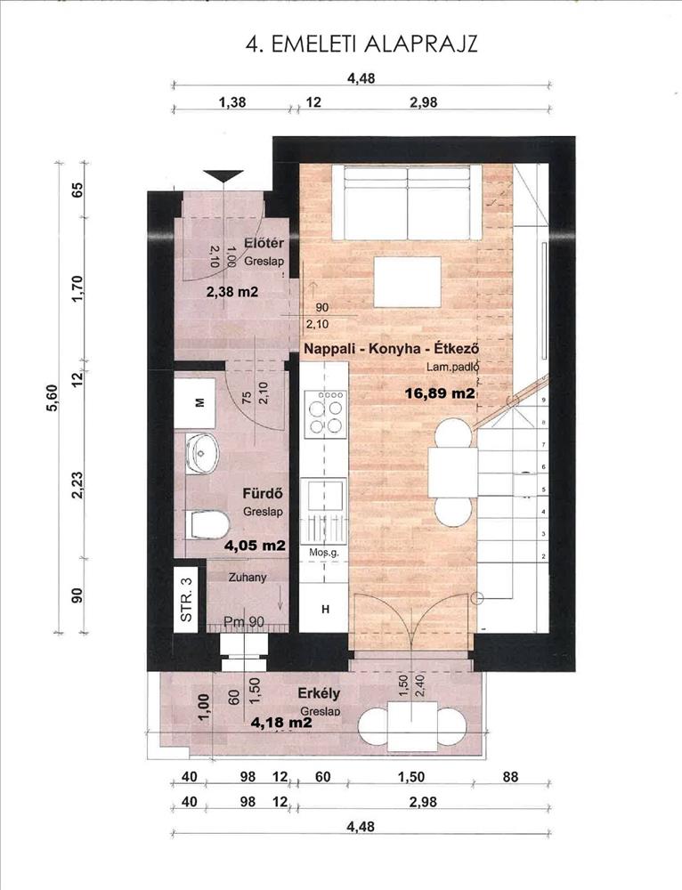
HELYISÉGLISTA:
•Előtér – 2, 38 m²
•Fürdő – 4, 05 m²
•Nappali – 16, 00 m²
•Konyha – 0, 89 m²
•Galéria – 11, 86 m²
•Fürdő – 2, 94 m²
•Erkély – 4, 18 m²
KÖRNYÉK LEÍRÁSA
Soroksár kertvárosi része ideális választás azoknak, akik nyugalmat keresnek, de nem mondanának le a város közelségéről. a Fatimai köz környékén 300 méteren belül minden megtalálható: üzletek, orvos, gyógyszertár, posta, játszótér, buszmegállók.
A belváros 30–55 perc alatt elérhető tömegközlekedéssel, az m5 autópálya 4 percre van. Iskolák, óvodák, sportolási lehetőségek, zöldterületek mind hozzájárulnak az élhető mindennapokhoz.
KINEK AJÁNLOM?
•Fiatal pároknak első közös otthonnak
•Egyedülállóknak modern élettérként
•Befektetőknek stabil, jól kiadható lakásként
Ne hagyja ki ezt a remek lehetőséget! Hívjon és tekintse meg személyesen!
Ingatlant adna el a vásárlás előtt? Segítek benne!
Személyes konzultáció, piaci elemzés és tanácsadás az első alkalommal teljesen díjmentes, kötelezettség nélkül!
Ne hagyja ki ezt a kivételes lehetőséget – hívjon bizalommal, és találjuk meg együtt álmai otthonát vagy a tökéletes befektetést!
Hitelre van szüksége?
Teljes körű és díjmentes hitel ügyintézéssel, biztosításkötéssel áll rendelkezésére szakértő kollégánk. Kérje személyre szabott ajánlatunkat!
Ügyvéd? – Ingyenes tanácsadással áll rendelkezésre ingatlan szakjogászunk!
Adatbázisunkban további több ezer ingatlanból választhat, hívjon bizalommal, hogy megtaláljuk a legmegfelelőbbet!
Várom megtisztelő hívását! Hitel.hu - Hasonlítsa össze a bankok lakáshitel ajánlatait


