Eladó felújítandó lakás - Kaposvár
- INGYENES HIRDETÉS FELADÁS
Ingatlan adatai
- Eladó vagy kiadó:Eladó
- Település:Kaposvár
- Kategória:Lakás
- Alkategória:Egyéb
- Alapterület:62 m2
- Csere is:Nem
- Hirdető:Cég
- Élő videón megtekinthető:Nem
- Szobaszám:3
- Állapot:Felújítandó
- Hány szintes az ingatlan:nincs megadva
- Komfortosság:nincs megadva
- Hányadik emeleti:nincs megadva
- Erkély:Van
- Lift:nincs megadva
- Parkolási lehetőség:nincs megadva
- Fűtés:Távfűtés egyedi mérővel
- Bútorozottság:nincs megadva
- Fényviszony:nincs megadva
- Tájolás:nincs megadva
- Kilátás:nincs megadva
- Internet:nincs megadva
- Klíma:nincs megadva
- Akadálymentesített:nincs megadva
- Energiatanúsítvány:nincs megadva
- Villany:nincs megadva
- Víz:nincs megadva
- Gáz:nincs megadva
- Csatorna:nincs megadva
- Kapcsolatfelvétel

Hagymás Péter
+36703358780
Mondd meg a hirdetőnek, hogy a megveszLAK-on találtad a hirdetést.
Hitel ajánlatok
Ingatlan hirdetés leírása
Kaposvár belvárosában, de mégis csendes, nyugodt részen, a Hon...
Kaposvár belvárosában, de mégis csendes, nyugodt részen, a Honvéd utcában, 62 nm -es, 3 szobás, erkélyes, 4/2. emeleti lakás eladó.
A társasház szigetelt, a lépcsőház tiszta, rendezett, nyílászárói már műanyagra lettek cserélve.
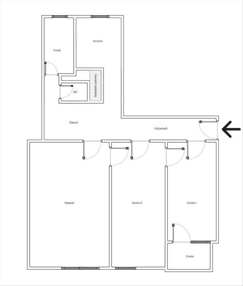
Helyiséglista: előszoba, konyha, étkező, 3 különnyíló szoba, fürdőszoba, külön wc, erkély. a szobák az előszobából nyílnak, de átjárhatóak.
Közös tároló tartozik a lakáshoz.
Az ingatlan lakható állapotban van, de igény szerint felújítandó.
Ablakai már műanyag nyílászárók redőnnyel.
Fűtése távfűtés, egyedi mérővel, rezsiköltsége kedvező.
Mérete és elosztása által nagyon jól kihasználható kisebb családoknak, de elhelyezkedése által kiváló befektetési lehetőség is, mivel könnyen és gyorsan kiadható.
Tehermentes, a vételár kifizetését követően azonnal birtokba vehető.
Közvetlen közelében található park, játszótér, élelmiszerboltok, iskola, óvoda, gyógyszertár, buszmegálló, különböző üzletek.
További információkért hívjon bizalommal. FIX 3% lakáshitelre megvehető
Tetszett ez az eladó Kaposvári felújítandó 3 szobás lakás? Hívd fel a hirdetőt most, és tudj meg mindent erről az eladó lakásról! Ha gondolod nézelődj tovább az eladó lakás Kaposvár oldal hirdetései között. Ennek az eladó lakásnak az ára 38900000 Ft és mivel az alapterülete 62 négyzetméter, ezért az átlagos négyzetméterára 627419 HUF/m2.
Az eladó lakások menüpontban további hirdetések között is böngészhetsz. Ha van kedved, akkor böngészhetsz a Hagymás Péter összes hirdetése között, vagy akár a/az Estate & More összes hirdetése között is.

