Eladó átlagos állapotú lakás - Kazincbarcika
- INGYENES HIRDETÉS FELADÁS
Ingatlan adatai
- Eladó vagy kiadó:Eladó
- Település:Kazincbarcika
- Kategória:Lakás
- Alkategória:Csúsztatott zsalus
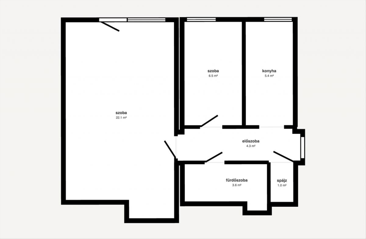
- Alapterület:42 m2
- Csere is:Nem
- Hirdető:Cég
- Élő videón megtekinthető:Nem
- Szobaszám:1 + 1 fél
- Állapot:Átlagos állapotú
- Hány szintes az ingatlan:Földszintes
- Komfortosság:nincs megadva
- Hányadik emeleti:4
- Erkély:nincs megadva
- Lift:Nincs
- Parkolási lehetőség:nincs megadva
- Fűtés:Távfűtés
- Bútorozottság:nincs megadva
- Fényviszony:nincs megadva
- Tájolás:nincs megadva
- Kilátás:nincs megadva
- Internet:nincs megadva
- Klíma:nincs megadva
- Akadálymentesített:nincs megadva
- Energiatanúsítvány:nincs megadva
- Villany:Van
- Víz:Van
- Gáz:nincs megadva
- Csatorna:Van
- Kapcsolatfelvétel

Kégl Zsolt
+36-(70)-201-5061
Mondd meg a hirdetőnek, hogy a megveszLAK-on találtad a hirdetést.
Referencia szám: HK
Hitel ajánlatok
Ingatlan hirdetés leírása
Eladó Lakás, Kazincbarcika
Eladó Kazincbarcika frekventált és közkedvelt részén, a Pollack Mihály úton egy kiváló adottságokkal rendelkező, 42 négyzetméteres, másfél szobás társasházi lakás, amely külön nyíló szobáinak köszönhetően rendkívül praktikus és jól kihasználható életteret biztosít lakói számára. Az ingatlan egyik legnagyobb értéke a felső emeleti elhelyezkedésből adódó lenyűgöző panoráma, amely egyedülálló hangulatot kölcsönöz a mindennapoknak, miközben a lakás műszaki felszereltsége is figyelemre méltó, hiszen modern műanyag nyílászárókkal és egyedi mérővel felszerelt távhővel rendelkezik, így a rezsiköltségek alacsonyak és pontosan tervezhetők. a belső terek tiszták, rendezettek és azonnal költözhető állapotban vannak, ugyanakkor az ingatlan kiváló alapot nyújt egy saját igény szerinti esztétikai felújításhoz is, amivel valódi álomotthonná vagy értékálló befektetéssé formálható. a környék infrastruktúrája párját ritkító, hiszen a közvetlen közelben megtalálható a Pollack Mihály Általános Iskola, a Barcika Fitness Centrum, a Spar szupermarket, valamint különböző szaküzletek és kényelmi szolgáltatások, mint a Foxpost és Packeta automaták, a parkolás pedig közvetlenül a ház előtt teljesen ingyenes és biztonságos. Ez a tehermentes ingatlan a város egyik legdinamikusabban fejlődő pontján helyezkedik el, ahol a közeli játszóterek, zöldfelületek és a kiváló tömegközlekedési kapcsolatok garantálják a kényelmet, ezért bátran ajánlom fiatal pároknak első lakásnak vagy befektetőknek a könnyű kiadhatóság miatt. FIX 3% lakáshitelre megvehető
Tetszett ez az eladó Kazincbarcikai átlagos állapotú 1 egész és 1 fél szobás lakás? Hívd fel a hirdetőt most, és tudj meg mindent erről az eladó lakásról! Ha gondolod nézelődj tovább az eladó lakás Kazincbarcika oldal hirdetései között. Ennek az eladó lakásnak az ára 17700000 Ft és mivel az alapterülete 42 négyzetméter, ezért az átlagos négyzetméterára 421429 HUF/m2.
Az eladó lakások menüpontban további hirdetések között is böngészhetsz. Ha van kedved, akkor böngészhetsz a Kégl Zsolt összes hirdetése között, vagy akár a/az OTPip Miskolc Szemere Bertalan utca 20 - OTP Ingatlanpont Iroda összes hirdetése között is.

