- >>
- eladó ingatlanok
- >>
- eladó lakás
- >>
- eladó lakás Pécs
- >>
Eladó jó állapotú lakás - Pécs
| | |||
| Kedvencnek jelölöm | Elküldöm emailben | Megosztás | Szavazás |
| FIX 3% lakáshitelre megvehető | |||
| 42 500 000 HUF | |||
Ingatlan adatai
- Eladó vagy kiadó:Eladó
- Település:Pécs
- Kategória:Lakás
- Alkategória:Egyéb
- Alapterület:61 m2
- Csere is:Nem
- Hirdető:Cég
- Élő videón megtekinthető:Nem
- Szobaszám:1 + 1 fél
- Állapot:Jó állapotú
- Hány szintes az ingatlan:Földszintes
- Komfortosság:nincs megadva
- Hányadik emeleti:3
- Erkély:Van
- Lift:Nincs
- Parkolási lehetőség:nincs megadva
- Fűtés:Gáz (konvektor)
- Bútorozottság:nincs megadva
- Fényviszony:Jó
- Tájolás:nincs megadva
- Kilátás:nincs megadva
- Internet:nincs megadva
- Akadálymentesített:nincs megadva
- Energiatanúsítvány:nincs megadva
- Villany:Van
- Víz:Van
- Gáz:nincs megadva
- Csatorna:Van
- Közös költség:10 000 Ft
- Üzenetküldés
- Hívás

Referencia szám: M299292

Hitel ajánlat
Ingatlan hirdetés leírása
Eladó Lakás, Pécs, Eladó jó állapotú lakás - Pécs
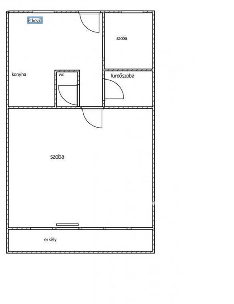
Eladó szigetelt tégla lakás Pécs-Ledinán!Pécs kedvelt városrészén, Ledinán 61 nm-es, átalakított, 3. emeleti, nagy erkélyes tégla lakás várja új tulajdonosát.
Az átalakítás során az előszoba, konyha és étkező egybenyitásra került.
A lakás elrendezése:
-Egy kisebb hálószóba
-Egy nagy 30 nm-es nappali.
-6 Nm-es keleti tájolású erkély.
-Nappali klímás, tölgyfa parkettás, nagy műanyag ablakokkal rendelkezik, erkélyajtó tolóajtós kialakítású.
-Felújított fürdőszoba sarokkáddal.
-Különálló WC.
-Acélbetétes biztonsági bejárati ajtó.
-Nyugati-keleti tájolása.
-Gázkonvektor fűtéses, gázbojler biztosítja a meleg vizet.
Otthon Start Hitelprogram
Amennyiben felkeltette érdeklődését az ingatlan, keressen bizalommal. m299292
42500000 Ft
Referencia szám: m299292 FIX 3% lakáshitelre megvehető

