Eladó átlagos állapotú lakás Pécs
| Kedvencbe | Megosztás | Árfigyelő |
| FIX 3% lakáshitelre megvehető | ||
| 63 900 000 HUF | ||
Ingatlan adatai
- Eladó vagy kiadó:Eladó
- Település:Pécs
- Kategória:Lakás
- Alkategória:Egyéb
- Alapterület:85 m2
- Csere is:Nem
- Hirdető:Cég
- Élő videón megtekinthető:Nem
- Szobaszám:3 + 1 fél
- Állapot:Átlagos állapotú
- Hány szintes az ingatlan:nincs megadva
- Komfortosság:nincs megadva
- Hányadik emeleti:nincs megadva
- Parkolási lehetőség:nincs megadva
- Fűtés:Gáz (konvektor)
- Bútorozottság:Bútorozott
- Fényviszony:nincs megadva
- Tájolás:nincs megadva
- Kilátás:nincs megadva
- Internet:nincs megadva
- Akadálymentesített:nincs megadva
- Energiatanúsítvány:nincs megadva
- Villany:nincs megadva
- Víz:nincs megadva
- Gáz:nincs megadva
- Csatorna:nincs megadva
- Üzenetküldés
- Hívás


Hitel ajánlat
Ingatlan hirdetés leírása
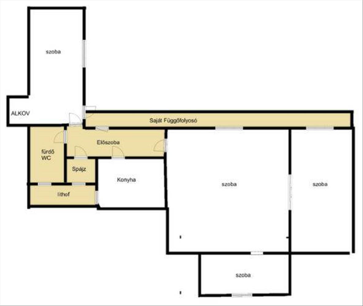
Pécs történelmi belvárosában 3,5 szobás, 1. emeleti, belső zár...
Pécs történelmi belvárosában 3, 5 szobás, 1. emeleti, belső zárt udvarra néző, tégla építésű polgári lakás eladó.Helyiséglista:
A lakás 3 szobából, előszobából, alkóvból, 1 félszobából, konyhából, kamrából és fürdőszobából áll.
Az eladó ingatlan, zárt függőfolyosón keresztül közelíthető meg. a lakás minden ablaka, műanyag nyílászáróra cserélve. Nincs szükség klímára, jellegénél fogva (főfalak vastagsága) nyáron és télen is jól tartja a hőt. .
A lakáshoz saját, 7 m2 pincetároló is tartozik, utcai faledobói lehetőséggel. Az ingatlan fűtésére többféle lehetőségi is van. Gázkonvektor, infrapanel és fatüzelésű cserépkályha.
Belmagassága 380 cm, akár galériázható is igény szerint, állapotát tekintve felújítandó, de több lehetőség van benne, mint az elsőre gondolná.
A melegvizet bojler szolgáltatja, fűtése gáz konvektor, cserépkályha és a fürdőszobában infrapanel.
Parkolás közterületen fizetős, vagy a Búzatéri mélygarázsban lehet.
Ez a lakás kiváló lehetőség lehet bárki számára, aki a történelmi belvárosban keresi otthonát. Tökéletes választás családoknak, pároknak, ügyvédi irodáknak és befektetőknek is.
Az ingatlan tehermentes. Folyamatos kiürítés alatt van, megegyezés szerint birtokba vehető.
További információkért keressen bizalommal, nézzük meg együtt. Hívjon! FIX 3% lakáshitelre megvehető

