Eladó telek - Acsa
- INGYENES HIRDETÉS FELADÁS
Ingatlan adatai
- Feladva:6 hónapnál régebbi hirdetés
- Eladó vagy kiadó:Eladó
- Település:Acsa
- Kategória:Telek
- Alkategória:Lakóövezeti
- Alapterület:nincs megadva
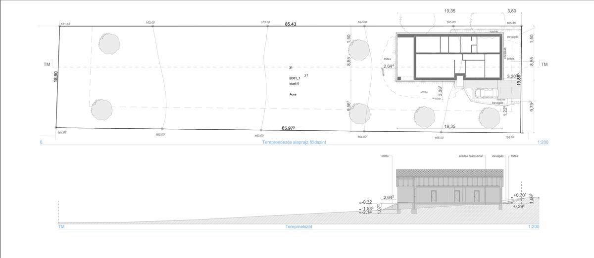
- Telekterület:1600 m2
- Csere is:Nem
- Hirdető:Magánszemély
- Élő videón megtekinthető:Nem
- Villany:Utcában
- Víz:Telken belül
- Gáz:Utcában
- Csatorna:Telken belül
- Kapcsolatfelvétel

Németh István
+36-(70)-326-4193
Mondd meg a hirdetőnek, hogy a megveszLAK-on találtad a hirdetést.
Hitel ajánlatok
Ingatlan hirdetés leírása
Acsa építésitelen, Eladó telek - Acsa
Eladásra kínálunk Acsán panorámás közművesített (víz, villany, csatorna) falusi CSOK és CSOK plusz és az új otthon start 3% hitelképes építési telket. Váctól 20 percre, Budapesttől 50 perc. A telek a falu központban található, jól megközelíthetősége van, aszfaltozott utca, az utca elején ahol már a főút található: iskola, óvoda, kis bolt, étterem, dohánybolt, házi orvos gyermek és felnőtt, vízmű, posta, busz és vonat is mindösszesen 5 percre. A telekhez tartozik egy teljes terv dokumentáció is, amit már csak megkell építeni, mivel már minden engedély megadva! Méretek: - Szélessége : utca fronti 19, 88 m, hátulja 18, 90 m - Hossza: jobb 85, 43 m, bal 85, 97m - 1600nm Beépíthetőség: - 30% - Oldalhatáros A megtervezett ingatlanról: - Nettó 109nm - 4 szoba - 2 fürdőszoba - Amerikai konyha nappali - 20 nm terasz - 2 wc - Hőszivattyús padló fűtés CSOK-ban és az Otthon start hitelben tudok segíteni! Amennyiben hirdetésünk felkeltette figyelmét keressen bizalommal! Hitel.hu - Hasonlítsa össze a bankok lakáshitel ajánlatait
Tetszett ez az eladó Acsai telek? Hívd fel a hirdetőt most, és tudj meg mindent erről az eladó telekről! Ha gondolod nézelődj tovább az eladó telek Acsa oldal hirdetései között.
Az eladó telkek menüpontban további hirdetések között is böngészhetsz. Ha van kedved, akkor böngészhetsz a Németh István összes hirdetése között.

