Eladó telek - Balatonfőkajár
- INGYENES HIRDETÉS FELADÁS
Ingatlan adatai
- Eladó vagy kiadó:Eladó
- Település:Balatonfőkajár
- Kategória:Telek
- Alkategória:Lakóövezeti
- Alapterület:nincs megadva
- Telekterület:801 m2
- Csere is:Nem
- Hirdető:Cég
- Élő videón megtekinthető:Nem
- Villany:Telken belül
- Víz:Van
- Gáz:Utcában
- Csatorna:Van
- Kapcsolatfelvétel

Szabó Zoltánné
+36-(70)-432-0290
Mondd meg a hirdetőnek, hogy a megveszLAK-on találtad a hirdetést.
Referencia szám: M311807
Hitel ajánlatok
Ingatlan hirdetés leírása
Eladó Telek, Balatonfőkajár
Balatonfőkajáron eladó TELEK!
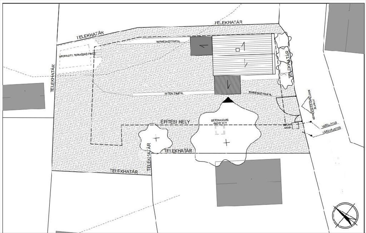
Veszprém vármegyében Balatonfőkajáron a központtól pár percre eladó egy belterületi telek, rajta egy bontandó/felújítandó házzal, és érvényes építési tervekkel, engedélyekkel.
Teljes közmű, a gáz kivételével rendelkezésre áll. a kertben ásott kút van.
A telek végében volt egy beomlott mészkőpince, az betemetésre került.
A telek 801 nm . Előírások:
- övezet: Lke - 3? Kertvárosias lakóterület
- beépítés módja: oldalhatáron álló
- megengedett legnagyobb beépíthetőség: 25% - megengedett építménymagasság: max 4, 50 m
- zöldfelület minimális aránya: 50%
Közlekedés: a helyi buszjárat a központban áll meg a Postánál, innen pár percre található az ingatlan. Budapestről autóval 1, 15 óra, vonattal kb. 2 Óra. a Balaton 6 perc autóval (Akarattya).
Hívjon bátran! Hitel.hu - Hasonlítsa össze a bankok lakáshitel ajánlatait
Tetszett ez az eladó Balatonfőkajári telek? Hívd fel a hirdetőt most, és tudj meg mindent erről az eladó telekről! Ha gondolod nézelődj tovább az eladó telek Balatonfőkajár oldal hirdetései között.
Az eladó telkek menüpontban további hirdetések között is böngészhetsz. Ha van kedved, akkor böngészhetsz a Szabó Zoltánné összes hirdetése között, vagy akár a/az OTPip Budapest II. kerület Szépvölgyi út 2 - OTP Ingatlanpont Iroda összes hirdetése között is.

