Eladó telek - Balatonfüred
- INGYENES HIRDETÉS FELADÁS
Ingatlan adatai
- Eladó vagy kiadó:Eladó
- Település:Balatonfüred
- Kategória:Telek
- Alkategória:Lakóövezeti
- Alapterület:nincs megadva
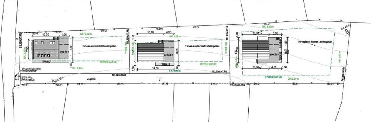
- Telekterület:750 m2
- Csere is:Nem
- Hirdető:Cég
- Élő videón megtekinthető:Nem
- Villany:Utcában
- Víz:Utcában
- Gáz:Utcában
- Csatorna:Utcában
- Kapcsolatfelvétel

Zsitnyányi Ágnes
+36-70-316-3864
Mondd meg a hirdetőnek, hogy a megveszLAK-on találtad a hirdetést.
Hitel ajánlatok
Ingatlan hirdetés leírása
Balatonfüreden 750 m2-es, panorámás építési telek eladó. Az in...
Balatonfüreden 750 m2-es, panorámás építési telek eladó. Az ingatlan a város Szőlőfő részén, kertvárosias lakóövezetében helyezkedik el, 2, 5-3 km-re a Balaton-parttól, vitorláskikötőtől, strandtól. a telek 20%-a beépíthető, a legnagyobb épületmagasság 4, 5 m. Kész tervek rendelkezésre állnak. a mellette lévő két telek is eladó, külön-külön és egyben is. a fénykép illusztráció. Az ár nettó ár, az eladási ár ÁFA-val 101. 600. 000 Ft. Kiváló és ritka lehetőség állandó lakóhelynek, nyaralónak és befektetésnek is! Bővebb információért keressen telefonon! Hitel.hu - Hasonlítsa össze a bankok lakáshitel ajánlatait
Tetszett ez az eladó Balatonfüredi telek? Hívd fel a hirdetőt most, és tudj meg mindent erről az eladó telekről! Ha gondolod nézelődj tovább az eladó telek Balatonfüred oldal hirdetései között.
Az eladó telkek menüpontban további hirdetések között is böngészhetsz. Ha van kedved, akkor böngészhetsz a Zsitnyányi Ágnes összes hirdetése között, vagy akár a/az Siófok Fő utca 83 - OTP Ingatlanpont Iroda összes hirdetése között is.

