Eladó telek - Budakeszi
- INGYENES HIRDETÉS FELADÁS
Ingatlan adatai
- Eladó vagy kiadó:Eladó
- Település:Budakeszi
- Kategória:Telek
- Alkategória:Lakóövezeti
- Alapterület:nincs megadva
- Telekterület:1418 m2
- Csere is:Nem
- Hirdető:Cég
- Élő videón megtekinthető:Nem
- Villany:Utcában
- Víz:nincs megadva
- Gáz:Utcában
- Csatorna:nincs megadva
- Kapcsolatfelvétel

Arany Bálint
+36-(70)-388-6116
Mondd meg a hirdetőnek, hogy a megveszLAK-on találtad a hirdetést.
Hitel ajánlatok
Ingatlan hirdetés leírása
Fedezze fel ezt a kivételes lehetőséget Budakeszi csendes, idi...
Fedezze fel ezt a kivételes lehetőséget Budakeszi csendes, idilli környezetében, ahol a természet közelsége és a városi élet kényelme találkozik.
Az ingatlan, amelyet most bemutatunk, egy 1418 négyzetméteres telek, mely a lakóövezet szívében helyezkedik el.
Különösen ajánlom:
Fejlesztőknek, mivel a környék folyamatosan fejlődik, és a kereslet növekvő tendenciát mutat.
Mivel a telek rendelkezik érvényes építési engedéllyel az építkezés azonnal kezdhető, ahogy az ingatlanok értékesítése is!
Közművek:
Ideiglenes áram, víz és csatorna a telken, gáz közvetlenül a telek előtt található.
A telken bontandó épület található.
A tulajdonos cég.
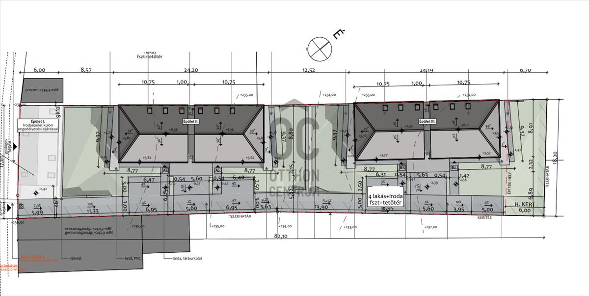
A telek 1413 m2 és a projekt keretében 3 épületben: 1 iroda épület + kettő ikerház megépítése tervezett, benne 4 lakással.
Az ikerházak úgy kerültek megtervezésre, hogy az életterek a lehető legjobban el legyenek egymástól szeparálva, szinte csak a garázsfalak találkoznak egymással és dupla falazat megépítése tervezett.
Építési paraméterek:
Főépület lakásszám =T/350
zártsorú beépítési mód
beépíthetőség 40%
zöldfelület 30%
építménymagasság 6 m
I. Épület
iroda
84, 24 m2+garázs
II. Épület
1. Lakás
Lakás: 143 m2
Garázs: 17, 25 m2
Terasz: 15, 47 m2
Telek: 286 m2
2. Lakás:
Lakás: 143 m2
Garázs: 17, 25 m2
Terasz: 15, 47 m2
Telek: 253 m2
III. Épület
3. Lakás:
Lakás: 143 m2
Garázs: 17, 25 m2
Terasz: 15, 47 m2
Telek: 255, 5 m2
4. Lakás:
Lakás: 143 m2
Garázs: 17, 25 m2
Terasz: 15, 47 m2
Telek: 307, 9 m2
A lakások 1 db gépjárműbeállóval+1 felszíni beállóval és kizárólagos használatú, saját kerttel rendelkeznek.
Az épület optimális, DNY-i tájolása, kompakt tömegformálása és kiváló hőszigetelése biztosítják az alacsony energiafelhasználást.
Az ingatlan csendes, mégis központi részen helyezkedik el. Buszmegálló, boltok, óvoda, bölcsőde, iskola, játszótér gyalogosan rövid idő alatt elérhető.
Az ingatlanpiac folyamatosan változik, így érdemes mihamarabb lépni, hogy ne maradjon le erről a remek lehetőségről! Hitel.hu - Hasonlítsa össze a bankok lakáshitel ajánlatait
Tetszett ez az eladó Budakeszi telek? Hívd fel a hirdetőt most, és tudj meg mindent erről az eladó telekről! Ha gondolod nézelődj tovább az eladó telek Budakeszi oldal hirdetései között.
Az eladó telkek menüpontban további hirdetések között is böngészhetsz. Ha van kedved, akkor böngészhetsz a Arany Bálint összes hirdetése között, vagy akár a/az Otthon Centrum III. kerület - WFC összes hirdetése között is.

