Eladó telek - Budapest II. kerület
- INGYENES HIRDETÉS FELADÁS
Ingatlan adatai
- Eladó vagy kiadó:Eladó
- Település:Budapest II. kerület
- Kategória:Telek
- Alkategória:Lakóövezeti
- Alapterület:nincs megadva
- Telekterület:1115 m2
- Csere is:Nem
- Hirdető:Cég
- Élő videón megtekinthető:Nem
- Villany:Van
- Víz:Van
- Gáz:Van
- Csatorna:Van
- Kapcsolatfelvétel

Köpösdi Zoltán
+36-(70)-388-6276
Mondd meg a hirdetőnek, hogy a megveszLAK-on találtad a hirdetést.
Hitel ajánlatok
Ingatlan hirdetés leírása
Eladásra kínálok Budapest II/A részén 1115 m² Saroktelket az E...
Eladásra kínálok Budapest ii/a részén 1115 m² Saroktelket az Erdő szomszédságában
„Ez nem egy telek. Ez egy döntés egy nyugodtabb, értékállóbb élet mellett. ”
AMI miatt ez a telek ritka LEHETŐSÉG
•1115 m²-es, panorámás saroktelek a ii/a kerület egyik legkeresettebb részén
•Erdő közvetlen szomszédságában – garantált intimitás, madárcsicsergés, tiszta levegő
•Csendes, családi házas övezet, átmenő forgalom nélkül
•Két utcáról megközelíthető (Rézsű utca – Határ út) → tervezési szabadság
•Összközműves: víz, villany, gáz, csatorna a telken
•Aszfaltozott út, rendezett környezet
Az ilyen adottságú telkek száma nem csökken – elfogynak.
BEÉPÍTÉSI lehetőségek – ami előre meg van TERVEZVE
•Övezeti besorolás: Lke-3/SZ-3
•Akár 3–4 lakásos társasház építhető
•15% beépíthetőség, 0, 4 szintterületi mutató
•75% zöldfelület – valódi kert, nem kompromisszum
•6 m maximális építménymagasság
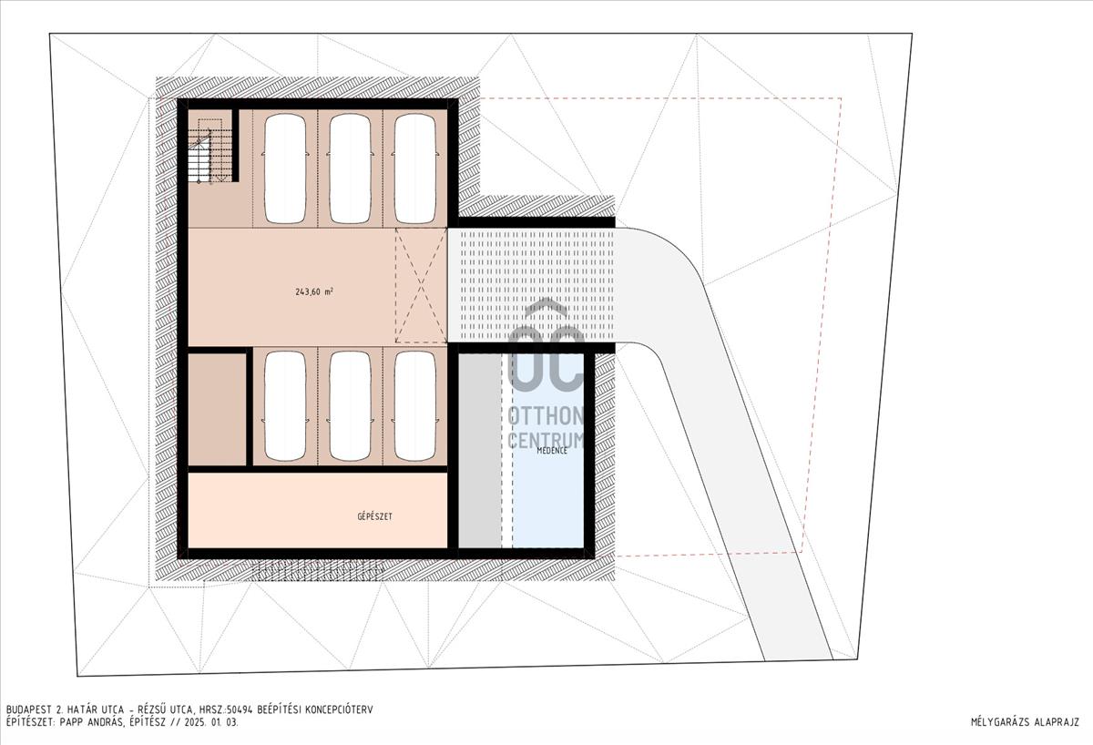
•Mélygarázs engedélyezett
Elkészült, profi építész által készített koncepcióterv áll rendelkezésre:
•Mélygarázs (medencével, gépészettel)
•Földszint + emelet + tetőtér
•Modern, teraszos, panorámára nyitott lakások
•3D tömegmodellek – már most látható, mi születhet itt
Nem a nulláról indul. Itt már valaki helyetted gondolkodott.
A környék – ami miatt itt jó ÉLNI
II/A kerület = zöldövezet + presztízs + értékállóság
•Erdős, dombos környezet, kirándulóutak a közelben
•Tiszta levegő, alacsony beépítési sűrűség
•Nyugodt, biztonságos, elit lakókörnyezet
Oktatás és intézmények:
•Több óvoda és általános iskola a közelben
•Jó hírű nemzetközi és magániskolák könnyen elérhetők
•Gyerekbarát környezet, valódi közösség
Szolgáltatások:
•Bevásárlási lehetőségek, gyógyszertár
•Éttermek, kávézók
•Sportolási és szabadidős lehetőségek
•Jó közlekedés, mégis nyugalom
KÉPZELJE el a JÖVŐT…
Reggel a teraszon kávézik.
A nappali üvegfelületein át zöld panoráma tárul fel.
A gyerekek biztonságos utcában nőnek fel.
Este csend van. Nem kompromisszumos csend – minőségi csend.
Ez az a hely, ahol nem csak lakni lehet. Itt élni lehet.
KIKNEK AJÁNLJUK?
✔ Családoknak, akik:
•természetközeli, mégis városi életet keresnek
•hosszú távra terveznek
•értékelik a nyugalmat és a minőséget
✔ Befektetőknek / fejlesztőknek, akik:
•értékálló lokációt keresnek
•kis lakásszámú, prémium projektben gondolkodnak
•már egy kész koncepcióval szeretnének indulni
MIÉRT MOST?
•II/A kerületben nagyon ritka az ilyen adottságú saroktelek
•Erdőszomszédos, panorámás telkek értéke strukturálisan emelkedik
•A lehetőség nem kopogtat kétszer
Ez nem egy hirdetés – ez egy meghívás egy jobb döntésre.
Ha szeretné látni, nem csak elképzelni, akkor ez a telek Önre vár.
Egyedi igényekre szabott lakáshitelekkel állunk rendelkezésére.
Bankfüggetlen Hitelcentrumunk az országban elérhető összes bank és hitelintézet ajánlatát versenyezteti az Ön számára díjmentesen.
Munkatársaink nagy szakmai tapasztalattal, teljes körű CSOK plusz és otthon start program ügyintézéssel várják Önt előre egyeztetett időpontban akár a normál munkaidő után is. Hitel.hu - Hasonlítsa össze a bankok lakáshitel ajánlatait
Tetszett ez az eladó Budapest II. kerületi telek? Hívd fel a hirdetőt most, és tudj meg mindent erről az eladó telekről! Ha gondolod nézelődj tovább az eladó telek Budapest II. kerület oldal hirdetései között.
Az eladó telkek menüpontban további hirdetések között is böngészhetsz. Ha van kedved, akkor böngészhetsz a Köpösdi Zoltán összes hirdetése között, vagy akár a/az Otthon Centrum VII. kerület - Kertész utca összes hirdetése között is.

