Eladó telek - Budapest III. kerület
- INGYENES HIRDETÉS FELADÁS
Ingatlan adatai
- Eladó vagy kiadó:Eladó
- Település:Budapest III. kerület
- Kategória:Telek
- Alkategória:Lakóövezeti
- Alapterület:nincs megadva
- Telekterület:1751 m2
- Csere is:Nem
- Hirdető:Cég
- Élő videón megtekinthető:Nem
- Villany:Telken belül
- Víz:Utcában
- Gáz:Utcában
- Csatorna:nincs megadva
- Kapcsolatfelvétel

Takács Zsuzsanna
+36-(30)-495-3819
Mondd meg a hirdetőnek, hogy a megveszLAK-on találtad a hirdetést.
Referencia szám: M324781
Hitel ajánlatok
Ingatlan hirdetés leírása
Eladó Telek, Budapest 3. ker.
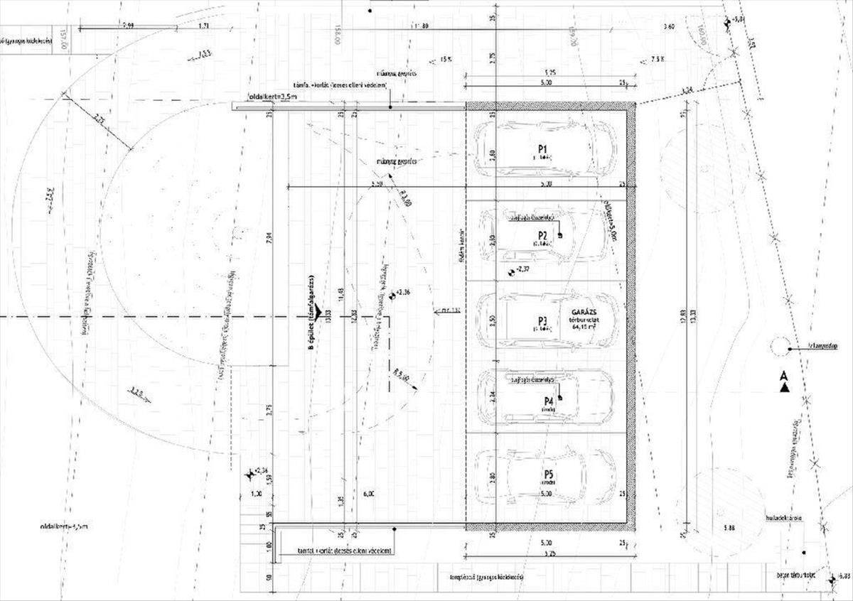
Budapest III. kerületében eladó egy 1751 négyzetméter alapterületű fejlesztési telek, amelyhez teljes tervdokumentáció és engedélyezési terv tartozik. a projekt egy modern lakóépület és egy támfalgarázs megépítésére készült, így az új tulajdonos egy már előkészített beruházási lehetőséget vásárol meg.
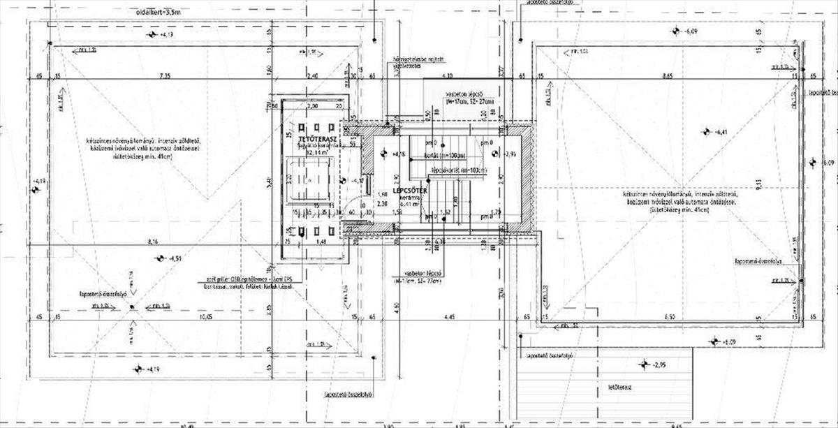
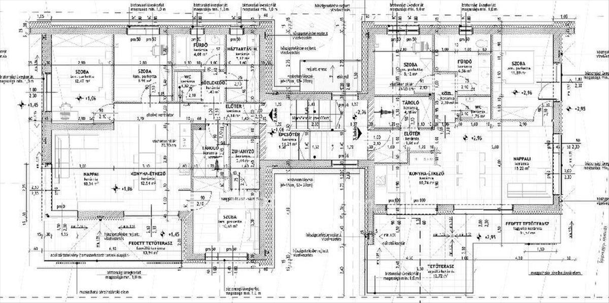
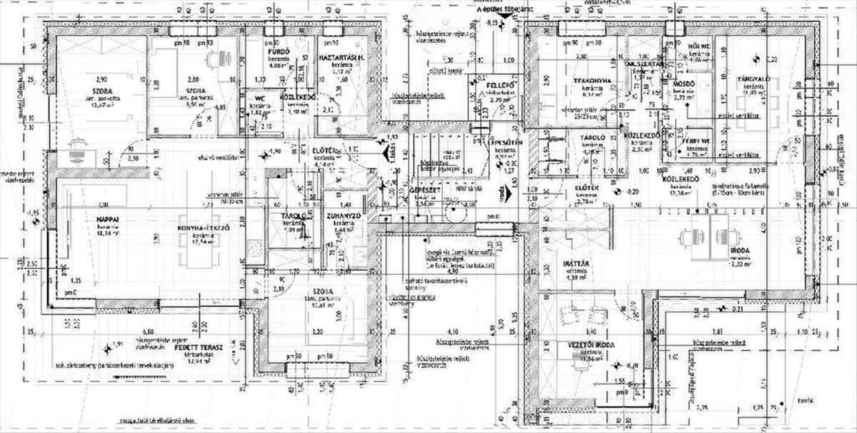
A tervek alapján a telken egy korszerű, több szintes épület valósítható meg, amelyben három lakás és egy iroda kerül kialakításra. a lakások kiszolgálását egy terepszint alatti támfalgarázs biztosítja, amely a szükséges parkolóhelyeket nyújtja az épület számára.
A telek övezeti besorolása Lke-2 / sz-n3, szabadon álló beépítési móddal. a tervezett épület terepszint feletti beépítettsége 14, 98 százalék, amely megfelel a megengedett legfeljebb 15 százalékos beépíthetőségnek. a szintterületi mutató 0, 31, amely szintén a szabályozási határértékeken belül van.
A tervezett a épület teljes bruttó szintterülete 510, 29 négyzetméter, míg a parkolást biztosító B épület 69, 98 négyzetméter alapterületű támfalgarázs. Az épületmagasság 6, 31 méter, amely megfelel a helyi építési szabályzatban előírt követelményeknek.
A projekt modern építészeti megoldásokkal készült, nagy üvegfelületekkel, zöldtetős kialakítással és igényes homlokzati anyaghasználattal. a telek jelentős zöldfelülettel rendelkezik, így a megvalósuló épület kellemes, zöld környezetben helyezkedhet el.
Az ingatlan befektetők, kivitelezők vagy akár hosszabb távú fejlesztésben gondolkodók számára is kiváló lehetőség, hiszen a projekt a szükséges tervekkel együtt kerül értékesítésre.
A vásárlást teljes körű, díjmentes tanácsadás és helyben történő, gyors és egyszerű hitelügyintézés segíti. Ne maradjon le erről a kedvező lehetőségről, érdeklődjön bizalommal.
M324781
Az OTP Ingatlanpont, mint egyetlen közvetlen banki hátterű ingatlanközvetítő társaság teljes körű ügyintézéssel áll az eladók és a vevők rendelkezésére! a kínálatunkból választott ingatlan finanszírozásához minősített fogyasztóbarát, piaci és kedvezményes hitel- és lízingkonstrukciókat kínálunk (lakásvásárlási hitel, CSOK plusz, szabad felhasználású hitel, babaváró hitel, céges hitelek, pályázatok, amennyiben az ügyfél és az ingatlan megfelel a feltételeknek). Az adásvételi szerződés megkötéséhez igény szerint megbízható ügyvédi közreműködést biztosítunk, és segítséget nyújtunk az adásvételhez kapcsolódó egyéb ügyek intézéséhez.
Ha az új ingatlana megvásárlásához a jelenlegi ingatlanát el kell adnia, abban is szívesen segítünk.
Referencia szám: m324781-ml Hitel.hu - Hasonlítsa össze a bankok lakáshitel ajánlatait
Tetszett ez az eladó Budapest III. kerületi telek? Hívd fel a hirdetőt most, és tudj meg mindent erről az eladó telekről! Ha gondolod nézelődj tovább az eladó telek Budapest III. kerület oldal hirdetései között.
Az eladó telkek menüpontban további hirdetések között is böngészhetsz. Ha van kedved, akkor böngészhetsz a Takács Zsuzsanna összes hirdetése között, vagy akár a/az OTPip Budapest XIII. kerület Lehel utca 50 - OTP Ingatlanpont Iroda összes hirdetése között is.

