Eladó telek Budapest V. kerület
| Kedvencbe | Megosztás | Árfigyelő |
| Kedvezményes lakáshitel ajánlatok | ||
| 2 315 939 929 HUF | ||
Ingatlan adatai
- Eladó vagy kiadó:Eladó
- Település:Budapest V. kerület
- Kategória:Telek
- Alkategória:Lakóövezeti
- Alapterület:nincs megadva
- Telekterület:808 m2
- Csere is:Nem
- Hirdető:Cég
- Élő videón megtekinthető:Nem
- Villany:nincs megadva
- Víz:nincs megadva
- Gáz:nincs megadva
- Csatorna:nincs megadva
- Üzenetküldés
- Hívás


Hitel ajánlat
Ingatlan hirdetés leírása
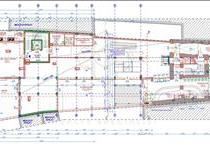
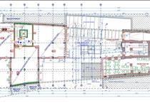
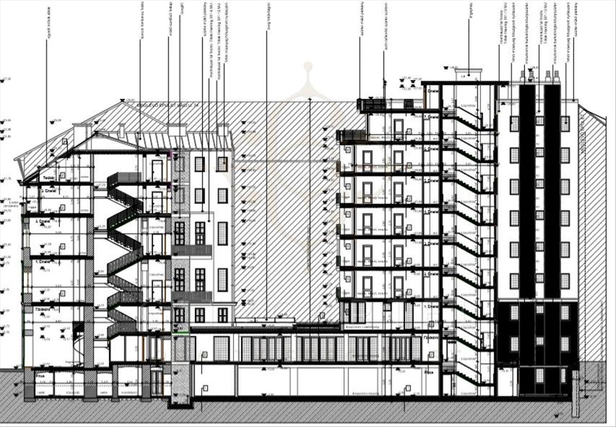
Belvárosban építési terület
5. kerület frekventált utcájában 808 nm építési terület eladó.Beépíthetőség: 80%
A tervek szerint két szárny alakítható ki az utcafronton pince, fsz, 3 emelet. Az udvari szárnyon pedig pince, fsz, és 7 emelet kb 2500 nm.
Utcai homlokzat magassága 18 m, Udvari 25 m. (E)
Ár: 5, 8 millió euró
Papp Gabriella 30/815-2511 papp. Gabi@citycartel. Hu Hitel.hu - Hasonlítsa össze a bankok lakáshitel ajánlatait

