Eladó telek - Budapest XIII. kerület
- INGYENES HIRDETÉS FELADÁS
Ingatlan adatai
- Eladó vagy kiadó:Eladó
- Település:Budapest XIII. kerület
- Kategória:Telek
- Alkategória:Lakóövezeti
- Alapterület:nincs megadva
- Telekterület:691 m2
- Csere is:Nem
- Hirdető:Cég
- Élő videón megtekinthető:Nem
- Villany:Van
- Víz:Van
- Gáz:Van
- Csatorna:Van
- Kapcsolatfelvétel

Dr. Nagy Gabriella
+36-(30)-915-5514
Mondd meg a hirdetőnek, hogy a megveszLAK-on találtad a hirdetést.
Referencia szám: TK058116
Hitel ajánlatok
Ingatlan hirdetés leírása
Eladó telek, Budapest 13. ker.
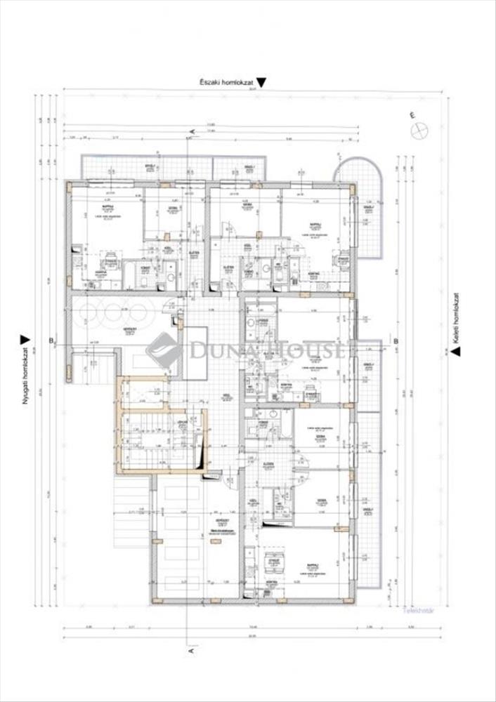
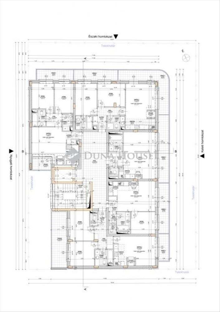
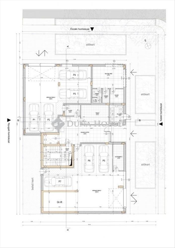
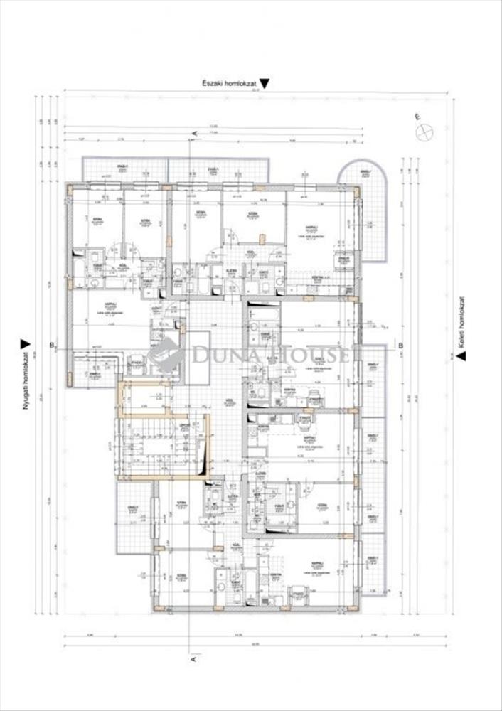
Eladó budapesten a XIII. kerület kiemelt részén egy 691 m2 építési telek, érvényes építési TERVEKKEL! ! ! !
Fejlesztési paraméterek:
- pince + földszint + négy emelet.
- Pincében és a földszinten a tervek alapján lift, tárolók, üzlethelység és 20 darab autóparkoló van kialakítva
- további négy emeleten, összesen 19 darab lakás van tervezve ( összesen: nettó 987 m2)
A telken minden közmű a rendelkezésre áll.
Amennyiben további kérdése van, kérem keressen bizalommal.
Vételár 585000000 Ft
☎️+36-30-915-5514
Egyeztessünk időpontot!
Referencia szám: tk058116 Hitel.hu - Hasonlítsa össze a bankok lakáshitel ajánlatait
Tetszett ez az eladó Budapest XIII. kerületi telek? Hívd fel a hirdetőt most, és tudj meg mindent erről az eladó telekről! Ha gondolod nézelődj tovább az eladó telek Budapest XIII. kerület oldal hirdetései között.
Az eladó telkek menüpontban további hirdetések között is böngészhetsz. Ha van kedved, akkor böngészhetsz a Dr. Nagy Gabriella összes hirdetése között, vagy akár a/az Duna House Novara Living összes hirdetése között is.

