Eladó telek - Budapest XIV. kerület
- INGYENES HIRDETÉS FELADÁS
Ingatlan adatai
- Eladó vagy kiadó:Eladó
- Település:Budapest XIV. kerület
- Kategória:Telek
- Alkategória:Lakóövezeti
- Alapterület:nincs megadva
- Telekterület:1077 m2
- Csere is:Nem
- Hirdető:Cég
- Élő videón megtekinthető:Nem
- Villany:Telken belül
- Víz:Telken belül
- Gáz:Telken belül
- Csatorna:Telken belül
- Kapcsolatfelvétel

Csóka Annamária
+36-(30)-445-1132
Mondd meg a hirdetőnek, hogy a megveszLAK-on találtad a hirdetést.
Hitel ajánlatok
Ingatlan hirdetés leírása
Zuglóban, frekventált helyen eladó fejlesztési telek engedélye...
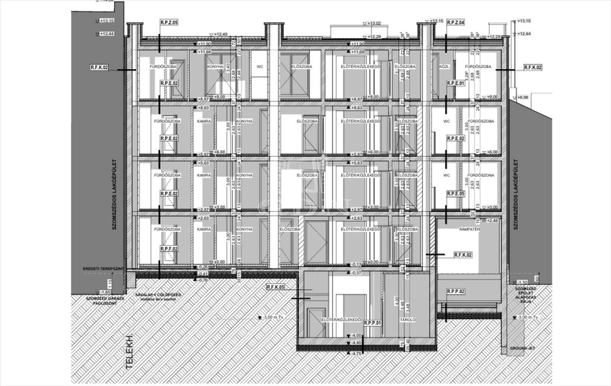
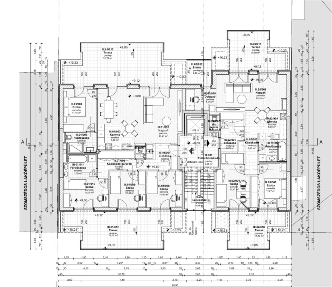
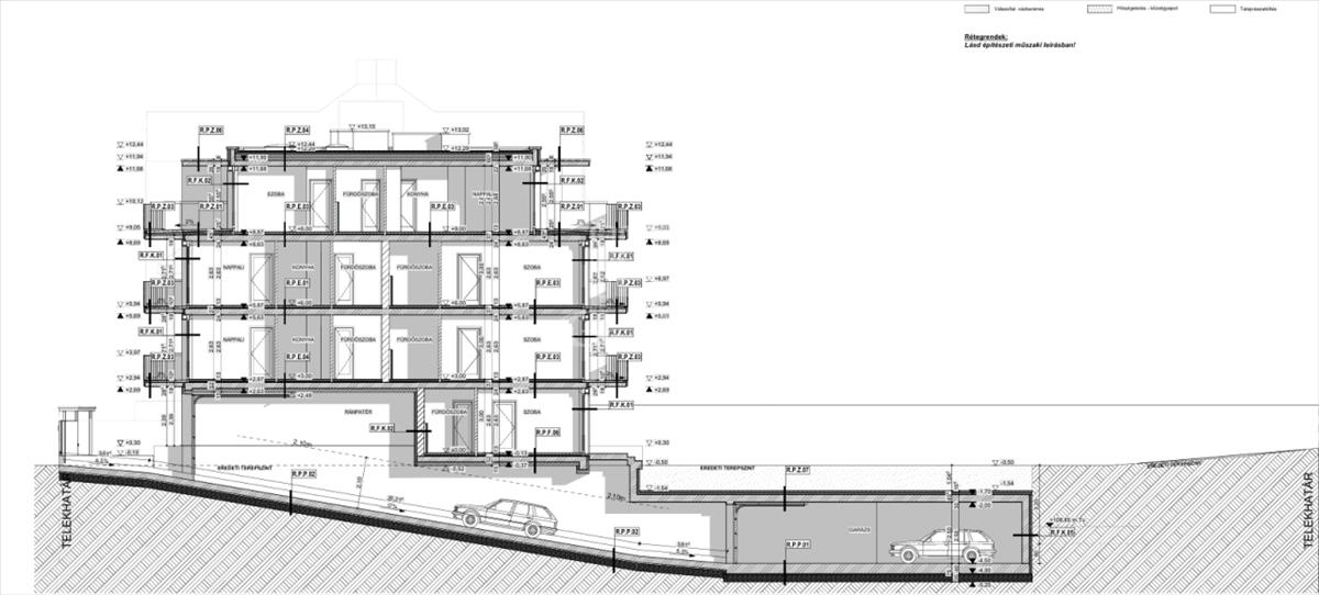
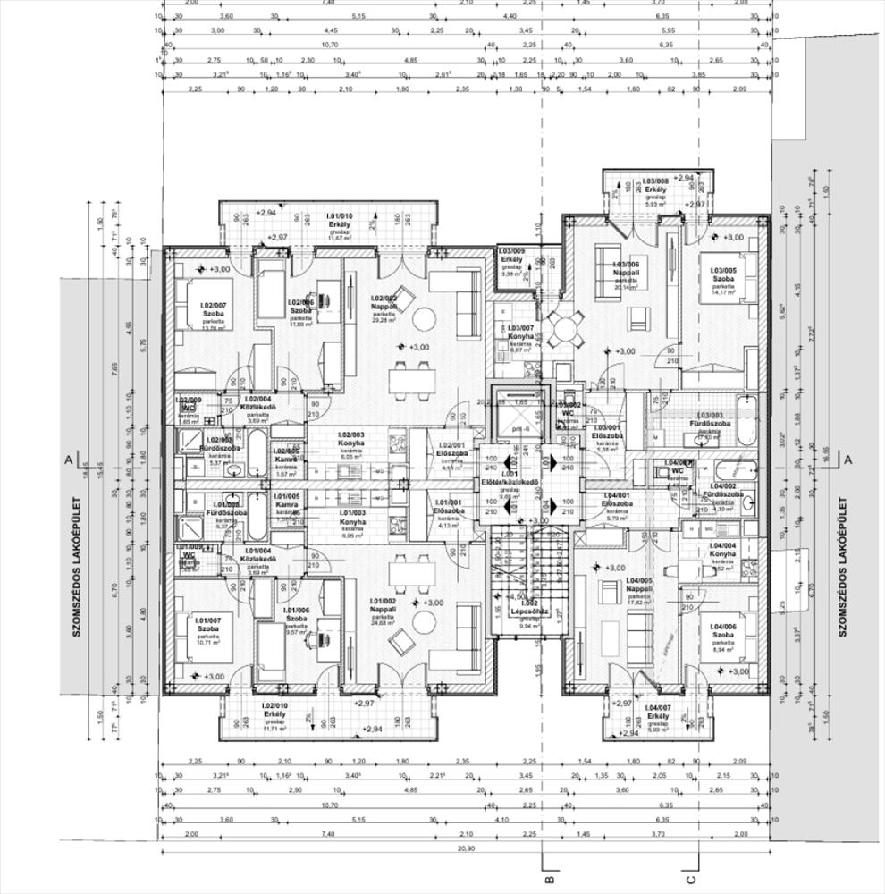
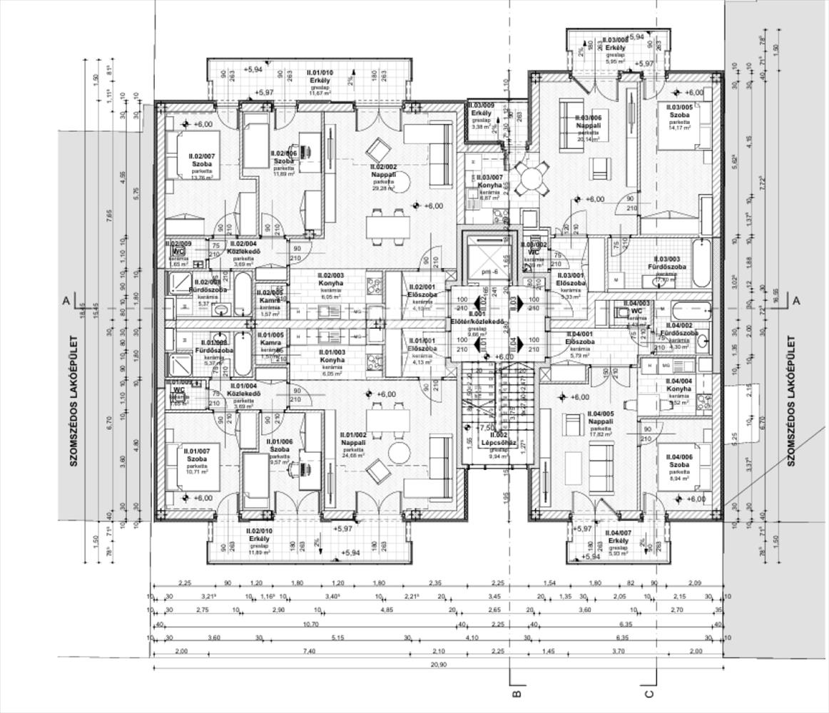
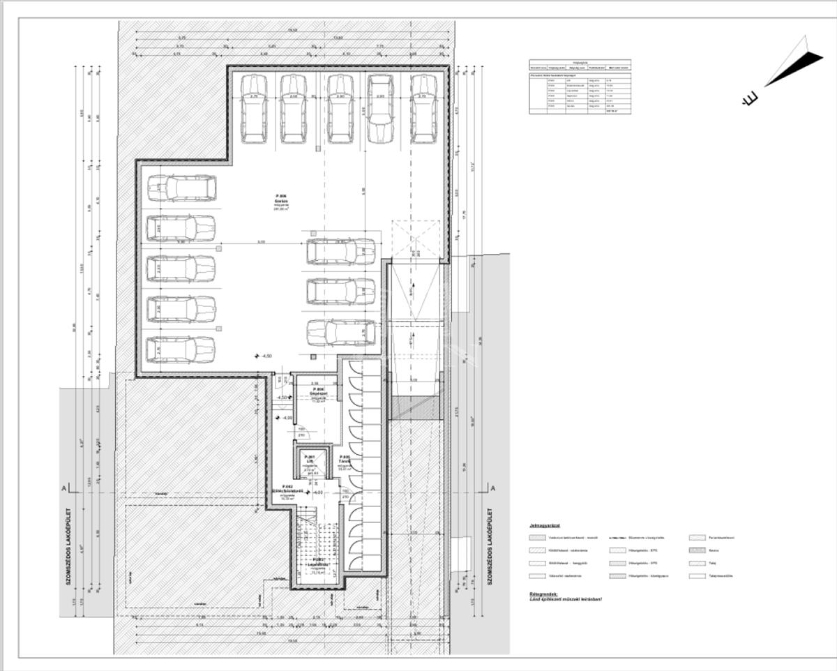
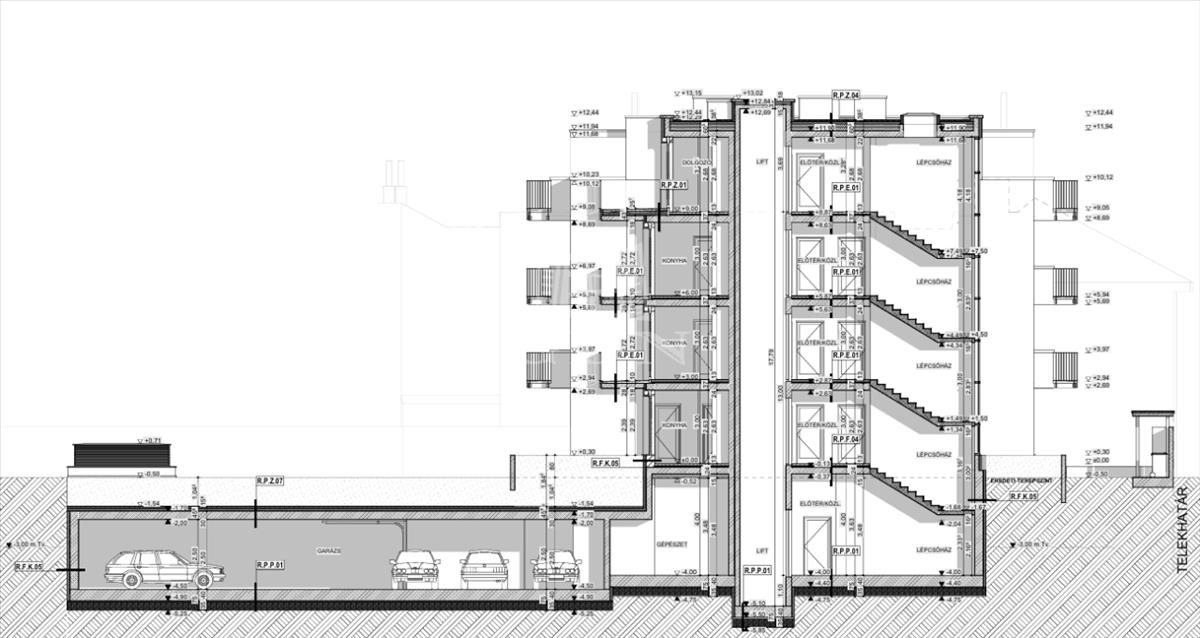
Zuglóban, frekventált helyen eladó fejlesztési telek engedélyezett, 13 lakásos társasház projekttel!
Eladó egy 1077 m²-es építési telek Zugló egyik legkeresettebb részén, érvényes építési engedéllyel rendelkező, prémium társasházprojekttel!
A tervezett beruházás jellemzői:
-13 lakás 4 szinten, jól átgondolt alaprajzokkal
-Pinceszinten 13 gépkocsibeálló
-Lift
-Külön tárolók a lakók részére
-Közös helyiségek (pl. Babakocsi-/kerékpártároló)
-Erkélyek, teraszok, valamint tetőteraszos lakások
-Zöldtető, környezetbarát és esztétikus kialakítással
-Korszerű műszaki tartalommal és energiatakarékos megoldásokkal tervezve
Elhelyezkedés:
A projekt Zugló frekventált, jól megközelíthető részén található, csendes utcában, de közel tömegközlekedéshez, bevásárlási lehetőségekhez, iskolákhoz és egyéb szolgáltatásokhoz.
A projekt előnyei:
-Azonnal induló beruházás – engedélyezett tervek
-Magas hozamú, jól értékesíthető lakások
-Kimagasló lokáció és műszaki tartalom
-Kiváló lehetőség fejlesztők, befektetők számára
A hirdetésben feltüntetett adatok és információk csak tájékoztató jellegűek, jogi kötelezettséggel nem bíró jognyilatkozatnak minősülnek, mely nem tekinthető ajánlat tételnek és nem járnak az eladóra nézve kötelező ajánlati kötöttséggel.
Amennyiben felkeltettem az érdeklődését vagy bármely további kérdése lenne, keressen bizalommal.
Akár hétvégén is!
CSA Hitel.hu - Hasonlítsa össze a bankok lakáshitel ajánlatait

