Eladó telek - Budapest XV. kerület
- INGYENES HIRDETÉS FELADÁS
Ingatlan adatai
- Eladó vagy kiadó:Eladó
- Település:Budapest XV. kerület
- Kategória:Telek
- Alkategória:Lakóövezeti
- Alapterület:nincs megadva
- Telekterület:464 m2
- Csere is:Nem
- Hirdető:Cég
- Élő videón megtekinthető:Nem
- Villany:Utcában
- Víz:nincs megadva
- Gáz:Utcában
- Csatorna:Utcában
- Kapcsolatfelvétel

Schmidt Kata Diana
+36-(20)-496-5989
Mondd meg a hirdetőnek, hogy a megveszLAK-on találtad a hirdetést.
Referencia szám: TK037120
Hitel ajánlatok
Ingatlan hirdetés leírása
Eladó telek, Budapest 15. ker.
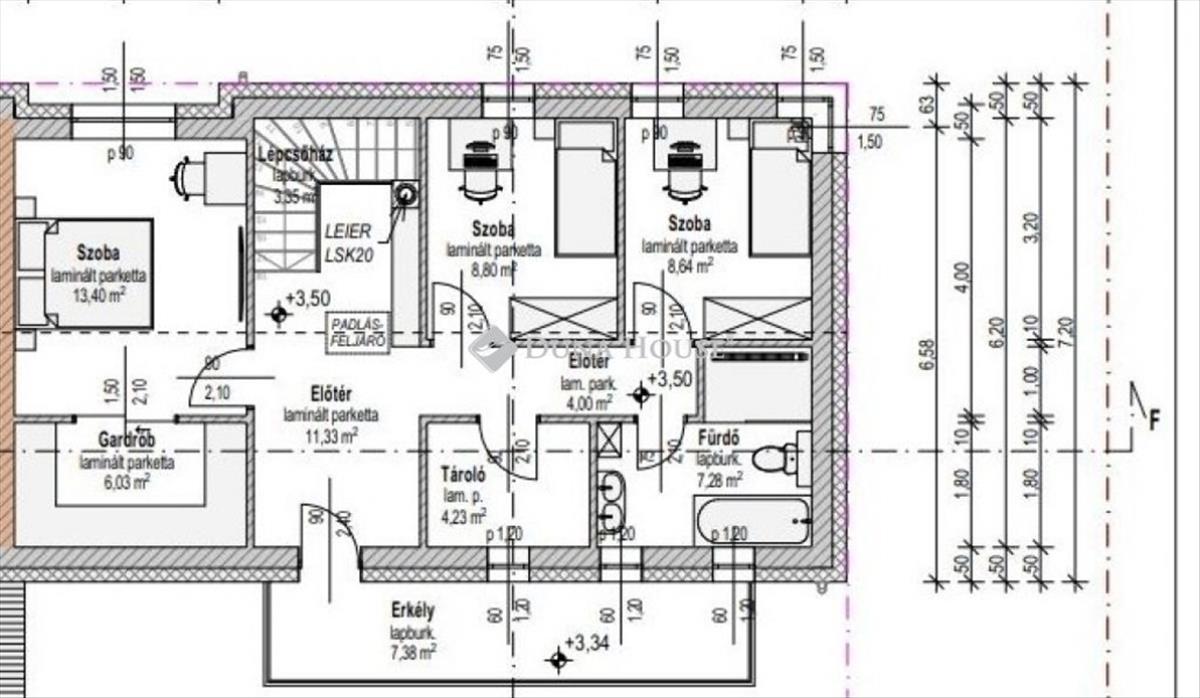
Építési telek teljes tervezési dokumentációval eladó rákospalotán! Rákospalota dinamikusan fejlődő, új építésű részén kínálom megvételre ezt a kivételes adottságú építési telket, komplett engedélyezett tervdokumentációval! Itt nem kell hónapokat ügyintézéssel töltenie. Nem kell tervezőt keresnie. Nem kell engedélyek után futnia. Már minden rendelkezésre áll Önnek csak el kell kezdenie az építkezést! a tervezett építményNagyon nagy előny, hogy a telek egy sarok telek így teljesen külön bejáratunk, építményünk házunk van senki nem zavar senkit! ! Ikerház egyik fele eladó (a teljes terv szerint kivitelezendő, attól eltérni nem lehet). Kifejezetten előnyös, ha a két fél építkezése párhuzamosan halad. Alapterület: 141 nm Földszint:-Tágas amerikai konyhás nappali + étkező-Háztartási helyiség-Fedett teraszEmelet:-3 külön nyíló hálószoba-Kényelmes fürdőszoba-GardróbszobaExtrák:Saját, különálló garázsA belső tér igény szerint alakítható a tervektől el lehet térni (falak elrendezése bizonyos keretek között, burkolatok, színek az új tulajdonos választása szerint)A tervezésnél kiemelt szempont volt a privát szféra a lakások elszeparáltak, nem zavarják egymás életterét Környezet és lokációA telek a Szilas-patak mentén található zöldövezeti, nyugodt, rendezett környezetben. Kizárólag új építésű házak veszik körül. Kiváló közlekedés:Buszjárat a Régi Fóti út közelébenGyors bejutás autóval a belvárosbaAz M3-as autópálya és az M0-s autóút percek alatt elérhető Kinek ajánlom? Családoknak, akik új építésű, modern otthonra vágynak Befektetőknek, akik értéknövekedő környéken gondolkodnak Azoknak, akik időt és energiát szeretnének spórolni a teljes tervezési folyamat kihagyásávalEz nem egy egyszerű telek ez egy előkészített lehetőség. További információért és a tervdokumentáció megtekintéséért keressen bizalommal! Független Hiteltanácsadás, Hitel Csok Babaváró ingyenes ügyintézése! Hitel.hu - Hasonlítsa össze a bankok lakáshitel ajánlatait
Tetszett ez az eladó Budapest XV. kerületi telek? Hívd fel a hirdetőt most, és tudj meg mindent erről az eladó telekről! Ha gondolod nézelődj tovább az eladó telek Budapest XV. kerület oldal hirdetései között.
Az eladó telkek menüpontban további hirdetések között is böngészhetsz. Ha van kedved, akkor böngészhetsz a Schmidt Kata Diana összes hirdetése között, vagy akár a/az Duna House Fót összes hirdetése között is.

