Eladó telek - Budapest XV. kerület
- INGYENES HIRDETÉS FELADÁS
Ingatlan adatai
- Eladó vagy kiadó:Eladó
- Település:Budapest XV. kerület
- Kategória:Telek
- Alkategória:Lakóövezeti
- Alapterület:nincs megadva
- Telekterület:464 m2
- Csere is:Nem
- Hirdető:Cég
- Élő videón megtekinthető:Nem
- Villany:Telken belül
- Víz:Utcában
- Gáz:Utcában
- Csatorna:Telken belül
- Kapcsolatfelvétel

Gecse Balázs
+36-(70)-336-9901
Mondd meg a hirdetőnek, hogy a megveszLAK-on találtad a hirdetést.
Hitel ajánlatok
Ingatlan hirdetés leírása
Azonnal indítható építési projekt Rákospalota–Palotaújfaluban ...
Azonnal indítható építési projekt Rákospalota–Palotaújfaluban
Eladásra kínálunk egy 464 m²-es építési telket Rákospalota–Palotaújfalu új parcellázású, rendezett részén, ahol kizárólag új építésű lakóingatlanok találhatók.
A telek teljes körű dokumentációval, jogerős építési engedéllyel és kész tervekkel rendelkezik.
A tervek szerint egy modern ikerház épül, melynek kivitelezése azonnal megkezdhető. a telek már az ikerház tervei alapján megosztásra került, így a kialakítás maximálisan illeszkedik a jóváhagyott épülethez.
Fontos: a telken kizárólag a meglévő tervdokumentációban szereplő épület valósítható meg. a belső terek ugyanakkor szabadon alakíthatók (falak, burkolatok, színek), engedélyköteles módosításra nincs lehetőség.
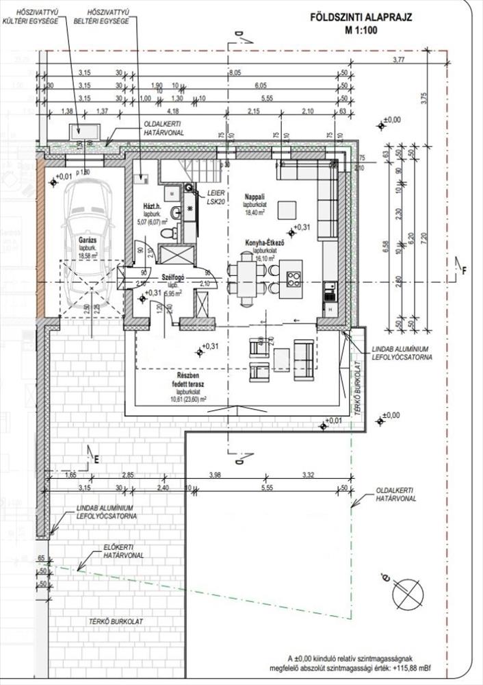
A tervezett lakrész 141, 77 m² összterületű:
– földszinten amerikai konyhás nappali és háztartási helyiség
– emeleten három szoba, fürdőszoba és lépcsőház
– az ingatlanhoz különálló garázs is tartozik
Az ikerház két fele szerkezetileg összekapcsolódik, ezért az építkezést egy időben szükséges megkezdeni. Olyan vevőt keresünk, aki a szerződéskötést követően rövid időn belül elindítaná a kivitelezést.
A tervezés során kiemelt szempont volt az intimitás és a nyugalom, így a lakások minimális áthallással, jól szeparált módon kerülnek kialakításra.
A telek csendes, zöld környezetben helyezkedik el, mégis kiváló közlekedéssel: gyors elérés a belváros felé, valamint könnyű kapcsolat az M3-as és M0-s autópályákhoz, autóval és tömegközlekedéssel egyaránt.
A telek kizárólag a meglévő tervekkel és engedélyekkel együtt eladó – ideális választás befektetőknek vagy építkezni vágyóknak, akik egy előre előkészített, azonnal indítható projektet keresnek.
Ha felkeltette érdeklődését, keressen bizalommal!
GB Hitel.hu - Hasonlítsa össze a bankok lakáshitel ajánlatait
Tetszett ez az eladó Budapest XV. kerületi telek? Hívd fel a hirdetőt most, és tudj meg mindent erről az eladó telekről! Ha gondolod nézelődj tovább az eladó telek Budapest XV. kerület oldal hirdetései között.
Az eladó telkek menüpontban további hirdetések között is böngészhetsz. Ha van kedved, akkor böngészhetsz a Gecse Balázs összes hirdetése között, vagy akár a/az GDN Ingatlanhálózat összes hirdetése között is.

