Eladó telek - Demjén
- INGYENES HIRDETÉS FELADÁS
Ingatlan adatai
- Eladó vagy kiadó:Eladó
- Település:Demjén
- Kategória:Telek
- Alkategória:Lakóövezeti
- Alapterület:nincs megadva
- Telekterület:9141 m2
- Csere is:Nem
- Hirdető:Cég
- Élő videón megtekinthető:Nem
- Villany:Utcában
- Víz:Utcában
- Gáz:Utcában
- Csatorna:Utcában
- Kapcsolatfelvétel

Ivanics Anita
+36-(70)-743-9189
Mondd meg a hirdetőnek, hogy a megveszLAK-on találtad a hirdetést.
Hitel ajánlatok
Ingatlan hirdetés leírása
DEMJÉN – ENGEDÉLYEZETT FEJLESZTÉSI PROJEKT ELADÓ (AZONNAL INDÍ...
Demjén – engedélyezett fejlesztési projekt eladó (azonnal INDÍTHATÓ)
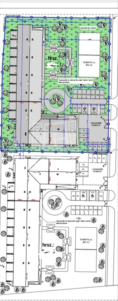
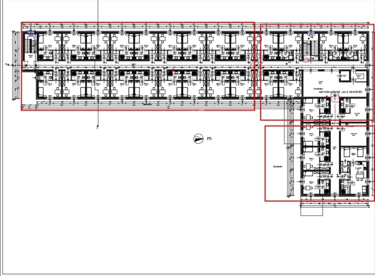
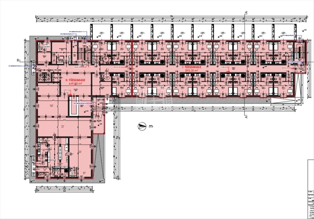
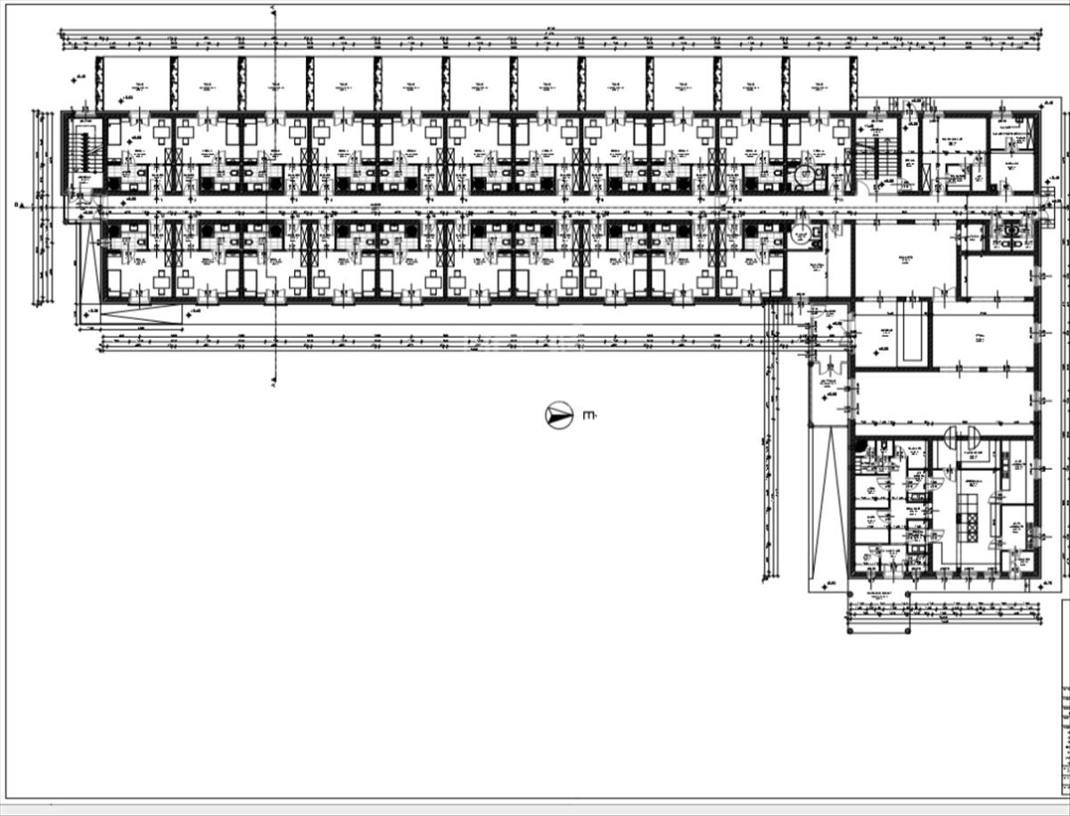
Közvetlenül a demjéni Barlangfürdő mellett kínálok megvételre egy két helyrajzi számon nyilvántartott, összesen 9. 141 M²-es belterületi fejlesztési területet, jogerős építési engedéllyel.
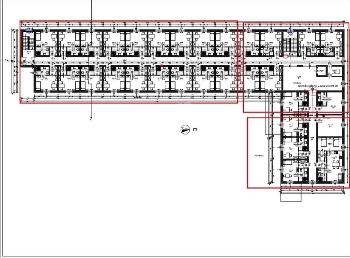
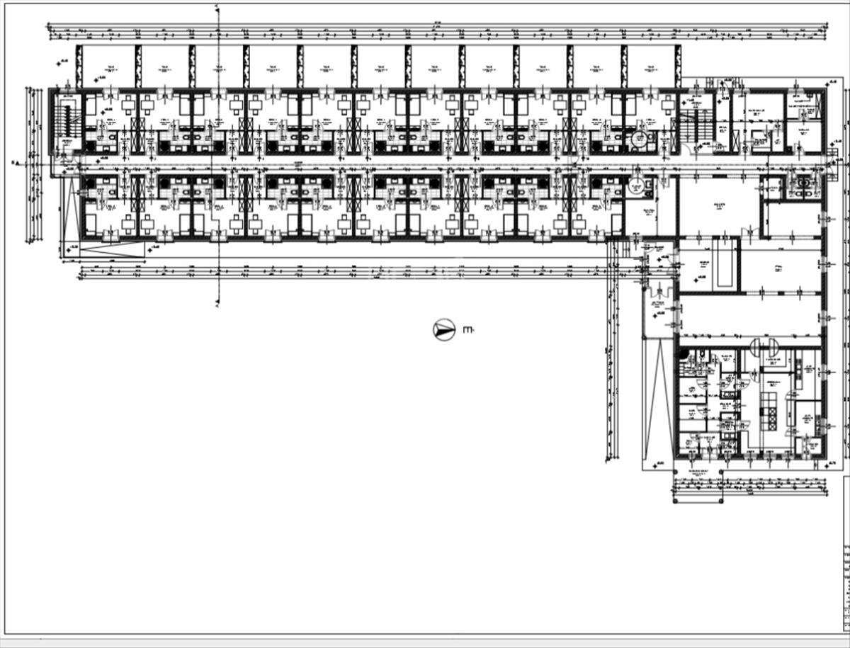
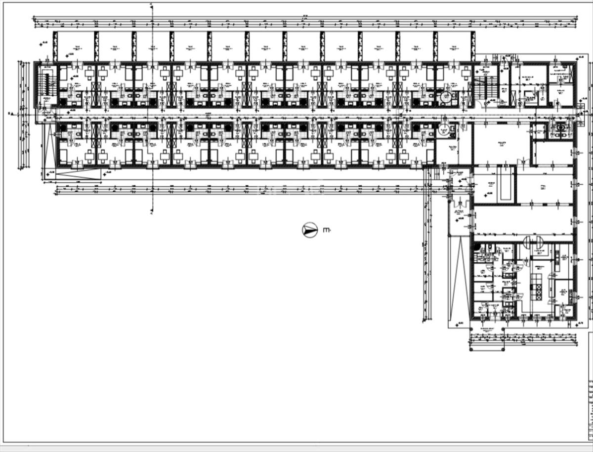
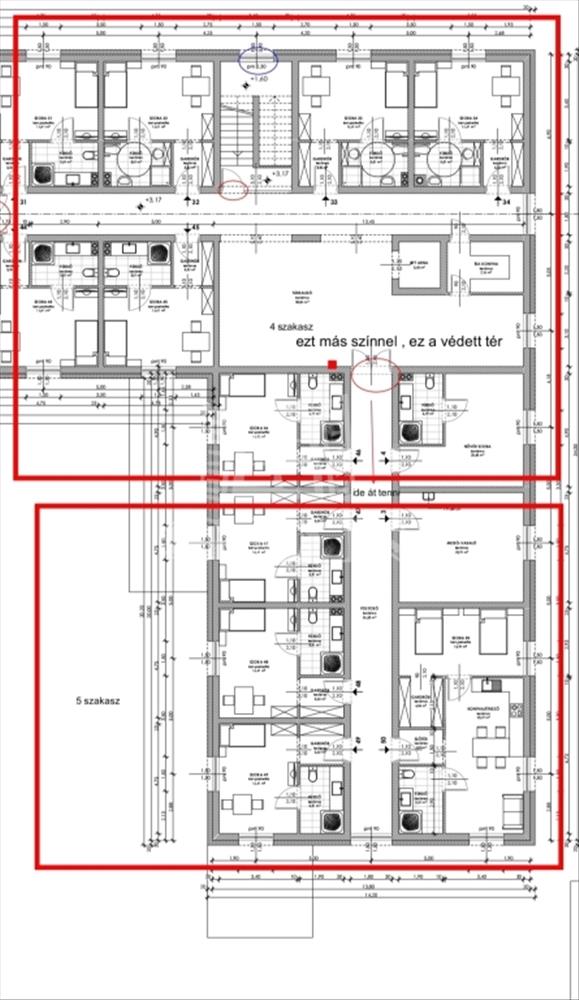
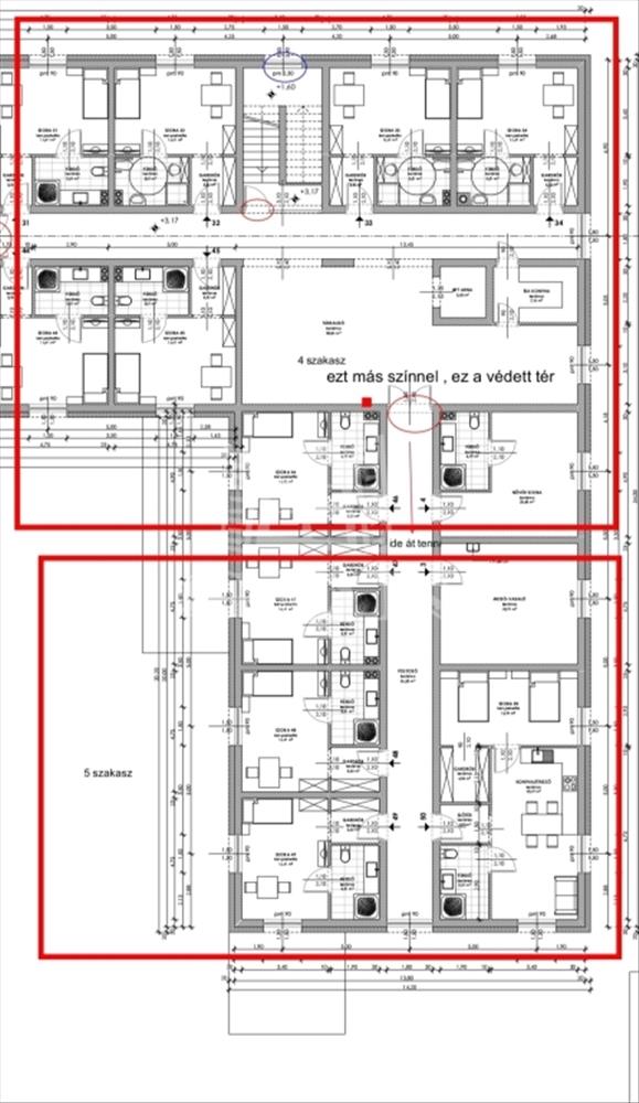
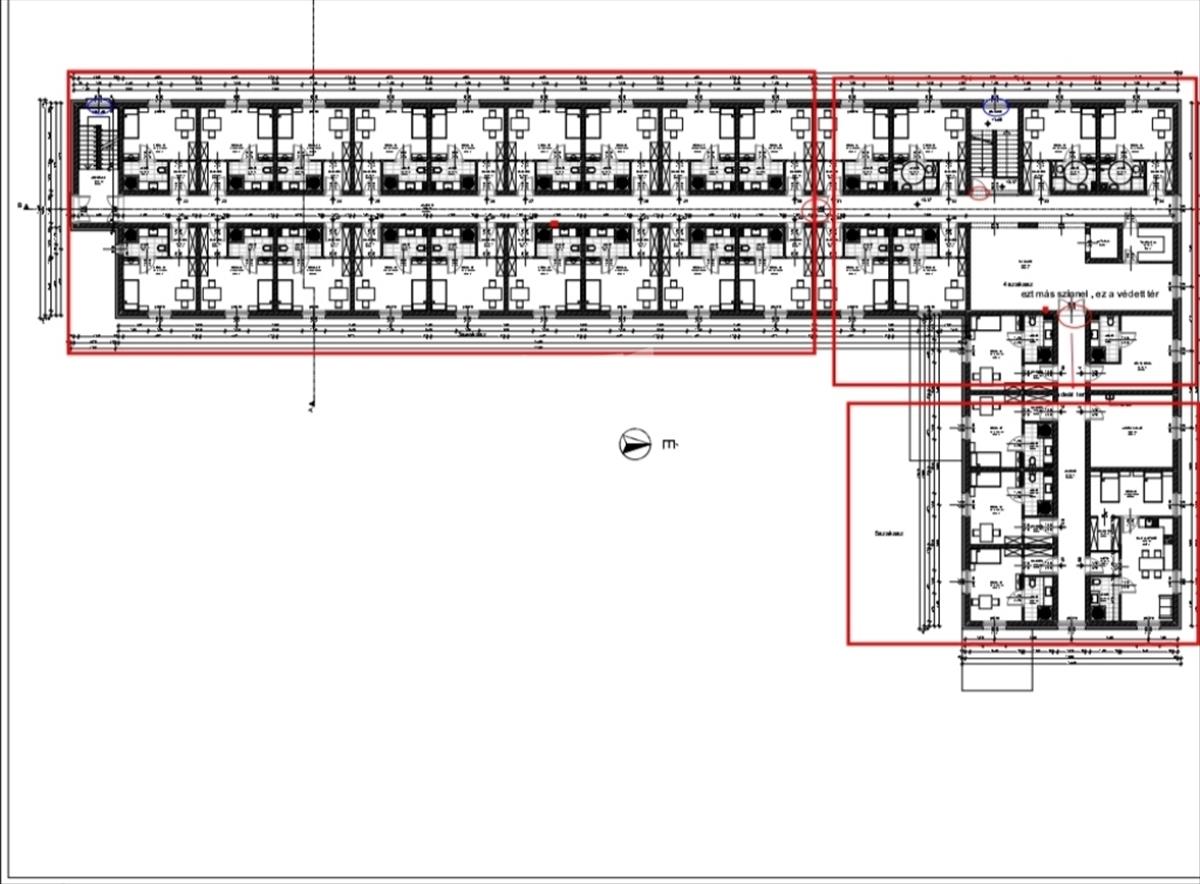
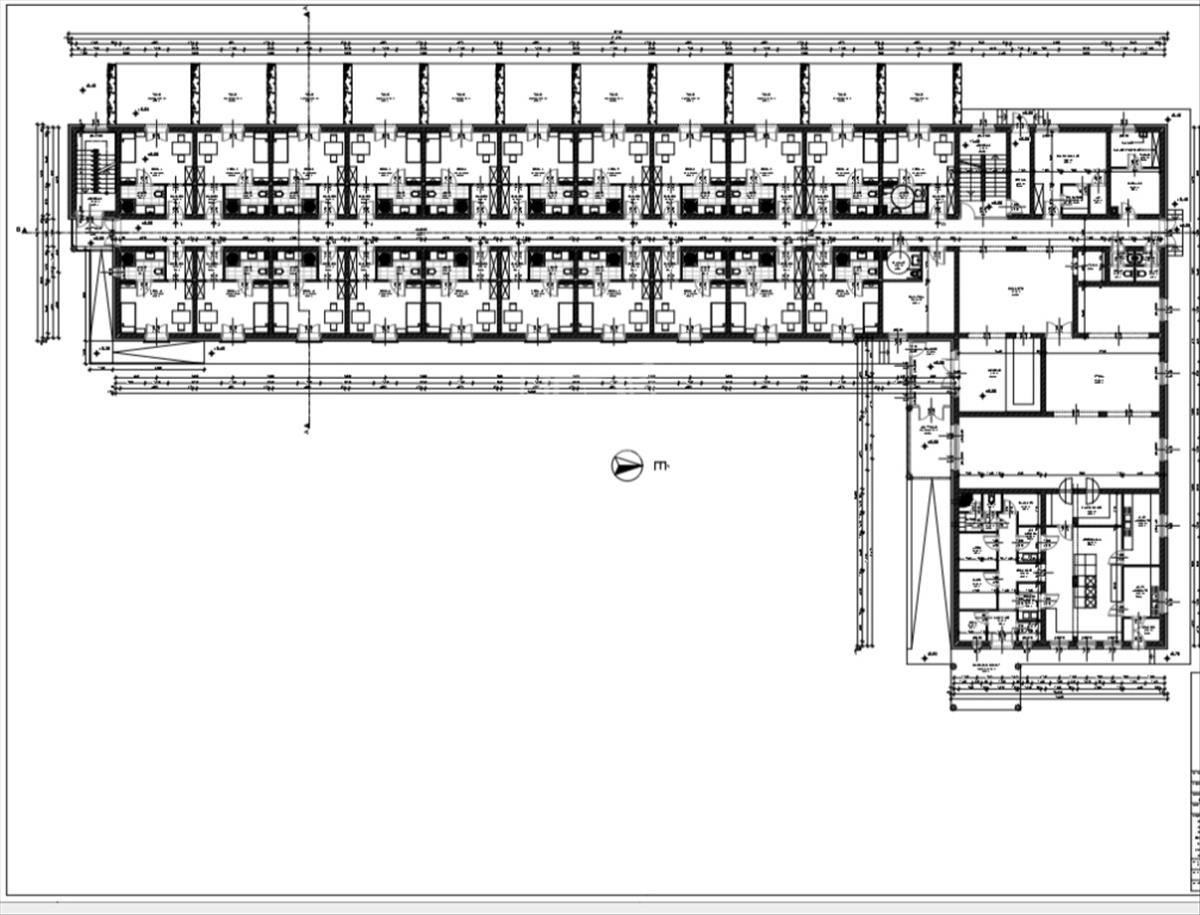
A projekt 2 db idősek otthona kivitelezésére rendelkezik engedéllyel:
– 47 szobás intézmény
– 50 szobás intézmény
TELEKADATOK:
– 4. 672 M²
– 4. 469 M²
– Összesen: 9. 141 M²
ÖVEZETI BESOROLÁS:
Lke-2 – kertvárosias lakóterület
BEÉPÍTÉSI paraméterek (helyi építési szabályzat szerint):
– Beépítési mód: szabadon álló
– Maximális beépíthetőség: 30%
– Maximális szintterületi mutató (sztm): 0, 8
– Maximális építménymagasság: 7, 5 m
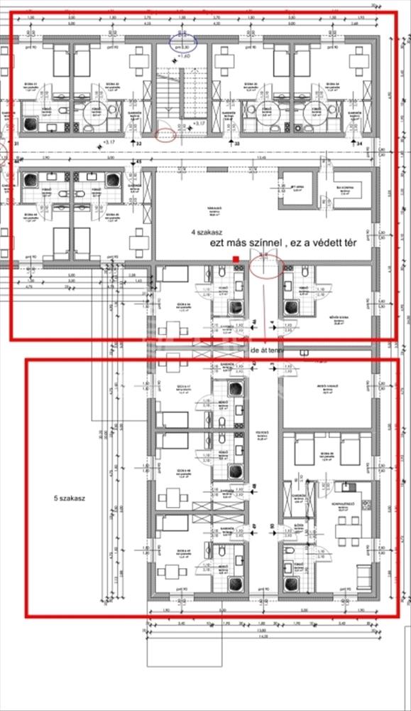
BEÉPÍTHETŐSÉG SZÁMÍTÁSA:
Telek 1 (4. 672 M²):
– Max. Beépíthető alapterület: 4. 672 × 0, 30 = 1. 401, 6 M²
– Max. Szintterület: 4. 672 × 0, 8 = 3. 737, 6 M²
Telek 2 (4. 469 M²):
– Max. Beépíthető alapterület: 4. 469 × 0, 30 = 1. 340, 7 M²
– Max. Szintterület: 4. 469 × 0, 8 = 3. 575, 2 M²
Összesen:
– Max. Beépíthető alapterület: ~2. 742 M²
– Max. Szintterület: ~7. 313 M²
TERVEZETT ÉPÜLETEK:
– 1. 343 M² és 1. 248 M² alapterület
– ~7, 2 m építménymagasság
– összesen közel 100 szobás fejlesztés
A jelenlegi engedélyezett terv közel maximális beépítési lehetőséget használ ki.
PROJEKT ELŐNYEI:
– jogerős építési engedély (idő- és költségmegtakarítás)
– azonnal indítható kivitelezés
– gyógyturisztikai lokáció (Demjéni Barlangfürdő közvetlen közelében)
– alternatív hasznosítási lehetőség (senior living / hotel / apartman)
Irányár: 170 millió Ft (csak egyben)
Budapesti ingatlan vagy gépjármű beszámítás lehetséges.
Befektetőknek, kivitelezőknek és üzemeltetőknek ajánlott.
Részletes dokumentáció (tervek, engedélyek) kérésre elérhető. Hitel.hu - Hasonlítsa össze a bankok lakáshitel ajánlatait
Tetszett ez az eladó Demjéni telek? Hívd fel a hirdetőt most, és tudj meg mindent erről az eladó telekről! Ha gondolod nézelődj tovább az eladó telek Demjén oldal hirdetései között.
Az eladó telkek menüpontban további hirdetések között is böngészhetsz. Ha van kedved, akkor böngészhetsz a Ivanics Anita összes hirdetése között, vagy akár a/az GDN Ingatlanhálózat összes hirdetése között is.

