Eladó telek - Demjén
- INGYENES HIRDETÉS FELADÁS
Ingatlan adatai
- Eladó vagy kiadó:Eladó
- Település:Demjén
- Kategória:Telek
- Alkategória:Lakóövezeti
- Alapterület:nincs megadva
- Telekterület:9141 m2
- Csere is:Nem
- Hirdető:Cég
- Élő videón megtekinthető:Nem
- Villany:Utcában
- Víz:Utcában
- Gáz:Utcában
- Csatorna:Utcában
- Kapcsolatfelvétel

Ivanics Anita
+36-(70)-743-9189
Mondd meg a hirdetőnek, hogy a megveszLAK-on találtad a hirdetést.
Hitel ajánlatok
Ingatlan hirdetés leírása
Páratlan lehetőség a természet és a gyógyító erő közelségében ...
Páratlan lehetőség a természet és a gyógyító erő közelségében – Demjénben, a Barlangfürdő szomszédságában!
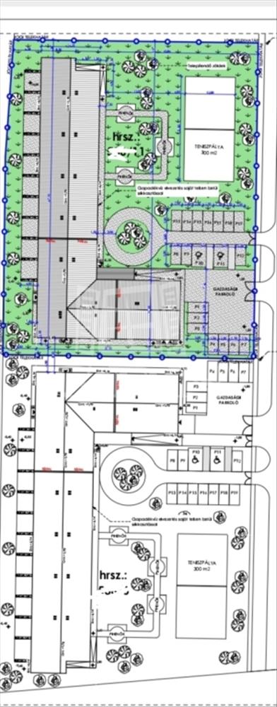
Eladó egy különleges adottságú két építési telekből álló, összesen kb 10. 000 M²-es belterületi terület, közvetlenül a gyógyvizéről híres Demjéni Barlangfürdő mellett, panorámás, csendes, gyógyító energiákkal átitatott környezetben.
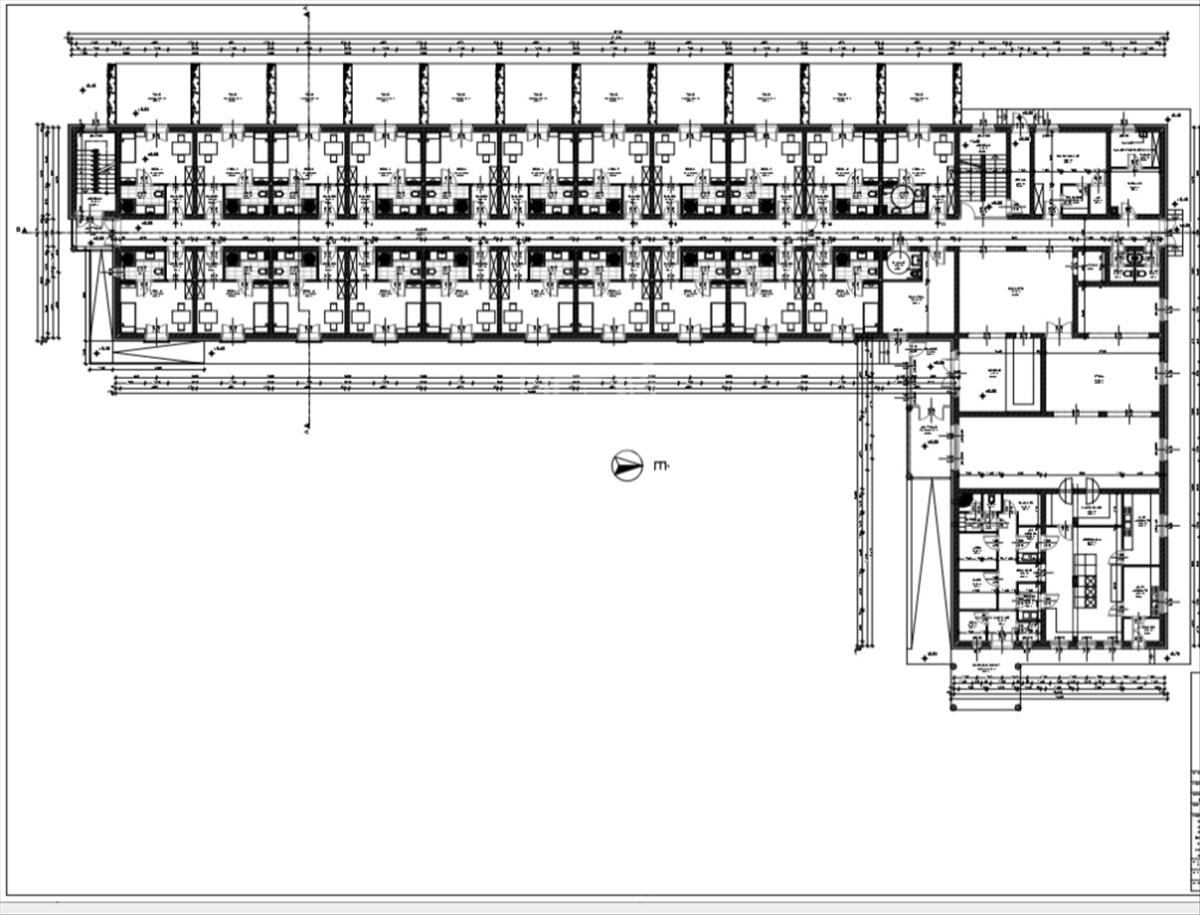
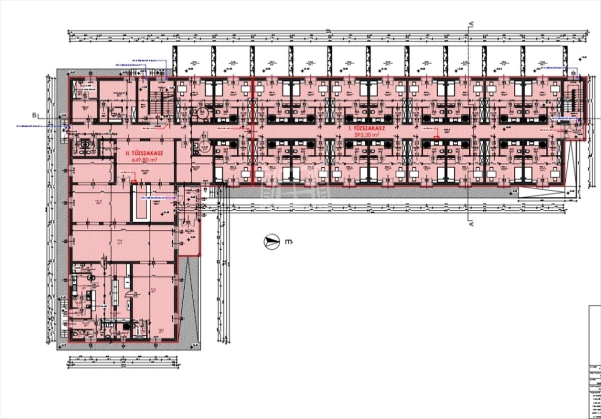
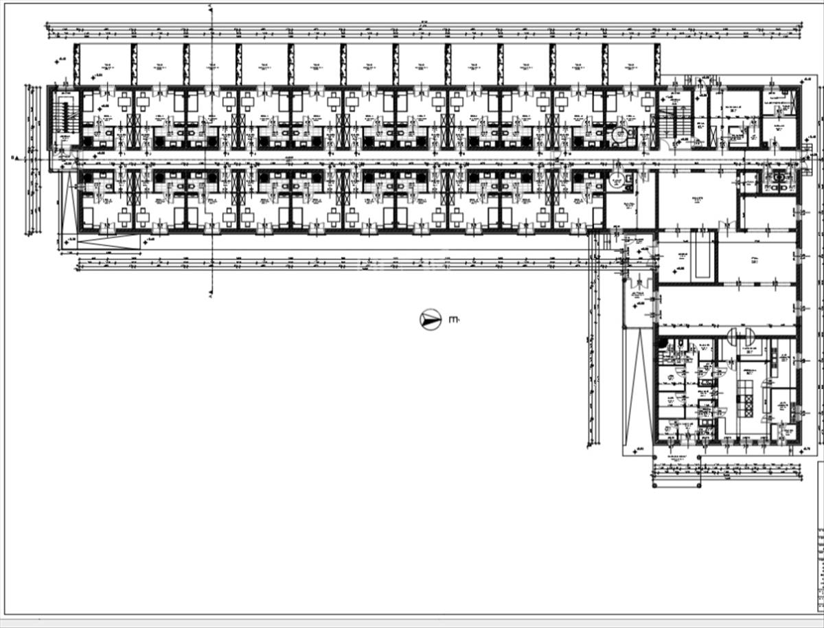
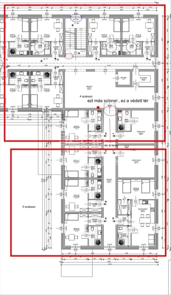
A területek már meglévő, érvényes építési engedéllyel rendelkeznek – idősek otthonára tervezve:
• az egyik 47,
• a másik 50 szobás intézményre kapott jóváhagyást.
Mindkét projekt részét képezi egy-egy 300 m²-es teniszpálya, valamint gazdasági parkoló.
Telekterületek:
• 4. 672 M² és 4. 469 M²
Övezeti besorolás: Lke-2 – kertvárosias lakóterület
• Beépíthetőség: 30%
• Szintterületi mutató: 0. 8
• Épületmagasság max: 7, 5 m
• Beépítési mód: szabadon álló
Tervezett épületek:
• 1. 343 M² és 1. 248 M²-es alapterület
• 7, 22–7, 24 m építménymagassággal
Ez a lehetőség nem csupán egy ingatlan – hanem egy hívás. Hívás azoknak, akik érzik a küldetést: időseknek adni méltó, békés, gyógyító életteret a természet ölelésében.
Itt minden adott egy korszerű, emberközpontú otthon megvalósításához – akár gyógyító központként, akár különleges elvonuló helyszínként is értelmezhető.
Csak egyben eladó!
Budapesti ingatlan vagy gépjármű beszámítása megoldható, korrekt áron.
Ne hagyja ki!
Hívjon bátran, a hét minden napján elérhető vagyok – rugalmas megtekintési lehetőséggel! Hitel.hu - Hasonlítsa össze a bankok lakáshitel ajánlatait

