Eladó telek - Eplény
- INGYENES HIRDETÉS FELADÁS
Ingatlan adatai
- Feladva:40 napja a megveszLAK-on
- Eladó vagy kiadó:Eladó
- Település:Eplény
- Kategória:Telek
- Alkategória:Lakóövezeti
- Alapterület:nincs megadva
- Telekterület:800 m2
- Csere is:Nem
- Hirdető:Magánszemély
- Élő videón megtekinthető:Nem
- Villany:Telken belül
- Víz:Telken belül
- Gáz:Utcában
- Csatorna:Telken belül
- Kapcsolatfelvétel

Szilágyi Milán
+36-(30)-272-8562
Mondd meg a hirdetőnek, hogy a megveszLAK-on találtad a hirdetést.
Hitel ajánlatok
Ingatlan hirdetés leírása
Eplény Kiserdő utca 42. Eladó telek
Építkezzen a Bakony szívében! 800 m2-es, összközműves telek tervekkel együtt eladó Eplényben!
Eladó Eplény legkedveltebb, új parcellázású részén, a Kiserdő utcában egy kiváló adottságú, belterületi építési telek. Ha nem akar a tervezéssel és az engedélyeztetéssel bajlódni, ez a telek készen áll a megvalósításra!
Főbb jellemzők:
Telekméret: 800 m2 (ideális méret: nem túl kicsi, könnyen karbantartható),
LF2 besorolás
4, 5 méteres építménymagasság,
30% beépíthetőség.
Közművek: Víz, csatorna, villany (3x25A – hőszivattyúnak, elektromos autónak ideális! ), Gáz a szomszédos utcában.
Helyszín: Új lakóövezet, aszfaltozott utca, modern szomszédos házak.
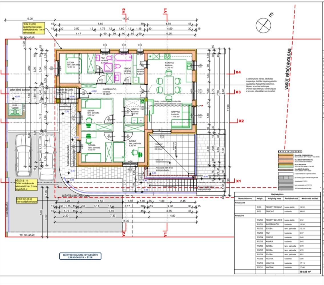
Ajándék dokumentáció: Az ár tartalmazza egy modern, bruttó 168 m2-es családi ház teljes tervdokumentációját, valamint a telekhez tartozó geodéziai és talajmechanikai szakvéleményt.
A Síaréna Vibe Park és az erdő karnyújtásnyira van, Veszprém, Zirc mindössze 10-15 percre van.
Eplény rajta van a Falusi CSOK településlistáján.
Ár: 24 300 000 Ft (Minden dokumentációval együtt! ) Hitel.hu - Hasonlítsa össze a bankok lakáshitel ajánlatait
Tetszett ez az eladó Eplényi telek? Hívd fel a hirdetőt most, és tudj meg mindent erről az eladó telekről! Ha gondolod nézelődj tovább az eladó telek Eplény oldal hirdetései között.
Az eladó telkek menüpontban további hirdetések között is böngészhetsz. Ha van kedved, akkor böngészhetsz a Szilágyi Milán összes hirdetése között.

