Eladó telek - Kismaros
- INGYENES HIRDETÉS FELADÁS
Ingatlan adatai
- Eladó vagy kiadó:Eladó
- Település:Kismaros
- Kategória:Telek
- Alkategória:Lakóövezeti
- Alapterület:nincs megadva
- Telekterület:1459 m2
- Csere is:Nem
- Hirdető:Cég
- Élő videón megtekinthető:Nem
- Villany:Telken belül
- Víz:Telken belül
- Gáz:Nincs
- Csatorna:Nincs
- Kapcsolatfelvétel

Harmati Attila
+36-(70)-520-2966
Mondd meg a hirdetőnek, hogy a megveszLAK-on találtad a hirdetést.
Hitel ajánlatok
Ingatlan hirdetés leírása
Eladó Kismaroson, Börzsönyligeten lévő, építési telek, érvénye...
Eladó Kismaroson, Börzsönyligeten lévő, építési telek, érvényes építési engedéllyel, tervekkel és már elvégzett terepmunkával!
A víz és az áram (3x32a) telken belül van, csatorna és gáz nincs az utcában.
Az ingatlan murvás, földes úton megközelíthető, közel az aszfalt úthoz.
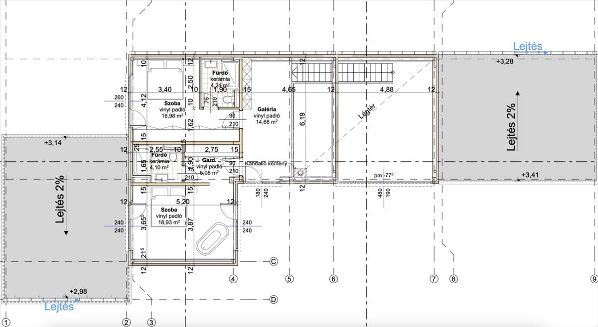
A képek között megtalálhatóak a látványtervek és az alaprajz is.
Az enyhén lejtős területet előkészítették az építkezéshez, a terepmunka el lett végezve.
A leendő ház helyén ki lettek vágva a fák, a telek hátuljában meg lett hagyva a varázslatos erdei környezet, amelyért érdemes ide költözni.
A telek Lke-4 építési övezetbe tartozik, ahol:
-a legnagyobb megengedett beépítettség 30%,
-a megengedett legnagyobb építménymagasság 4, 5 m,
-a legkisebb kialakítandó zöldfelület 50%
-a beépítés jellemző módja szabadonálló
-kialakítható legkisebb telekterület 1200 m2
Az ingatlan tulajdon lapi besorolása: kivett beépítetlen terület (belterület).
Tehermentes, cég a tulajdonos, kifizetése esetén azonnal birtokba vehető.
Az ingatlan befektetésnek is kiváló, a környéken a "kulcsos" házak fénykorukat élik!
A környék kikapcsolódásra és pihenésre tökéletes, akkor is ha az ember a vízpartot (Duna part közel van) vagy ha a hegyeket szereti, a táj mindkét igényt kielégíti.
Vác és Budapest is könnyedén elérhető, mind autóval, mind tömegközlekedéssel!
További információért forduljon Hozzám bizalommal!
Amivel segítjük az Ön ingatlanvásárlását:
-ingyenes, bankfüggetlen hitelügyintézés (csok és Babaváró ügyintézése is. )
-Jogi háttér
-földhivatali ügyintézés
-energetikai tanúsítvány elkészítése
-biztosítás
-belsőépítész Hitel.hu - Hasonlítsa össze a bankok lakáshitel ajánlatait

