Eladó telek - Lepsény
- INGYENES HIRDETÉS FELADÁS
Ingatlan adatai
- Eladó vagy kiadó:Eladó
- Település:Lepsény
- Kategória:Telek
- Alkategória:Lakóövezeti
- Alapterület:nincs megadva
- Telekterület:1707 m2
- Csere is:Nem
- Hirdető:Cég
- Élő videón megtekinthető:Nem
- Villany:nincs megadva
- Víz:nincs megadva
- Gáz:nincs megadva
- Csatorna:nincs megadva
- Kapcsolatfelvétel

Göcsei Gergő
+36-(70)-610-3925
Mondd meg a hirdetőnek, hogy a megveszLAK-on találtad a hirdetést.
Hitel ajánlatok
Ingatlan hirdetés leírása
Nyaralótelek engedélyezett tervekkel!
Eladó Lepsényben zártkerti telek engedélyezett tervekkel – a Balatontól 5 km-re
Lepsény csendes, természetközeli részén eladó egy 1707 m²-es zártkerti telek, jóváhagyott építési tervekkel. Ideális választás nyaralónak, hétvégi háznak vagy gazdasági épület megvalósítására, mindössze 5 km-re a Balatontól.
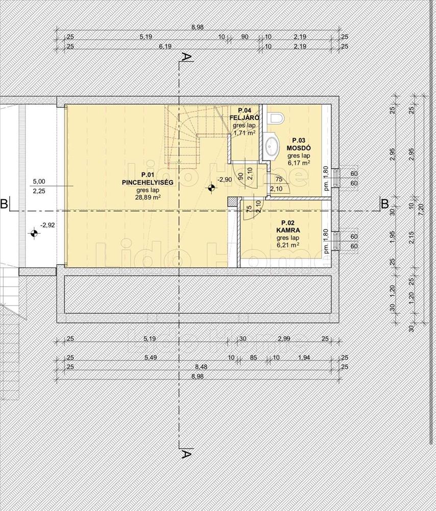
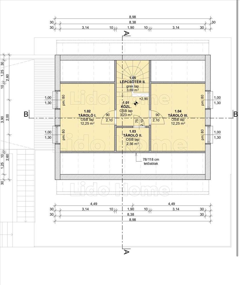
A telek Mk (kertes mezőgazdasági) övezetben található, szabadonálló beépítési móddal, 3%-os beépíthetőséggel. a kész tervek egy pince + földszint + padlástér kialakítású, nyeregtetős gazdasági épületre készültek, összesen 133, 5 m² hasznos alapterülettel.
Az épület elrendezése praktikus és jól átgondolt:
– Pinceszinten tároló, kamra és mosdó
– Földszinten tartózkodó helyiség, pihenőszoba, kézmosó, wc, közlekedő és tornác
– Padlástéren további tárolóhelyiségek
A telken jelenleg a közművek közül az áram rendelkezésre áll. a vízellátás kúttal vagy tartályos rendszerrel, a szennyvíz zárt tárolóval megoldható.
Igény esetén a kivitelezés is biztosított a meglévő tervek alapján, külön megállapodás szerint, így akár a teljes megvalósításban is tudunk segíteni.
Kiváló lehetőség azok számára, akik nyugodt környezetben, a Balaton közelében szeretnének saját nyaralót vagy gazdasági épületet építeni egy előkészített, tervezett telekre. Hitel.hu - Hasonlítsa össze a bankok lakáshitel ajánlatait
Tetszett ez az eladó Lepsényi telek? Hívd fel a hirdetőt most, és tudj meg mindent erről az eladó telekről! Ha gondolod nézelődj tovább az eladó telek Lepsény oldal hirdetései között.
Az eladó telkek menüpontban további hirdetések között is böngészhetsz. Ha van kedved, akkor böngészhetsz a Göcsei Gergő összes hirdetése között, vagy akár a/az Lido Home Balatonkenese összes hirdetése között is.

