Eladó telek - Pécel
- INGYENES HIRDETÉS FELADÁS
Ingatlan adatai
- Eladó vagy kiadó:Eladó
- Település:Pécel
- Kategória:Telek
- Alkategória:Lakóövezeti
- Alapterület:nincs megadva
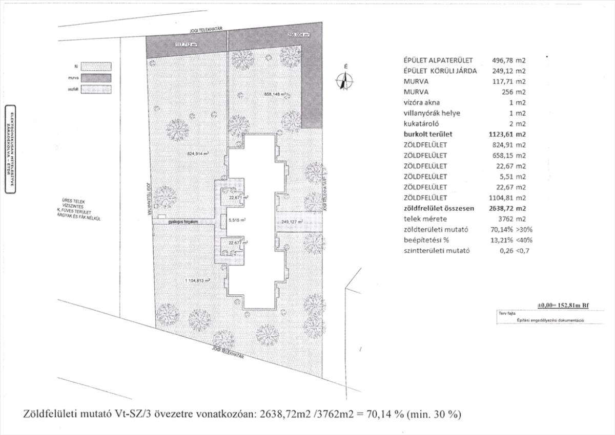
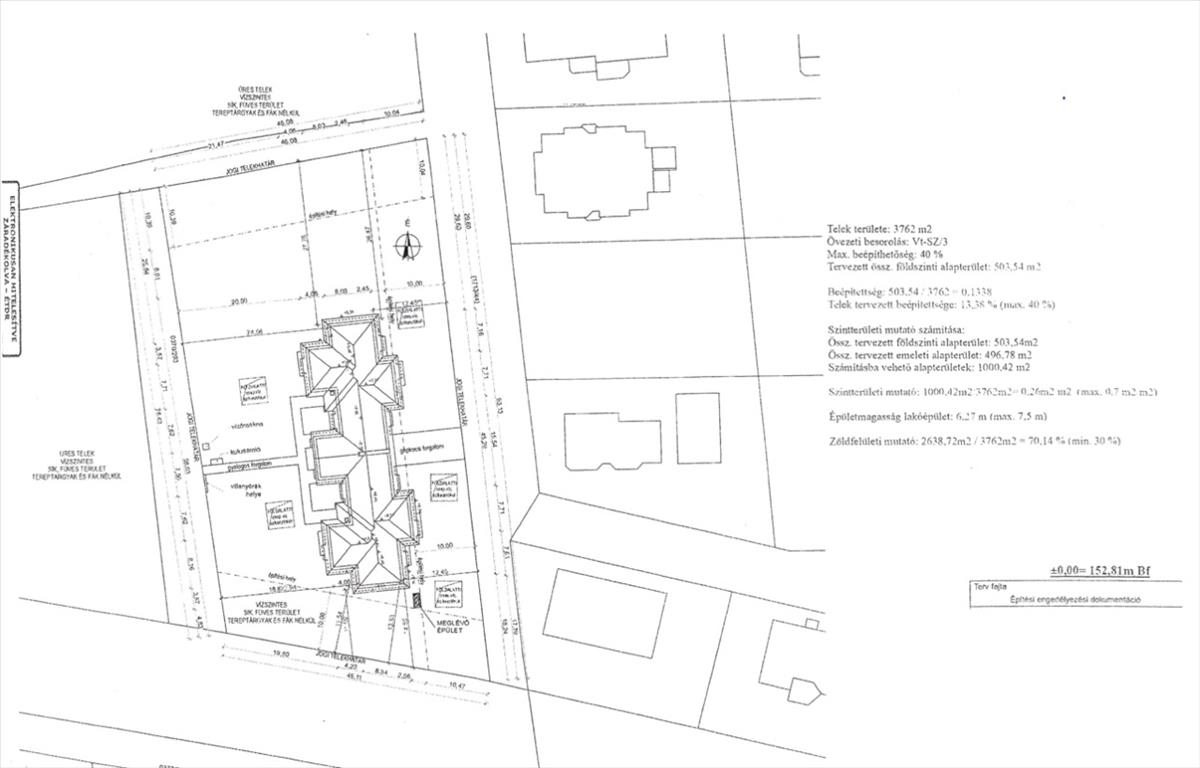
- Telekterület:3762 m2
- Csere is:Nem
- Hirdető:Cég
- Élő videón megtekinthető:Nem
- Villany:Telken belül
- Víz:Telken belül
- Gáz:Utcában
- Csatorna:Telken belül
- Kapcsolatfelvétel
Fenyvesi Marianna
+36-(20)-981-3790
Mondd meg a hirdetőnek, hogy a megveszLAK-on találtad a hirdetést.
Hitel ajánlatok
Ingatlan hirdetés leírása
CSAK NÁLUNK! Egyedi LEHETŐSÉG, KIVÁLÓ BEFEKTETÉS! Eladó kült...
Csak NÁLUNK!
Egyedi lehetőség, kiváló BEFEKTETÉS!
Eladó külterületi építési telek, engedéllyel Pécel városközpontjában – megkezdett építkezéssel!
Pécel városközpontjában eladó egy 3762 m²-es külterületi, de beépíthető építési telek, kertvárosi nyugodt környezetben, remek megközelítéssel.
A telekre érvényes, elfogadott tervdokumentáció készült, amely az E-napló rendszerében feltöltve és jóváhagyva szerepel, így az építkezés folytatható. Az építkezés már megkezdődött, a jogszabályok szerint 2027 szeptemberéig szükséges befejezni!
A jóváhagyott tervek alapján egy 787, 22 m² bruttó alapterületű épület valósítható meg, amely két nagyméretű lakást tartalmaz:
•lakásonként 393, 61 m² alapterület,
•lakásonként 26, 04 m² erkély.
Telek jellemzői:
•Telek mérete: 3762 m²
•Övezeti besorolás: jelenleg Vi-SZ/5, a terv elfogadásakor Vt-SZ/3 volt az övezeti besorolás
•Utcafront szélessége: 93, 13 m
•Aszfaltos úton megközelíthető
• Az útról a telekre a behajtó, betonozott engedélyezett.
•Csendes, rendezett utca
•Nem messze, felnőtt és gyermek játszótér, az új pumpa kapott helyet
•A tömegközlekedés csomópontjai séta távolságra vannak
Közművek:
•2 db 3×32 amperes villanyóra
•víz a telken, 1 db vízórával
•csatorna a telken belül
•gáz az utcában
A telek kertvárosi környezetben, mégis a városközponthoz közel található, jó közlekedési lehetőségekkel, így kiváló választás lehet nagy értékű lakóingatlan fejlesztésére vagy befektetési célra.
További információért és megtekintéssel kapcsolatban keressen bizalommal!
Az ingatlan rugalmasan megtekinthető, per, igény és teher mentes!
JÖJJÖN el, nézze meg, szeressen bele, tegyen ajánlatot!
A GDN HitelCentrum, kötelezettség mentesen és díjmentesen, versenyezteti Önért a bankok hitelajánlatait. Ismerje meg a vissza nem térítendő állami támogatásokat!
* Otthon Start hitel,
• babaváró,
• CSOK+
• hitel,
* személyi kölcsön,
• megtakarítás,
• és egyéb banki tranzakcióban segítségére lehetünk!
• Igény esetén, ügyvédi segítséget nyújtunk, megfizethető áron!
Ha az ingatlannal kapcsolatban bővebb felvilágosításra lenne szüksége, hívjon bizalommal, állok rendelkezésére!
F. M. Hitel.hu - Hasonlítsa össze a bankok lakáshitel ajánlatait
Tetszett ez az eladó Péceli telek? Hívd fel a hirdetőt most, és tudj meg mindent erről az eladó telekről! Ha gondolod nézelődj tovább az eladó telek Pécel oldal hirdetései között.
Az eladó telkek menüpontban további hirdetések között is böngészhetsz. Ha van kedved, akkor böngészhetsz a Fenyvesi Marianna összes hirdetése között, vagy akár a/az GDN Ingatlanhálózat összes hirdetése között is.

