Eladó telek - Pilis
- INGYENES HIRDETÉS FELADÁS
Ingatlan adatai
- Eladó vagy kiadó:Eladó
- Település:Pilis
- Kategória:Telek
- Alkategória:Lakóövezeti
- Alapterület:nincs megadva
- Telekterület:422 m2
- Csere is:Nem
- Hirdető:Cég
- Élő videón megtekinthető:Nem
- Villany:Utcában
- Víz:Utcában
- Gáz:Utcában
- Csatorna:Utcában
- Kapcsolatfelvétel

Turcsányi István
+36-(30)-263-3889
Mondd meg a hirdetőnek, hogy a megveszLAK-on találtad a hirdetést.
Referencia szám: TK069357
Hitel ajánlatok
Ingatlan hirdetés leírása
Eladó telek, Pilis, Eladó telek - Pilis
Álmaid otthona Pilisen kezdődik építési telek kivételes elhelyezkedéssel!
Pilisen eladó egy 422 nm -es építési telek, rendezett, nyugodt utcában.
A telek 30%-os beépíthetőséggel rendekezik, 126 nm -es lakóház építhető rá.
Az utcában minden közmű elérhető, így az építkezés azonnal tervezhető.
Plusz érték:
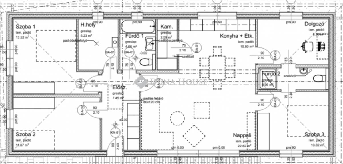
A telekhez kész tervrajz tartozik a rá építhető ingatlanról, ami jelentős idő- és költségmegtakarítást jelent.
Elhelyezkedés:
Vasútállomás 4 perc autóval
Vrosközpont 2 perc autóval
Kiváló közlekedés Budapest felé:
vonattal kb. 50 Perc
autóval az M4-en mindössze 25 perc
A központban minden megtalálható a mindennapokhoz! Penny, Rossmann, Posta, atm, iskolák, óvodák.
Pilis élhető, folyamatosan fejlődő város, kiváló választás családoknak és befektetőknek egyaránt.
Ne hagyd ki ezt a lehetőséget ilyen adottságú telek ritkán kerül piacra!
Bankfüggetlen hitelszakértőink díjmentesen segítenek hitelfelvételben.
Megtekintéssel kapcsolatosan keressen a hét bármely napján!
Turcsanyi Istvan +36302633889 Hitel.hu - Hasonlítsa össze a bankok lakáshitel ajánlatait
Tetszett ez az eladó Pilisi telek? Hívd fel a hirdetőt most, és tudj meg mindent erről az eladó telekről! Ha gondolod nézelődj tovább az eladó telek Pilis oldal hirdetései között.
Az eladó telkek menüpontban további hirdetések között is böngészhetsz. Ha van kedved, akkor böngészhetsz a Turcsányi István összes hirdetése között, vagy akár a/az Duna House Home Center összes hirdetése között is.

