- >>
- eladó ingatlanok
- >>
- eladó telek
- >>
- eladó telek Pilisborosjenő
- >>
Eladó telek - Pilisborosjenő
| | |||
| Kedvencnek jelölöm | Elküldöm emailben | Megosztás | Szavazás |
| Kedvezményes lakáshitel ajánlatok | |||
| 37 500 000 HUF | |||
Ingatlan adatai
- Eladó vagy kiadó:Eladó
- Település:Pilisborosjenő
- Kategória:Telek
- Alkategória:Lakóövezeti
- Alapterület:nincs megadva
- Telekterület:816 m2
- Csere is:Nem
- Hirdető:Cég
- Élő videón megtekinthető:Nem
- Villany:Nincs
- Víz:Nincs
- Gáz:Nincs
- Csatorna:Nincs
- Üzenetküldés
- Hívás


Ingatlan hirdetés leírása
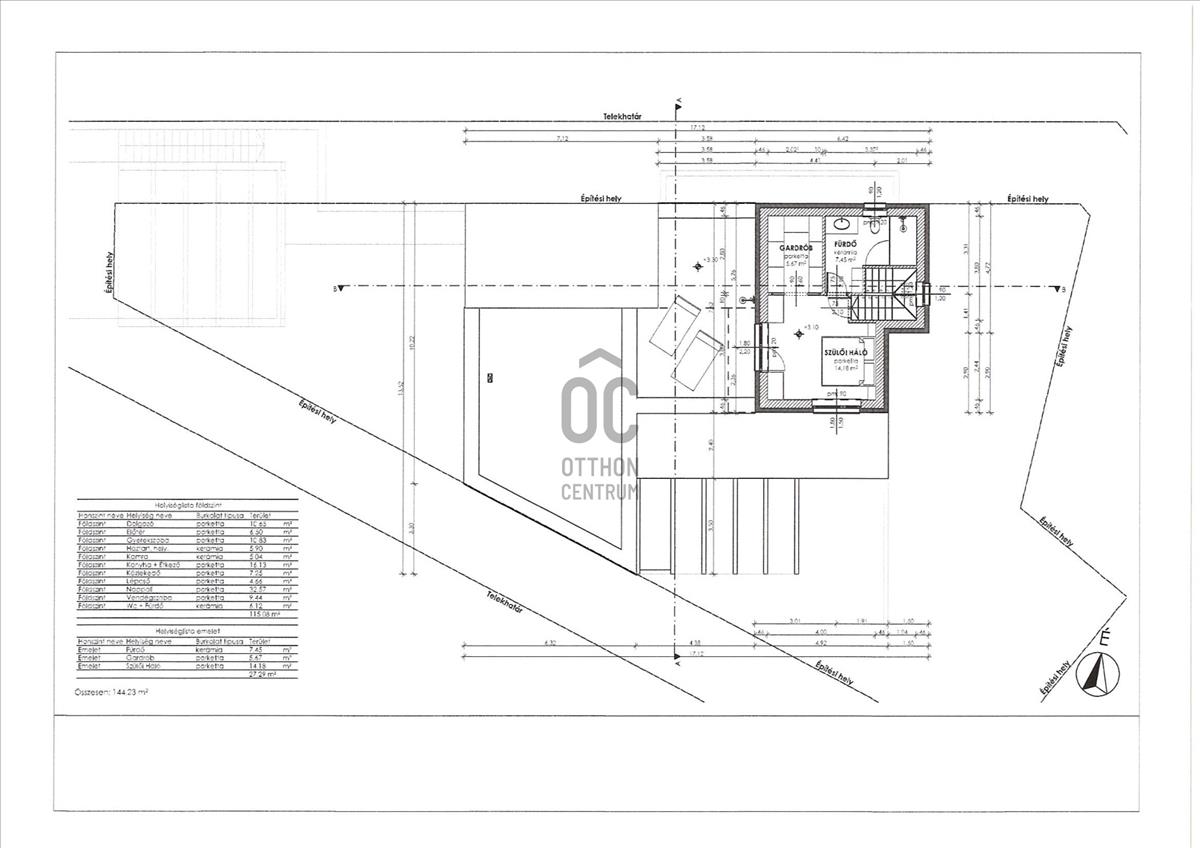
PILISBOROSJENŐ , MALOMDŰLŐBEN ÉRVÉNYES ÉPÍTÉSI ENGEDÉLLYEL 816...
Pilisborosjenő, malomdűlőben érvényes építési engedéllyel 816 nm telek eladó! !TELEK:
-816 nm
- panorámás
- erdővel határos
- trapéz alakú
- két zsákutcáról is megközelíthető
HÉSZ: ( 2025-02-24. -Től hatályos )
Építési övezet :
- Lke-tm1 kertvárosias környezet ( társasházas övezet)
- jelenleg fejlesztéses övezet
- beépítési mód szabadon álló ház
- legnagyobb beépíthetősége 20%
- épületmagasság legnagyobb mértéke 750 cm
- zöldfelület legkisebb mértéke 50%
- szintterületi mutató legnagyobb mértéke 60%
- napelem, napkollektor létesíthető
- hőszivattyú létesíthető
- szennyvíz elvezetés kizárólag zárt rendszerű lehet
KÖRNYEZET:
- csendes
- jelenleg még fejlesztési övezet
- murva út
- közvilágítás kialakítása elkezdődött
- víz gerincvezetékét lefektették
- villany vezetékek lefektetése földkábelekben elkezdődött,
Közművek hozzájárulásáról, költségeiről, rákötésről a Malomdűlő Kft. Képviseletével szükséges egyeztetni.
-Bevásárlási lehetőség 2km körzetben
- tömegközlekedés autóbusz ( 218) a Téglagyári illetve az Auchan megállónál lehetséges a felszállás
A 218 busz Szentlélek tértől indul, a távolsági busz az Árpád híd Pesti hídfőjétől indul,
Solymárról pedig vasút a Nyugati Pályaudvarba lehet bejutni Hitel.hu - Hasonlítsa össze a bankok lakáshitel ajánlatait


