Eladó telek - Piliscsaba
- INGYENES HIRDETÉS FELADÁS
Ingatlan adatai
- Eladó vagy kiadó:Eladó
- Település:Piliscsaba
- Kategória:Telek
- Alkategória:Lakóövezeti
- Alapterület:nincs megadva
- Telekterület:7065 m2
- Csere is:Nem
- Hirdető:Cég
- Élő videón megtekinthető:Nem
- Villany:Utcában
- Víz:Utcában
- Gáz:Utcában
- Csatorna:Utcában
- Kapcsolatfelvétel

Drevnó Béla
+36-(70)-307-7503
Mondd meg a hirdetőnek, hogy a megveszLAK-on találtad a hirdetést.
Referencia szám: TK012650
Hitel ajánlatok
Ingatlan hirdetés leírása
Eladó telek, Piliscsaba
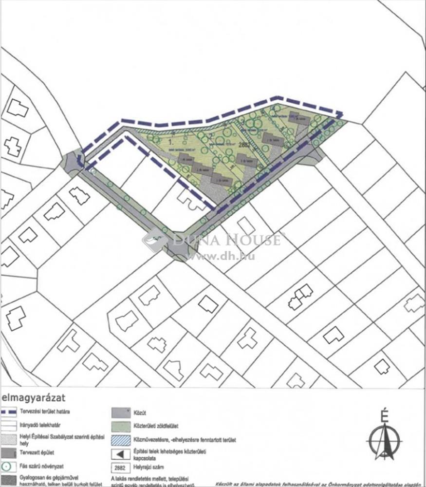
Eladó építési telkek Piliscsabán. a város Garancstető elnevezésű területén eladásra kínálunk 4 db, belterületi építési telket.
A terület rendelkezik elektromos áram, gáz, víz és csatorna közművel, szilárd burkolatú úton közelíthető meg. a környék lakóházakkal beépített, szomszédságban játszótér található. a területről gyönyörű kilátás tárul elénk a Pilis hegyvonulatára valamint a városra.
Övezeti besorolás: vt-1, beépítési mód: oldalhatáron álló, beépítettség megengedett legnagyobb mértéke 30 %, megengedett legnagyobb épületmagasság 7, 5 méter, legkisebb kialakítható telek méret 1500 m2. 500 m2 területenként 1 lakás alakítható ki.
Figyelmébe ajánlom mindazoknak, akik a város zajától távol, jó levegőjű, nyugodt környezetben szeretnék élni minden napjaikat. Piliscsaba infrastrukturális ellátottsága magas színvonalú, mind a lakossági szolgáltatás, mind pedig az oktatás tekintetében.
Amennyiben felkeltette érdeklődését az ingatlan, kérem, keressen bizalommal, szívesen állok rendelkezésére további információkkal.
A Duna House teljes kínálatával kapcsolatban forduljanak hozzám bizalommal!
Bankfüggetlen pénzügyi szakembereink tanácsadással, ügyintézéssel tudják segíteni Önöket álmaik, céljaik megvalósításában!
Vegye igénybe díjmentes konzultációinkat!
Https://www. Facebook. Com/otthonkonnyeden
Referencia szám: tk012650 Hitel.hu - Hasonlítsa össze a bankok lakáshitel ajánlatait

