- >>
- eladó ingatlanok
- >>
- eladó telek
- >>
- eladó telek Pusztazámor
- >>
Eladó telek - Pusztazámor
| | |||
| Kedvencnek jelölöm | Elküldöm emailben | Megosztás | Szavazás |
| Kedvezményes lakáshitel ajánlatok | |||
| 65 000 000 HUF | |||
Ingatlan adatai
- Eladó vagy kiadó:Eladó
- Település:Pusztazámor
- Kategória:Telek
- Alkategória:Lakóövezeti
- Alapterület:nincs megadva
- Telekterület:1940 m2
- Csere is:Nem
- Hirdető:Cég
- Élő videón megtekinthető:Nem
- Villany:Telken belül
- Víz:Telken belül
- Gáz:Telken belül
- Csatorna:Telken belül
- Üzenetküldés
- Hívás

Dankóné Cserős Éva
Mondd meg a hirdetőnek, hogy a megveszLAK-on találtad a hirdetést.

Ingatlan hirdetés leírása
HA SZERETI A CSENDET, NYUGALMAT ÉS A GYÖNYÖRŰ PANORÁMÁT, AKKOR...
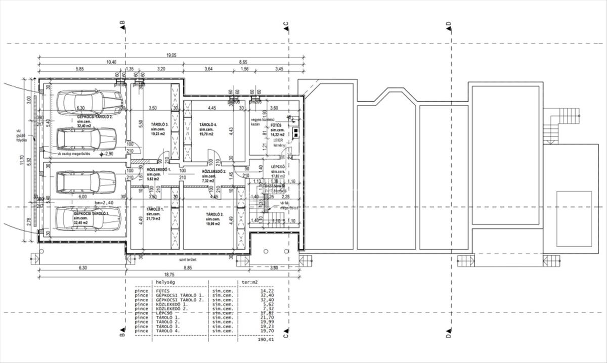
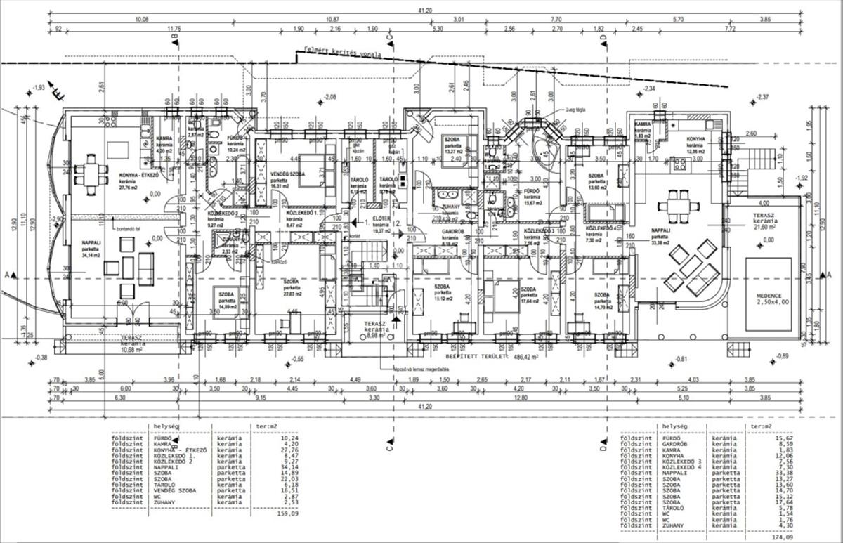
Ha szereti a csendet, nyugalmat és a gyönyörű panorámát, akkor ez az ingatlan önre VÁR!Eladó Pusztazámor egyik csendes utcájában, családi házak szomszédságában egy közel 2000 m2 területű telek, melyen elhelyezkedik, egy 2 lakóegységet magában foglaló ikerház megépített alapjával, mely a falakat is magába foglalja.
A lakások nettó lakóterülete 159 m2 és 174 m2, a pince szinten pedig mindkét lakás számára tároló helyiségek és garázsok lettek tervezve, melynek területe 190 m2.
A ház jelenlegi készültségi foka 30 %-os, melyre a jelenlegi tulajdonos a fennmaradási engedélyt megkapta, illetve az újonnan elkészült tervek elfogadásra kerültek.
A közműveket bevezették, telken belül mind megtalálhatók, összközműves.
Eressze szabadjára fantáziáját és szárnyaljon a lehetőségekkel, amit ez az ingatlan magában rejt!
Ne hagyja ki, vágjon bele! Hitel.hu - Hasonlítsa össze a bankok lakáshitel ajánlatait


