Eladó telek Siófok
| Kedvencbe | Megosztás | Árfigyelő |
| Kedvezményes lakáshitel ajánlatok | ||
| 129 000 000 HUF | ||
Ingatlan adatai
- Eladó vagy kiadó:Eladó
- Település:Siófok
- Kategória:Telek
- Alkategória:Lakóövezeti
- Alapterület:nincs megadva
- Telekterület:1041 m2
- Csere is:Nem
- Hirdető:Cég
- Élő videón megtekinthető:Nem
- Villany:nincs megadva
- Víz:nincs megadva
- Gáz:nincs megadva
- Csatorna:nincs megadva
- Üzenetküldés
- Hívás


Hitel ajánlat
Ingatlan hirdetés leírása
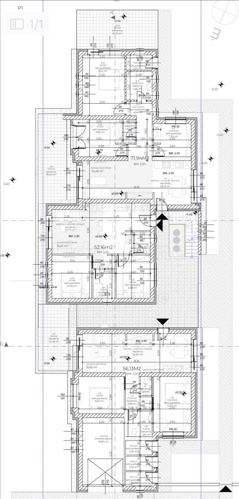
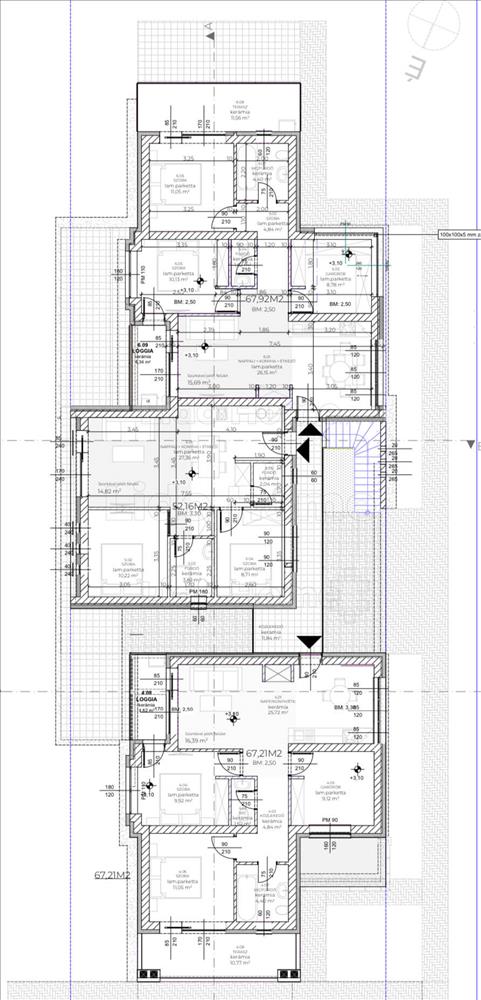
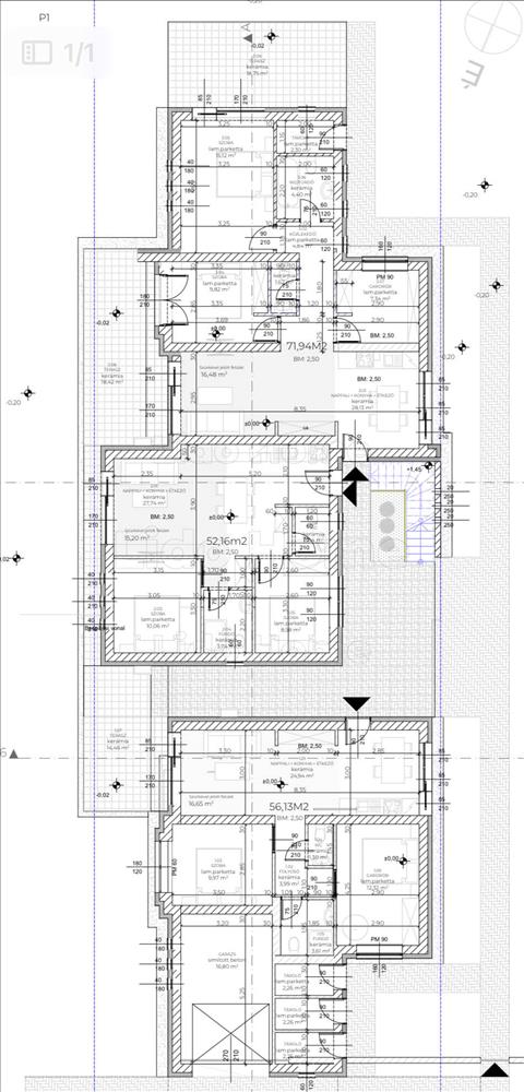
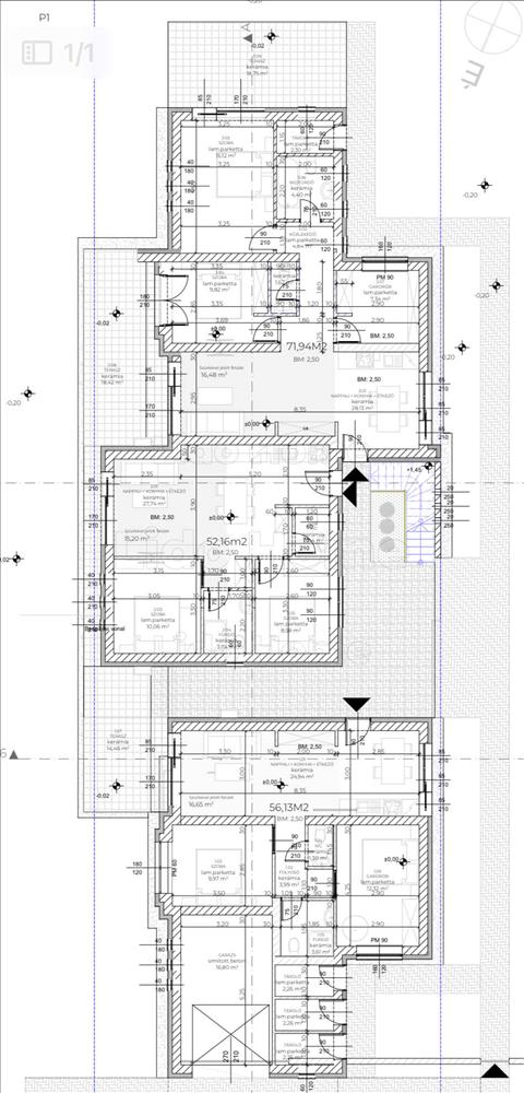
Eladó ingatlan érvényes építési engedéllyel!
Siófokon, a Foki-hegy és az Ezüstpart határán, a Balatontól mindössze 500 méterre eladó egy 1041 m² területű ingatlan, „Lk” övezeti besorolással.Az ingatlanhoz 6 lakás építésére szóló érvényes építési engedély és teljes tervdokumentáció tartozik.
Tervezett lakások adatai:
1. Lakás – Földszint
Nettó alapterület: 56, 13 m²
Terasz: 14, 46 m²
2. Lakás – Földszint
Nettó alapterület: 52, 16 m²
3. Lakás – Földszint
Nettó alapterület: 52, 16 m²
Terasz: 37, 17 m²
4. Lakás – Emelet
Nettó alapterület: 67, 21 m²
Terasz: 10, 77 m²
Loggia: 4, 62 m²
5. Lakás – Emelet
Nettó alapterület: 52, 16 m²
6. Lakás – Emelet
Nettó alapterület: 67, 92 m²
Terasz: 11, 56 m²
Loggia: 4, 34 m²
A környéken új építésű lakások esetében az átlagos piaci ár 1, 4 millió Ft/m².
A projekt kiváló lehetőség befektetők és fejlesztők számára, mivel az engedélyezett, teljes körű tervdokumentáció azonnali építkezést tesz lehetővé.
Lido Home - Ingatlanok egy életen át! Hitel.hu - Hasonlítsa össze a bankok lakáshitel ajánlatait

