Eladó telek - Siófok
- INGYENES HIRDETÉS FELADÁS
Ingatlan adatai
- Eladó vagy kiadó:Eladó
- Település:Siófok
- Kategória:Telek
- Alkategória:Lakóövezeti
- Alapterület:nincs megadva
- Telekterület:1800 m2
- Csere is:Nem
- Hirdető:Cég
- Élő videón megtekinthető:Nem
- Villany:Van
- Víz:Van
- Gáz:Van
- Csatorna:Van
- Kapcsolatfelvétel

Nyitrai Gabriella
+36-(70)-380-3752
Mondd meg a hirdetőnek, hogy a megveszLAK-on találtad a hirdetést.
Referencia szám: 180766
Hitel ajánlatok
Ingatlan hirdetés leírása
Kiváló befektetés Siófok belvárosában!
Az Openhouse Siófok kínálatában eladó a #180766 hivatkozási számú siófoki telek.
Siófok belvárosában jogerős építési engedéllyel rendelkező projekt beruházási lehetősége eladó!
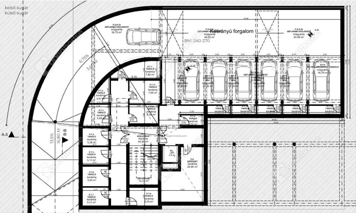
Az ingatlan 3 szinten kerülne megépítésre, mélygarázzsal és felszíni parkolási lehetőséggel.
Telekterület 1800 m2.
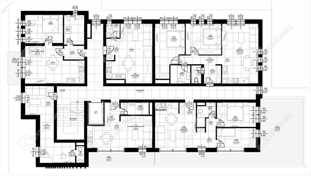
A pinceszinten 60, 67 m2 tároló (16 darab), 230, 84 közösségi tér, illetve 83, 26 m2 parkoló (6 darab) kerül kialakításra, összesen 372, 38 m2. Az épület összes szintje lifttel megközelíthető.
A földszinten 271, 7 rendelő, illetve üzlet, ezenkívül 91, 09 m2 közösségi tér kerül kialakításra, ami összesen
362, 79 m2. Az egészségügyi szolgáltatásra ezt a részt kötelező kiépíteni.
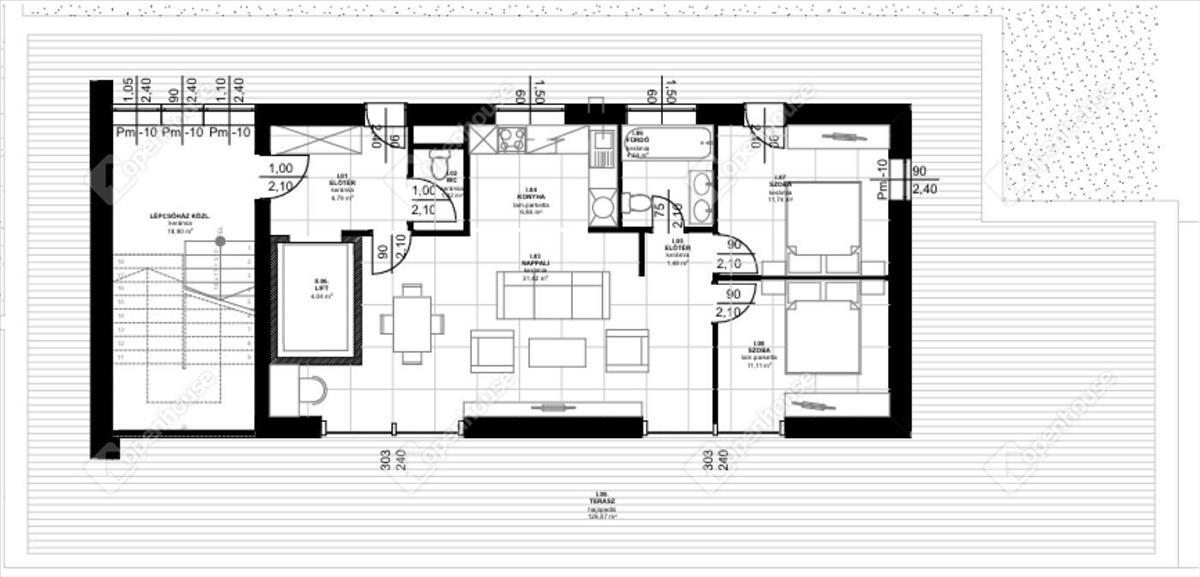
Az 1. emeleten 264, 57 m2 lakás és iroda (plusz teraszok), valamint 58, 68 m2 közösségi tér kerül kialakításra, ami összesen 323, 25 m2.
A 2. emeleten 265, 01 m2 lakás és iroda (plusz teraszok), valamint 59, 50 m2 közösségi tér kerül kialakításra, ami összesen 324, 51 m2.
A 3. emeleten 75, 45 m2 lakás (plusz terasz), illetve 18, 90 m2 közösségi tér kerül kialakításra, ami összesen: 94, 35 m2.
A földszinti részen kívül 11 db lakás és 2 db iroda épülne a tervek szerint.
Az épület összes nettó alapterülete: 1477, 28 m2 plusz teraszok.
A beruházás azonnal megkezdhető!
Településen belüli elhelyezkedés:
Az értékelt ingatlan Siófok egyik kiemelt városrészén található, melynek alappillére a közvetlenül szomszédos Siófoki Kórház Rendelőintézet. Ez a tényező alapvetően befolyásolja az értékelt ingatlan hasznosítási formáját a jelenlegi hatályos építési szabályzat szerint.
Megközelíthetőség
Szilárd burkolat, aszfaltozott úton, az áruszállítás, a tömegközlekedés és a gyalogos
forgalom számára is közvetlenül megközelíthető. a 7-es főútvonal közvetett módon,
az M7-es autópálya 1, 5 km-en belül elérhető.
Kiemelt befektetési lehetőség! ! !
Ha felkeltette érdeklődését ez az eladó siófoki telek, vagy bármely más telek és bővebb információt szeretne, keressen bizalommal. Hivatkozási szám: #180766
Az Openhouse Siófok tagjaként várom Önt az országos hálózatunk teljes kínálatával.
A telek vásárláshoz hitelt igényelne? Ingyenes hitelközvetítéssel segít Önnek bankfüggetlen hitelszakértőnk.
További szolgáltatásainkkal (pl. Értékbecslés, energetikai tanúsítvány, jogi háttér) is segítjük Önt a vásárlásban.
Az otthon érték. Az ingatlan üzlet. Hitel.hu - Hasonlítsa össze a bankok lakáshitel ajánlatait
Tetszett ez az eladó Siófoki telek? Hívd fel a hirdetőt most, és tudj meg mindent erről az eladó telekről! Ha gondolod nézelődj tovább az eladó telek Siófok oldal hirdetései között.
Az eladó telkek menüpontban további hirdetések között is böngészhetsz. Ha van kedved, akkor böngészhetsz a Nyitrai Gabriella összes hirdetése között, vagy akár a/az Open House Openhouse Siófok összes hirdetése között is.

