Eladó telek - Szentes
- INGYENES HIRDETÉS FELADÁS
Ingatlan adatai
- Eladó vagy kiadó:Eladó
- Település:Szentes
- Kategória:Telek
- Alkategória:Lakóövezeti
- Alapterület:nincs megadva
- Telekterület:2247 m2
- Csere is:Nem
- Hirdető:Cég
- Élő videón megtekinthető:Nem
- Villany:Telken belül
- Víz:Utcában
- Gáz:Utcában
- Csatorna:nincs megadva
- Kapcsolatfelvétel

Lázár Krisztina
+36-(30)-223-3606
Mondd meg a hirdetőnek, hogy a megveszLAK-on találtad a hirdetést.
Referencia szám: M293072
Ingatlan hirdetés leírása
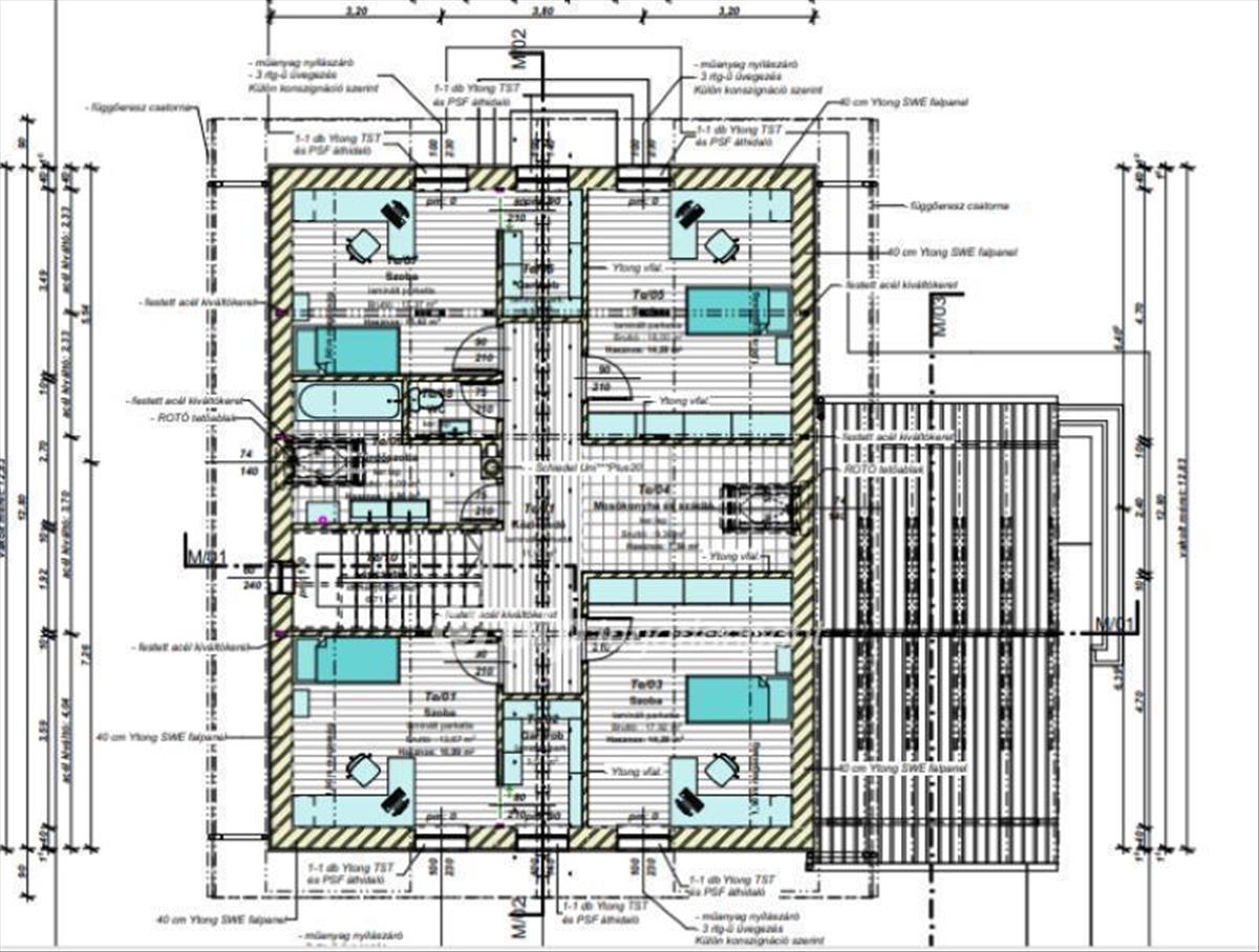
Eladó Telek, Szentes
Eladó Csongrád-Csanád vármegyében Szentes zöldövezeti részén egy 2247m2-es építési telek. a Nagyhegy városközpont felőli részén helyezkedik el, aszfaltozott utcában, amelyben teljes közmű ellátottság van. a villany a telken belül mérőórával ellátva, a többi közmű az utcában csatlakozási lehetőséggel. Építkezni vágyóknak kiváló lehetőség. a gyönyörű látványtervekhez, elkészült alaprajz és engedélyek is rendelkezésre állnak. Ha építkezni szeretne és nem tudja hogyan fogjon hozzá, itt a remek alkalom. Nem kell mást tennie mint felépíteni ezt az álomotthont. Szentes város ezen része csendes, forgalomtól mentes, igazi pihenő övezet.
Ha érdekli ez a remek ajánlat keressen bizalommal, akár hétvégén is. Nézzük meg együtt új otthonának helyszínét.
Érdeklődni: Lázár Krisztina 06302233606
Referencia szám: m293072-ml Hitel.hu - Hasonlítsa össze a bankok lakáshitel ajánlatait


