Eladó telek - Szigethalom
- INGYENES HIRDETÉS FELADÁS
Ingatlan adatai
- Feladva:42 napja a megveszLAK-on
- Eladó vagy kiadó:Eladó
- Település:Szigethalom
- Kategória:Telek
- Alkategória:Lakóövezeti
- Alapterület:nincs megadva
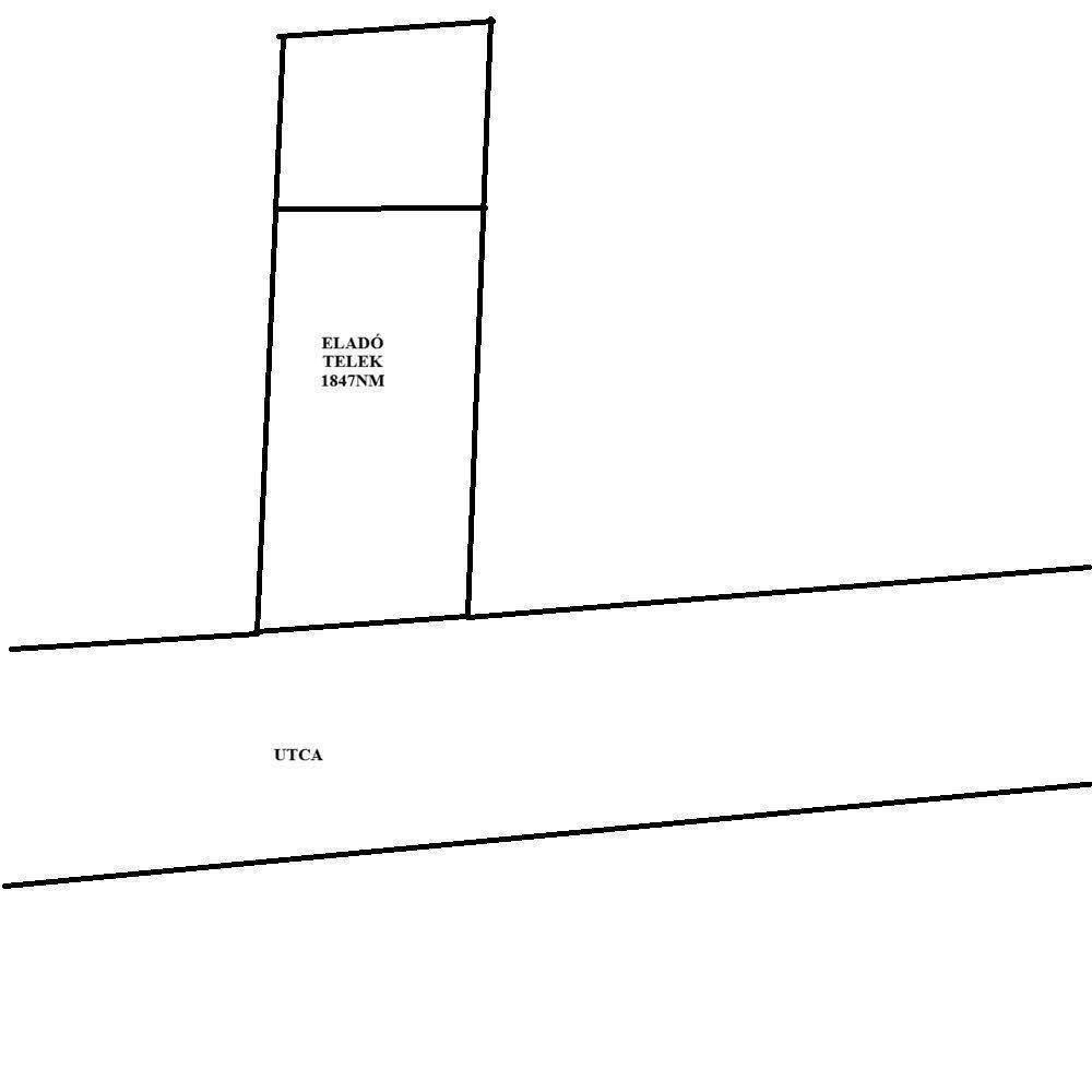
- Telekterület:1847 m2
- Csere is:Nem
- Hirdető:Cég
- Élő videón megtekinthető:Nem
- Villany:Telken belül
- Víz:Telken belül
- Gáz:Telken belül
- Csatorna:nincs megadva
- Kapcsolatfelvétel

Takács Zsuzsanna
+36-(30)-495-3819
Mondd meg a hirdetőnek, hogy a megveszLAK-on találtad a hirdetést.
Referencia szám: M318787
Hitel ajánlatok
Ingatlan hirdetés leírása
Eladó Telek, Szigethalom
Sokoldalúan beépíthető telek eladó Szigethalmon!
Eladásra kínálunk egy telket, amely rugalmas beépítési lehetőségeivel számos beruházás számára ideális választás.
A terület többféle funkció számára is kiválóan alkalmas: társasház építésére, családi ház kialakítására, vállalkozói szolgáltatások létesítésére, üzlethelyiség vagy vegyes funkciójú épület megvalósítására is.
Akár 4 lakásos társasház is építhető rá, de 1 szolgáltatóegységnek is kell lennie, csak így adnak építési engedélyt.
A telek környezete rendezett, megközelíthetősége kiváló, infrastruktúrája teljes, így akár azonnal megkezdhető a tervezés és a fejlesztés.
Ha olyan ingatlanlehetőséget keres, amelyet saját igényeire formálhat, és biztos alapot ad bármilyen fejlesztési elképzeléshez, akkor ez a telek tökéletes választás.
Referenciaszám : M318787
Övezeti besorolás Lakóövezet
Hivatalos alapterület (m2) - (ház esetén felépítmény területe) 1 847 m2
Víz Telken belül
Telek területi besorolása (osztálya) Belterület
Villany Telken belül
Telek szélessége (m) 23. 5
Csatorna Telken belül
Telek hosszúsága (m) 76. 0
Gáz Telken belül
Telek lejtése Enyhe
Osztatlan közös tulajdon igen
Utcai igen
Használati szerződés igen
Nyeles nem
Elkerített igen
Az OTP Ingatlanpont, mint egyetlen közvetlen banki hátterű ingatlanközvetítő társaság teljes körű ügyintézéssel áll az eladók és a vevők rendelkezésére! a kínálatunkból választott ingatlan finanszírozásához minősített fogyasztóbarát, piaci és kedvezményes hitel- és lízingkonstrukciókat kínálunk (lakásvásárlási hitel, CSOK plusz, szabad felhasználású hitel, babaváró hitel, céges hitelek, pályázatok, amennyiben az ügyfél és az ingatlan megfelel a feltételeknek). Az adásvételi szerződés megkötéséhez igény szerint megbízható ügyvédi közreműködést biztosítunk, és segítséget nyújtunk az adásvételhez kapcsolódó egyéb ügyek intézéséhez.
Ha az új ingatlana megvásárlásához a jelenlegi ingatlanát el kell adnia, abban is szívesen segítünk.
Referencia szám: m318787-ml Hitel.hu - Hasonlítsa össze a bankok lakáshitel ajánlatait
Tetszett ez az eladó Szigethalomi telek? Hívd fel a hirdetőt most, és tudj meg mindent erről az eladó telekről! Ha gondolod nézelődj tovább az eladó telek Szigethalom oldal hirdetései között.
Az eladó telkek menüpontban további hirdetések között is böngészhetsz. Ha van kedved, akkor böngészhetsz a Takács Zsuzsanna összes hirdetése között, vagy akár a/az OTPip Budapest XIII. kerület Lehel utca 50 - OTP Ingatlanpont Iroda összes hirdetése között is.

