Eladó telek - Tápiószele
- INGYENES HIRDETÉS FELADÁS
Ingatlan adatai
- Eladó vagy kiadó:Eladó
- Település:Tápiószele
- Kategória:Telek
- Alkategória:Lakóövezeti
- Alapterület:nincs megadva
- Telekterület:979 m2
- Csere is:Nem
- Hirdető:Cég
- Élő videón megtekinthető:Nem
- Villany:Telken belül
- Víz:Utcában
- Gáz:Utcában
- Csatorna:Utcában
- Kapcsolatfelvétel

Urbán László
+36-(20)-333-6892
Mondd meg a hirdetőnek, hogy a megveszLAK-on találtad a hirdetést.
Hitel ajánlatok
Ingatlan hirdetés leírása
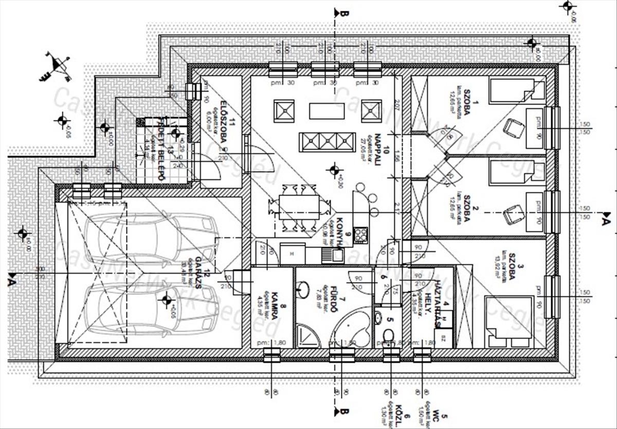
ELADÓ TÁPIÓSZELEI 979 m2 ÉPÍTÉSI TELEK!
A casanetwork cegléd eladásra kínálja a 174601635 számú tápiószelei 979 m2 építési TELKET.
Csak el kell kezdeni az építkezést! Az eladó tápiószelei építési telek teljes tervezettel várja új tulajdonosát. a terven szereplő ingatlan hasznos alapterülete 142 m2. Ahogy a képeken is látható egy ideális családi ház teljes tervezete rendelkezésre áll, az ingatlan alapja szerkezetileg el is készült. Ami még nagyon pozitív, hogy az új otthonát nem kell közvetlenül az utca frontra építeni. a kerítéstől 5 méterrel beljebb lett az alap is elhelyezve, természetesen minden szabálynak megfelelően és az utca képe sem változik. Minden rendelkezésre áll az új otthona megépítéséhez, és miden dokumentációt biztosít a tulajdonos a vevőnek. Ezzel rendkívül magas költséget tud megspórolni. Ha Tápiószelén szeretne építkezni akkor megtalálta a legkedvezőbb lehetőséget!
Irodánk teljes körű segítséget tud nyújtani hitelekhez és az összes államilag finanszírozott családi támogatásokhoz!
Ha felkeltette érdeklődését, hívjon bátran és szívesen megmutatom!
Megtekintése kizárólag előre egyeztetett időpontban lehetséges!
Amennyiben a 174601635 számú a casanetwork Cegléd által kínált építési telek, családi ház vagy bármely a kínálatunkban található családi ház felkeltette érdeklődését, hívjon a megadott telefonszámon. /A hirdetésben szereplő információk a megbízótól kapott adatok alapján készültek, pontosságukért felelősséget nem vállalunk! /
Kollégám díjmentes, bank semleges hitel ügyintézéssel áll rendelkezésre.
CasaNetWork- Ingatlanban otthon vagyunk! Hitel.hu - Hasonlítsa össze a bankok lakáshitel ajánlatait
Tetszett ez az eladó Tápiószelei telek? Hívd fel a hirdetőt most, és tudj meg mindent erről az eladó telekről! Ha gondolod nézelődj tovább az eladó telek Tápiószele oldal hirdetései között.
Az eladó telkek menüpontban további hirdetések között is böngészhetsz. Ha van kedved, akkor böngészhetsz a Urbán László összes hirdetése között, vagy akár a/az CasaNetWork Cegléd összes hirdetése között is.

