Eladó műhely - Bag
- INGYENES HIRDETÉS FELADÁS
Ingatlan adatai
- Eladó vagy kiadó:Eladó
- Település:Bag
- Kategória:Ipari ingatlan
- Alkategória:Műhely
- Alapterület:566 m2
- Telekterület:2273 m2
- Csere is:Nem
- Hirdető:Cég
- Élő videón megtekinthető:Nem
- Építés éve:2025
- Hány szintes az ingatlan:nincs megadva
- Hányadik emeleti:nincs megadva
- Parkolási lehetőség:Udvaron
- Energiatanúsítvány:nincs megadva
- Villany:nincs megadva
- Víz:nincs megadva
- Gáz:nincs megadva
- Csatorna:nincs megadva
- Kapcsolatfelvétel

Szántóné János Ildikó
+36-(70)-374-8494
Mondd meg a hirdetőnek, hogy a megveszLAK-on találtad a hirdetést.
Referencia szám: IP014033
Hitel ajánlatok
Ingatlan hirdetés leírása
Eladó ipari, Bag, Eladó műhely - Bag
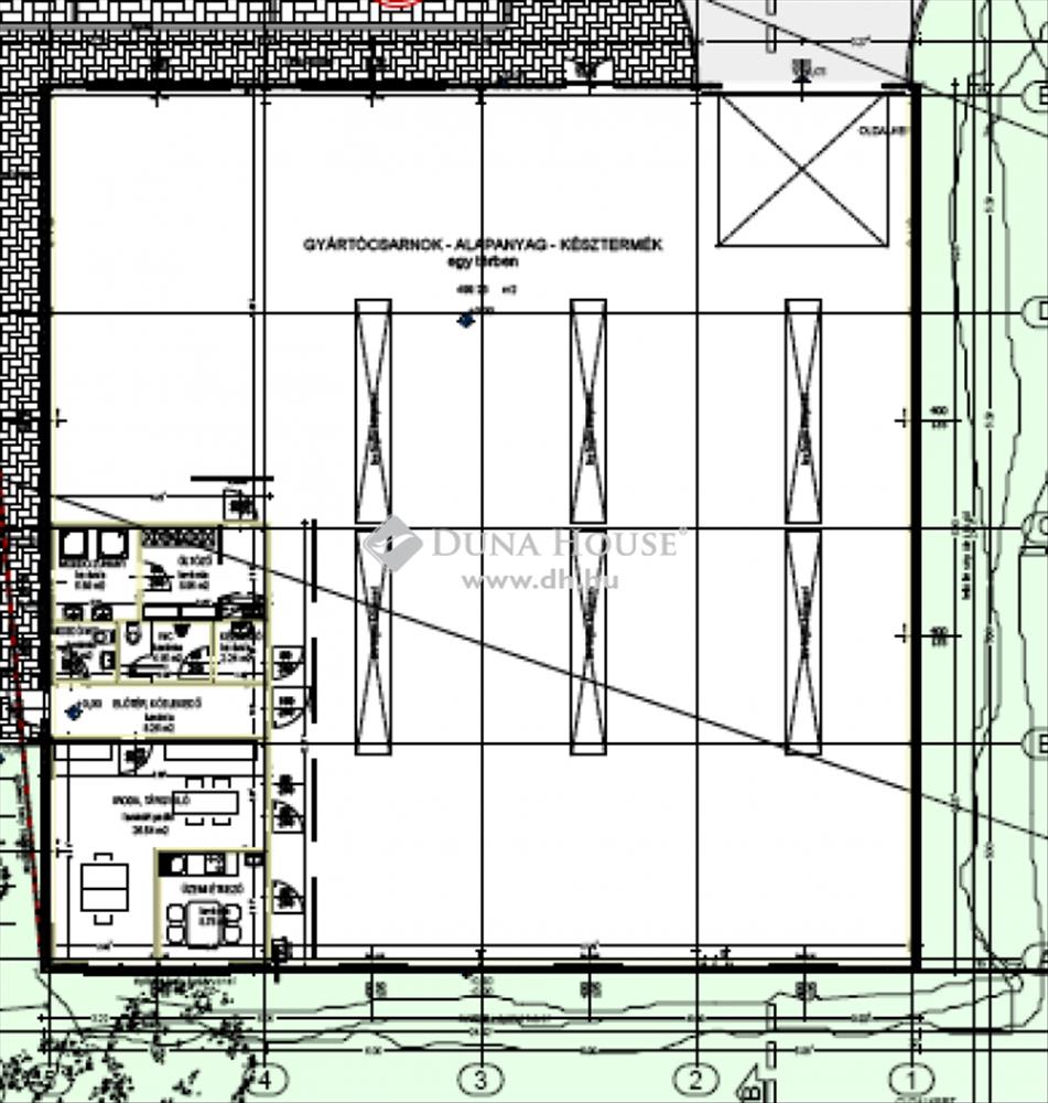
Bag ipari parkjában m3 autópálya lehajtójánál eladó 566, 65 m2-es új építésű, gyártó és raktározási funkcióra is alkalmas ipari csarnok 2273 m2-es telken, 90%-os készültségi fokon és állapotban. Vállalkozások, befektetők, ingatlanfejlesztők figyelmébe ajánlott! Megközelítés: Kiváló közlekedési lehetőség. Az m3 autópálya, valamint a 3-as főút közelségéből adódóan a terület könnyedén megközelíthető Magyarország, de akár Európa bármely pontjáról, vagy a repülőtérről. Az M3-as autópálya az északkeleti országrészt köti össze Budapesttel, tranzitszerepet tölt be a keletnyugati irányú személyforgalomban és áruszállításban. Az autópálya a hazai úthálózat fontos ütőereként a DNyÉK irányú fő közlekedési vonal Budapesttől keletre eső részét alkotja, mely Kelet-, valamint Észak-Európa felé teremt gyorsforgalmi közúti kapcsolatot. Közműellátottság: Az autópálya lehajtójától szabad szemmel is jól látható közelségben aszfaltos, közvilágítással ellátott utcáról érhetőek el az ipari park telkei. a teljes ipari park aszfaltozott, széles, teherautóval, kamionnal is jól járható úthálózattal ellátott. Közvilágítás kiépített. Gáz, áram és hírközlő kábel az utcában. Az ipari park területe kerítéssel védett. a telek az aszfaltos útról közelíthető meg. Besorolás: Az ingatlan belterületi besorolású, gazdasági, kereskedelmi, szolgáltató tevékenység végzését lehetővé tevő Gksz-5 övezetben található. Telephelynek, kereskedelmi, raktározási célra, műhelynek kiváló. Reklám maga a helyszín, hiszen az autópályán szünet nélkül dübörög a forgalom. Az ingatlanra vonatkozó beépítési szabályok: 50 %-os beépíthetőség, legfeljebb 16 m-es építménymagasság. Minimális telekméret 1500 m2. Szabadon álló épület építhető ide. Tehát az 566, 65 m2 alapterületű csarnok bővíthető. Épület:A szendvicspanel falazatú, acélszerkezetes csarnoképület 90 % készültségi fokon várja a kivitelezést folytató új tulajdonosát. Az épületbe 2 ajtón léphetünk be. Egyrészt a személyi bejáró az épület utcafronti homlokzatáról nyílik, ahol üzlettér, irodatér érhető el. Másrészt az épület oldalán található a gyártócsarnok/raktárrészbe nyíló kapu. a csarnok egy légterű, nagy méretű ablakokkal ellátott, ezáltal világos, de a z alapfunkciók kárára nem válik az ablakmennyiség. a külső nyílászárók, két rétegű üveggel ellátott műanyag ablakok. Falazat: 10 cm vastag szendvicspanel, acélszerkezettel. Belső magasság: 6-7, 2 mTartószerkezet: acélgerendák. Az épület hátsó tartószerkezetét úgy építették meg, hogy az épület a lemezborítás levétele és új tartópillérek elhelyezése által bővíthető legyen. Helységlista:- 499, 23 m² gyártócsarnok, - 26, 54 m² iroda/tárgyaló, - 8, 78 m² üzemi étkező, - 8, 26 m² előtér/ közlekedő, - 2, 66 m² mosdó, wc, - 4, 15 m² wc, - 2, 24 m² kézmosó, - 8, 90 m² öltöző, - 5, 89 m² mosdó - zuhanyzó helység. Az iroda, tároló, kiszolgáló és mellékhelyiségek több elszeparált funkciónak megfelelően a csarnoktérből is megközelíthetőek. a belmagasság itt jóval a csarnok belmagassága alatt található. a padló hidegburkolattal fedett. a falak fehérre festettek. a mellékhelyiségekben a szaniterek elhelyezése, beszerelése az új tulajdonos feladata. a telek közműellátottsága: víz, gázcsatorna, villany, hírközlő kábel van. Az épületen belül víz, csatorna van. Az ingatlan per-, tehermentes. Az ingatlan azonnal birtokba vehető. a 165 000 000 Ft-os ár nettó ár, első részlet 60%, megfelelő fizetési konstrukció esetén gyors és sikeres üzletre számíthat. (Vételár: nettó 165 000 000 Ft+ÁFA, azaz bruttó: 209 550 000 Ft) Projektben gondolkozik, hiányzik a logisztikailag tökéletes helyszín? Megtalálta. Időhiányban szenved és ismeri a folyamat nehézségét, míg egy gondolatból terv lesz, majd a tervből nem kevés idő, pénz és energia ráfordításával engedélyes terv, majd épület? Az üzleti világban mindenki tudja: az idő pénz. a csarnok majdnem kész, a saját arculatára szabhatja és igényeinek megfelelően fejezheti be. Amennyiben felkeltette érdeklődését, kérdés esetén keressen bizalommal, részletes tájékoztatót biztosítok és mutatom az ingatlant rugalmas időbeosztással. Ügyvédi segítséggel tudunk szolgálni. Hitel.hu - Hasonlítsa össze a bankok lakáshitel ajánlatait
Tetszett ez az eladó Bagi ipari ingatlan? Hívd fel a hirdetőt most, és tudj meg mindent erről az eladó ipari ingatlanról! Ha gondolod nézelődj tovább az eladó ipari ingatlan Bag oldal hirdetései között.
Az eladó ipari ingatlanok menüpontban további hirdetések között is böngészhetsz. Ha van kedved, akkor böngészhetsz a Szántóné János Ildikó összes hirdetése között, vagy akár a/az Duna House Galagonya utca összes hirdetése között is.

