Eladó műhely - Berettyóújfalu
- INGYENES HIRDETÉS FELADÁS
Ingatlan adatai
- Feladva:64 napja a megveszLAK-on
- Eladó vagy kiadó:Eladó
- Település:Berettyóújfalu
- Kategória:Ipari ingatlan
- Alkategória:Műhely
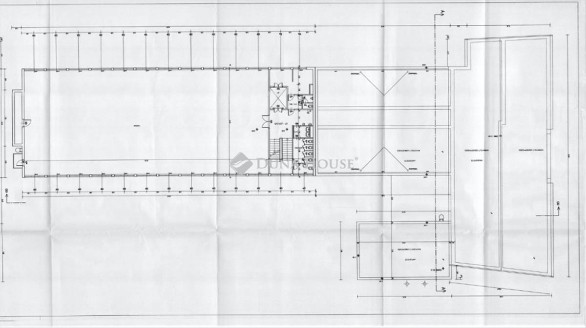
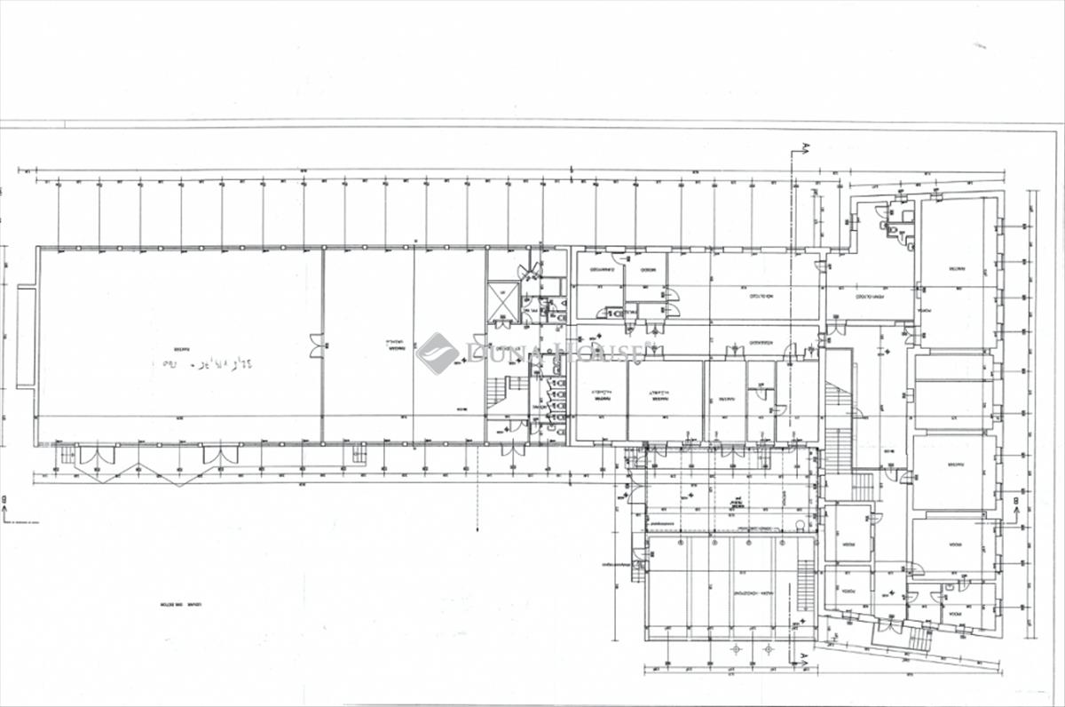
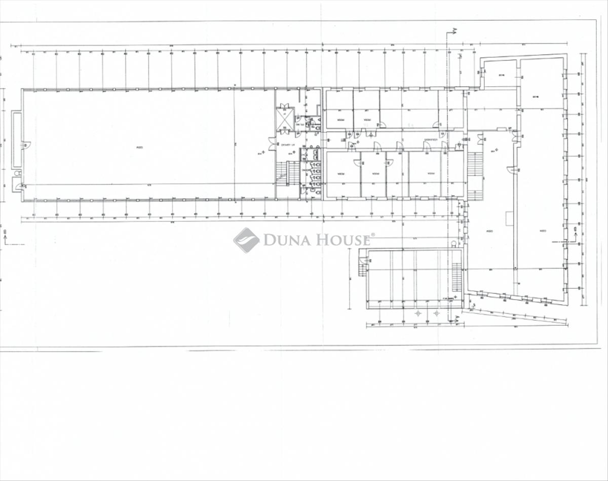
- Alapterület:3030 m2
- Telekterület:nincs megadva
- Csere is:Nem
- Hirdető:Cég
- Élő videón megtekinthető:Nem
- Építés éve:1961
- Hány szintes az ingatlan:nincs megadva
- Hányadik emeleti:nincs megadva
- Parkolási lehetőség:nincs megadva
- Energiatanúsítvány:nincs megadva
- Villany:nincs megadva
- Víz:nincs megadva
- Gáz:nincs megadva
- Csatorna:nincs megadva
- Kapcsolatfelvétel

Gorján-Gyalus Gabriell...
+36-(30)-524-6011
Mondd meg a hirdetőnek, hogy a megveszLAK-on találtad a hirdetést.
Referencia szám: IP061172
Hitel ajánlatok
Ingatlan hirdetés leírása
Eladó ipari, Berettyóújfalu
Eladó, sokoldalúan hasznosítható ipari ingatlan Berettyóújfalu belvárosában!
Kivételes lehetőség a város szívében 3030 m²-es, téglaépítésű, jó állapotú ipartelep, amely számtalan funkcióra átalakítható!
Főbb jellemzők:
3030 m² alapterület
Tégla építés, felújítva 2021 - 2022-ben
Gáz központi fűtés
Két utcára nyíló megközelítés (kamionnal is! )
Belvárosi elhelyezkedés, buszmegálló 2 perc, m4 autópálya 8 perc
Rugalmasság a hasznosításban:
Idősek otthona / szociális intézmény
Lakóingatlan-fejlesztés
Irodaház, egészségügyi központ, szolgáltatóközpont
Oktatási, kereskedelmi, logisztikai vagy könnyűipari tevékenység
Top lokáció + nagy alapterület = kiemelkedő fejlesztési potenciál!
Befektetőknek, vállalkozóknak, intézményfenntartóknak ideális választás.
Ha felkeltette az érdeklődését, keressen bizalommal! Hitel.hu - Hasonlítsa össze a bankok lakáshitel ajánlatait
Tetszett ez az eladó Berettyóújfalui ipari ingatlan? Hívd fel a hirdetőt most, és tudj meg mindent erről az eladó ipari ingatlanról! Ha gondolod nézelődj tovább az eladó ipari ingatlan Berettyóújfalu oldal hirdetései között.
Az eladó ipari ingatlanok menüpontban további hirdetések között is böngészhetsz. Ha van kedved, akkor böngészhetsz a Gorján-Gyalus Gabriella Erzsébet összes hirdetése között, vagy akár a/az Duna House Debrecen, Csapó összes hirdetése között is.

