Eladó műhely - Győr
- INGYENES HIRDETÉS FELADÁS
Ingatlan adatai
- Eladó vagy kiadó:Eladó
- Település:Győr
- Kategória:Ipari ingatlan
- Alkategória:Műhely
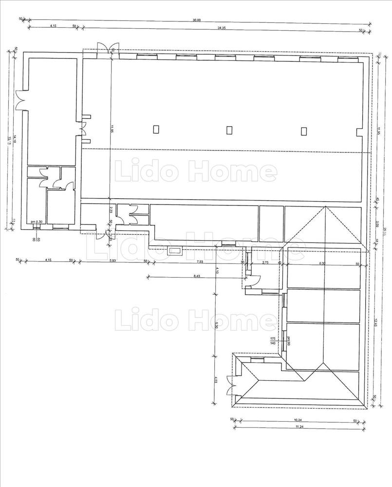
- Alapterület:572 m2
- Telekterület:1782 m2
- Csere is:Nem
- Hirdető:Cég
- Élő videón megtekinthető:Nem
- Építés éve:2000
- Hány szintes az ingatlan:nincs megadva
- Hányadik emeleti:nincs megadva
- Parkolási lehetőség:nincs megadva
- Energiatanúsítvány:nincs megadva
- Villany:nincs megadva
- Víz:nincs megadva
- Gáz:nincs megadva
- Csatorna:nincs megadva
- Kapcsolatfelvétel

Fendt Kitti
+36-(30)-147-7708
Mondd meg a hirdetőnek, hogy a megveszLAK-on találtad a hirdetést.
Hitel ajánlatok
Ingatlan hirdetés leírása
Eladó ipari ingatlan Győrszentivánon, jól megközelíthető, azon...
A Lido Home Győr eladásra kínálja Győrszentivánon, ezt az ipari ingatlant!
A tégla építésű épületben helyet kapott 294m2 csarnok, 120, 65m2 szociális helyiség, 104, 5 iroda, 52, 85m2 kazánház és karbantartó műhely, összesen 572m2!
A telek mérete 1782m2, két bejáraton megközelíthető!
Fűtéséről 2 db ipari gázkazán gondoskodik, a meleg vizet villany bojler biztosítja!
Az elektromos áramot saját trafóházról kapja az épület, így magas Amper szám is elérhető igény esetén!
Környezete és az épület is rendezett, igény szerint alakítható, a teljes tető frissen lett vízszigetelve, új csatornákat kapott az épület!
Több mint tíz éve nem volt használva aktívan a hely, így az állapota is ennek megfelelő, részben felújítandó, modernizálandó!
Belmagasságából kifolyólag kisebb ipari munkák végezhetőek a műhelyben, daru pálya kiépítése csak alacsonyabb magasságban lehetséges.
Győr ipari park része az épülettől pár perc távolságra van, a bejárat jól megközelíthető nagyobb járművel is!
Lehetőséget ad vállalkozás és telephely bővítésre ez az ingatlan, az ára kedvező a mai piachoz képest!
Amennyiben a lido home által kínált Győr-Győrszentivánon eladó, vagy bármely a kínálatunkban található ingatlan felkeltette érdeklődését hívjon a megadott telefonszámon.
Vásárolna, de nincs rá keret? Kollégám díjmentes, bank semleges hitel ügyintézéssel áll rendelkezésére.
LIDO home - Ingatlanok egy életen át! Hitel.hu - Hasonlítsa össze a bankok lakáshitel ajánlatait
Tetszett ez az eladó Győri ipari ingatlan? Hívd fel a hirdetőt most, és tudj meg mindent erről az eladó ipari ingatlanról! Ha gondolod nézelődj tovább az eladó ipari ingatlan Győr oldal hirdetései között.
Az eladó ipari ingatlanok menüpontban további hirdetések között is böngészhetsz. Ha van kedved, akkor böngészhetsz a Fendt Kitti összes hirdetése között, vagy akár a/az Lido Home Győr összes hirdetése között is.

